Appartement in bruisende stadsbuurt
€ 209.000
Een pand van Immo Vasta
Jouw zoektocht
Overzicht
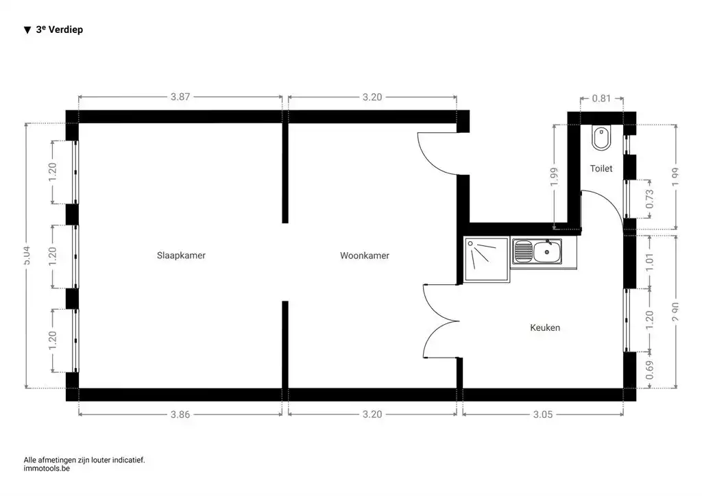
- 54 m² bewoonbaar
- 80 m² grond
- 1 Slaapkamer(s)
- 1 Badkamer(s)
- 1 Toilet(ten)
Beschrijving
Wonen op een toplocatie, vlak bij de Paardenmarkt en het Eilandje? Dit appartement van ca. 54 m² op de derde verdieping combineert een authentiek karakter met hedendaags comfort. Ideaal als eerste woning of als slimme investering.
Sfeervol, authentiek & licht
De leefruimte heeft een warme houten vloer, hoge plafonds en een sierschouw die meteen in het oog springt. Dankzij de grote ramen geniet je van veel natuurlijk licht, terwijl de dubbele glazen tussendeuren met ronde motieven zorgen voor extra karakter en een open gevoel. Via de charmante doorgang bereik je de ruime slaapkamer (ca 17m²), eveneens op houten vloer en voorzien van een tweede sierschouw. De kamer ligt aan de rustige achterzijde en sluit rechtstreeks aan op de keuken. De keuken heeft een leuke retrotegelvloer en is uitgerust met voldoende kasten, een gasfornuis en een dubbele spoelbak. Handig: hier vind je ook een douchecabine — ideaal voor wie houdt van efficiënt ruimtegebruik. De aparte wc met tegelvloer vervolledigt het geheel.
Bovendien is er nog een extra kelder berging aanwezig.
Leven in de Oude Buurt
Je woont hier in de charmante Lange Noordstraat, tussen de Paardenmarkt en de universiteitsbuurt, midden in het historische centrum van Antwerpen. De buurt bruist van gezellige cafés, restaurants en buurtwinkels, en met het Eilandje en Park Spoor Noord vlakbij heb je ook het groen binnen handbereik. Openbaar vervoer en fietsstations liggen op wandelafstand, en met de auto zit je snel op de Leien of de Ring.
Energie
![]() |
- EPC Certificaat: 20251220-0003705175-RES-1
- Energieverbruik: 295 kWh/m²/jaar
- E-peil: E0
- Verwarming: Gas
- Beglazing: Standaard dubbel
Op de kaart

Financieel
| Prijs | |
|---|---|
| Kadastraal inkomen (niet geïndexeerd) | € 0 |
| Kadastraal inkomen (geïndexeerd) | € 0 |
Berekening kosten
Je aankoopkosten? Die heb je snel berekend via de knop hieronder.
Bijkomende info
Gebouw
| Staat | Op te frissen |
|---|---|
| Bouwcertificaat | Nee |
| Bewoonbaar (m²) | 54 |
| Verdieping | 3 |
| Gevelbreedte | 5 |
| Badkamers | 1 |
| Slaapkamers | 1 |
| Verdiepingen | 3 |
| Garages | 0 |
| Parkeerplaatsen | 0 |
| Doucheruimtes | 0 |
| Toiletten | 1 |
Faciliteiten
| Keuken uitrusting | Luxueus uitgerust |
|---|---|
| Materiaal ramenomlijstingen | PVC |
| Beglazing | Standaard dubbel |
| Brandstof primaire verwarming | Gas |
| Elektrisch keuringsattest | Ja |
Perceel
| Diepte (m) | 17 |
|---|---|
| Breedte (m) | 5 |
| Overstromingsgevoelig | Geen |
| P-score | C |
| G-score | C |
| Voorkeurrecht | Nee |
| Totale oppervlakte (m²) | 80 |
| Bebouwde oppervlakte (m²) | 0 |
| Tuin oppervlakte (m²) | 0 |
| Oppervlakte terras (m²) | 0 |
| Oriëntatie tuin | Noordwest |
Uitrusting
| Investeringspand | Nee |
|---|---|
| Geschikt voor praktijk | Nee |
| Parking | Nee |
| Garage | Nee |
| Thuiskantoor | Nee |
| Kelder | Ja |
| Zolder | Nee |
| Tuin | Nee |
| Terras | Nee |
| Lift | Nee |
| Rioolaansluiting | Nee |
| Gasaansluiting | Ja |
| Wateraansluiting | Ja |
| Elektriciteitsaansluiting | Ja |
| TV aansluiting | Nee |
| Internetaansluiting | Nee |
| Telefoonaansluiting | Nee |
Appartementsblok
| Aantal verdiepingen | 3 |
|---|---|
| Lift | Nee |
