Gelijkvloers appartement in centrum A met stadstuin
Een pand van Immo Vasta
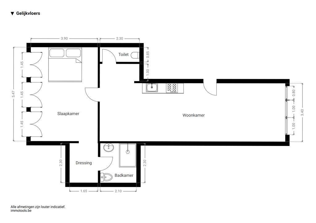
Overzicht
- 80 m² bewoonbaar
- 432 m² grond
- 1 Slaapkamer(s)
- 1 Badkamer(s)
- 2 Toilet(ten)
- 1 Tuin
Beschrijving
Pal in de levendige studentenbuurt, vlakbij de Universiteit Antwerpen, de Ossenmarkt én het historisch centrum, vind je dit verrassend ruime appartement op het gelijkvloers van een kleinschalig gebouw. Het werd opgefrist, heeft een gezellige stadstuin, hoge plafonds en een lichtrijke leefruimte. Een ideaal startersappartement, pied-à-terre of investering!
Licht, ruimte & open gevoel
De leefruimte van maar liefst 43,5 m² strekt zich uit over de volledige breedte van het gebouw en baadt in het licht dankzij de grote ramen. De laminaatvloer, het open keukenconcept en de plafondhoogte van 3 meter versterken het ruimtelijk gevoel. De keuken is praktisch ingericht met mozaïek spatwand, inox spoelbak, gaskookvuur, dampkap en kastruimte. Aansluitend vind je een betegeld apart toilet met lavabo.
Ruime slaapkamer & directe toegang tot de tuin
Achteraan ligt de royale slaapkamer van 27,5 m² met directe toegang tot de zuidgerichte stadstuin. Er is ook een aparte dressing met schabben en lades én toegang tot de badkamer. De badkamer beschikt over een ruime inloopdouche, tweede toilet, een lavabo met spiegel en mechanische ventilatie. De tuin van ca. 27 m² is aangelegd met klinkers: onderhoudsvriendelijk en perfect om buiten te zitten of een barbecue te organiseren.
In het bruisende hart van de stad
De ligging is simpelweg top: op 2 minuten van de UA-campus, vlak bij de Meir, de Rooseveltplaats en het Centraal Station. Supermarkten, koffiebars, lunchplekken, tram en Velo-station zijn allemaal op wandelafstand. Alles wat je nodig hebt ligt hier letterlijk om de hoek.
Energie
![]() |
- EPC Certificaat: 20251110-0003721283-RES-2
- Energieverbruik: 146 kWh/m²/jaar
- E-peil: E0
- Verwarming: Gas
- Beglazing: Standaard dubbel
Op de kaart

Financieel
| Prijs | |
|---|---|
| Kadastraal inkomen (niet geïndexeerd) | € 0 |
| Kadastraal inkomen (geïndexeerd) | € 0 |
Berekening kosten
Je aankoopkosten? Die heb je snel berekent via de knop hieronder.
Bijkomende info
Gebouw
| Staat | Goed onderhouden |
|---|---|
| Bouwcertificaat | Nee |
| Bewoonbaar (m²) | 80 |
| Verdieping | 0 |
| Gevelbreedte | 5.5 |
| Badkamers | 1 |
| Slaapkamers | 1 |
| Verdiepingen | 3 |
| Garages | 0 |
| Parkeerplaatsen | 0 |
| Doucheruimtes | 0 |
| Toiletten | 2 |
Faciliteiten
| Keuken uitrusting | Luxueus uitgerust |
|---|---|
| Materiaal ramenomlijstingen | PVC |
| Beglazing | Standaard dubbel |
| Brandstof primaire verwarming | Gas |
| Elektrisch keuringsattest | Ja |
Perceel
| Diepte (m) | 32 |
|---|---|
| Breedte (m) | 11 |
| Overstromingsgevoelig | Geen |
| P-score | A |
| G-score | A |
| Voorkeurrecht | Nee |
| Totale oppervlakte (m²) | 432 |
| Bebouwde oppervlakte (m²) | 0 |
| Tuin oppervlakte (m²) | 27 |
| Oppervlakte terras (m²) | 0 |
| Oriëntatie tuin | Zuid |
Vergunning
| Vergunning | Vergunning beschikbaar |
|---|
Uitrusting
| Investeringspand | Nee |
|---|---|
| Geschikt voor praktijk | Nee |
| Parking | Nee |
| Garage | Nee |
| Thuiskantoor | Nee |
| Kelder | Nee |
| Zolder | Nee |
| Tuin | Ja |
| Terras | Nee |
| Lift | Nee |
| Rioolaansluiting | Nee |
| Gasaansluiting | Nee |
| Wateraansluiting | Ja |
| Elektriciteitsaansluiting | Nee |
| TV aansluiting | Nee |
| Internetaansluiting | Nee |
| Telefoonaansluiting | Nee |
Appartementsblok
| Aantal verdiepingen | 3 |
|---|---|
| Lift | Nee |
