Charmant appartement in art-deco gebouw in het oude centrum
€ 277.000
Een pand van Tensen Vastgoed
Overzicht
- 64 m² bewoonbaar
- 1 Slaapkamer(s)
- 1 Badkamer(s)
- 1 Toilet(ten)
Beschrijving
Op loopafstand van de Scheldekaaien, de sfeervolle Kloosterstraat en het Eilandje, bevindt zich dit charmante appartement op de 3de verdieping van een art-deco gebouw met 8 appartementen, vol authentieke elementen.
Het appartement is zowel een ideaal startersappartement als een stabiele investering in het bruisende stadscentrum!
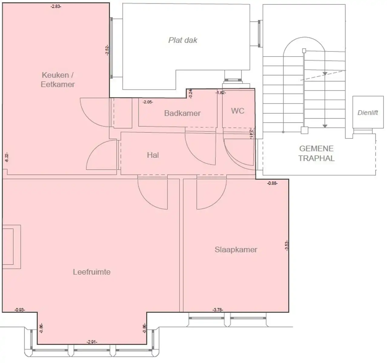
INDELING
Bij binnenkomst treft u de centrale hal, die toegang geeft tot alle vertrekken. Aan de linkerkant vindt u de aangename slaapkamer met visgraatparket. De lichte leefruimte, ook met visgraatparket, heeft een mooie marmeren schouw en een erker die voor extra licht zorgt, en de indirecte verlichting zorgt voor een aangename sfeer. De ruime leefkeuken, inclusief gasfornuis, dampkap, oven, spoelbak en aansluiting voor wasmachine, nodigt uit tot gezellig koken. Tot slot is er een compacte, moderne badkamer met douche en wastafel, plus een apart toilet.
In het gebouw is een gemeenschappelijke fietsenberging aanwezig, en het appartement beschikt ook over een eigen kelderberging.
PLUSPUNTEN
✅ Centrale ligging
✅ Authentieke elementen
✅ Instapklaar
✅ EPC label C (228kWh/m²)
✅ Elektriciteit is conform
✅ Asbestveilig
✅ Lage maandelijkse kosten
✅ Individuele nutsvoorzieningen voor gas, water en elektriciteit
✅ Privatieve kelderberging inbegrepen in de prijs
Het appartement is momenteel verhuurd aan 744,76€ + 25€ kosten per maand.
Geïnteresseerd? Neem contact op via 0477 349 279 of info@tensenvastgoed.be voor meer info of een bezichtiging!
Het appartement is zowel een ideaal startersappartement als een stabiele investering in het bruisende stadscentrum!
INDELING
Bij binnenkomst treft u de centrale hal, die toegang geeft tot alle vertrekken. Aan de linkerkant vindt u de aangename slaapkamer met visgraatparket. De lichte leefruimte, ook met visgraatparket, heeft een mooie marmeren schouw en een erker die voor extra licht zorgt, en de indirecte verlichting zorgt voor een aangename sfeer. De ruime leefkeuken, inclusief gasfornuis, dampkap, oven, spoelbak en aansluiting voor wasmachine, nodigt uit tot gezellig koken. Tot slot is er een compacte, moderne badkamer met douche en wastafel, plus een apart toilet.
In het gebouw is een gemeenschappelijke fietsenberging aanwezig, en het appartement beschikt ook over een eigen kelderberging.
PLUSPUNTEN
✅ Centrale ligging
✅ Authentieke elementen
✅ Instapklaar
✅ EPC label C (228kWh/m²)
✅ Elektriciteit is conform
✅ Asbestveilig
✅ Lage maandelijkse kosten
✅ Individuele nutsvoorzieningen voor gas, water en elektriciteit
✅ Privatieve kelderberging inbegrepen in de prijs
Het appartement is momenteel verhuurd aan 744,76€ + 25€ kosten per maand.
Geïnteresseerd? Neem contact op via 0477 349 279 of info@tensenvastgoed.be voor meer info of een bezichtiging!
Energie
![]() |
- EPC Certificaat: 20250819-0003666672-RES-1
- Energieverbruik: 228 kWh/m²/jaar
Op de kaart

Financieel
| Prijs |
|---|
Berekening kosten
Je aankoopkosten? Die heb je snel berekend via de knop hieronder.
Bijkomende info
Gebouw
| Bouwjaar | 1930 |
|---|---|
| Renovatie jaar | 2007 |
| Staat | Goed onderhouden |
| Bewoonbaar (m²) | 64 |
| Verdieping | 3 |
| Gevels | 2 |
| Badkamers | 1 |
| Slaapkamers | 1 |
| Verdiepingen | 4 |
| Parkeerplaatsen | 0 |
| Doucheruimtes | 1 |
| Toiletten | 1 |
Faciliteiten
| Type vloer | |
|---|---|
| Elektrisch keuringsattest | Ja |
Perceel
| Overstromingsgevoelig | Geen |
|---|---|
| P-score | C |
| G-score | C |
| Voorkeurrecht | Ja |
| Tuin oppervlakte (m²) | 0 |
Vergunning
| Vergunning | Vergunning beschikbaar |
|---|---|
| Verkavelingsvergunning | Vergunning beschikbaar |
| Bouwovertreding | Geen |
| Bouwovertreding dagvaardiging | Geen |
Uitrusting
| Parking | Nee |
|---|---|
| Garage | Nee |
| Kelder | Ja |
| Tuin | Nee |
| Terras | Nee |
| Lift | Ja |
| Gasaansluiting | Ja |
| Wateraansluiting | Ja |
| Elektriciteitsaansluiting | Ja |
| Telefoonaansluiting | Ja |
Een pand van
Tensen Vastgoed
Tensen Vastgoed - persoonlijke service voor al uw vastgoedtransacties!
Persoonlijk, professioneel en altijd bereikbaar.
Eén contactpersoon die uw dossier van A tot Z begeleidt, die de nodige expertise heeft, en die voldoening haalt uit u daarbij te helpen. Of het nu gaat over een huurpand of een groot In een markt vol vage antwoorden en half werk kies ik voor een andere aanpak. Bij mij krijgt u één vaste contactpersoon die u en uw dossier door en door kent. Met diepgaande kennis van de markt, wetgeving en alles wat erbij komt kijken, zoals energie en asbest, sta ik 24/7 klaar om u te begeleiden.
Of het nu gaat om de aankoop van uw eerste huurpand of de verkoop van een familiepatrimonium, ik bied concrete oplossingen en geen loze beloften. We bekijken samen of er meer uit uw pand te halen valt, regelen alle nodige documenten en attesten, en zorgen ervoor dat u met een gerust hart de juiste beslissing kunt nemen.
Mijn doel is u volledig te ontzorgen en uw vaste partner in vastgoed te worden, ongeacht de omvang van uw project.
7182658
Leer meer over vastgoed
24 November 2025
Uitgezocht voor jouw gemeente: Hoeveel stijgt de waarde van je woning door een renovatie?
22 October 2025
Hoeveel kan ik lenen om een huis te kopen?
11 June 2025
Huis kopen met bouwovertreding? Dit moet je weten
11 May 2025
