Overzicht
- 385 m² bewoonbaar
- 188 m² grond
Overstromingsgevaar gebouw
Overstromingsgevaar perceel
Beschrijving
Informatie project
Op zoek naar uw volgende project? Dit is wat u zoekt! Klapdorp 80 is een af te breken handelshuis met een perceeloppervlakte van 94m², bestaande uit 5 bouwlagen. Klapdorp 84, 84A en 84C bestaat uit 3 historische huisjes op een perceeloppervlakte van ca. 75m², bestaande uit 2 bouwlagen, die na een grondige renovatie direct verkocht of verhuurd kunnen worden. Het project heeft een fantastisch potentieel voor studentenkamers of appartementen, gecombineerd met studio's.
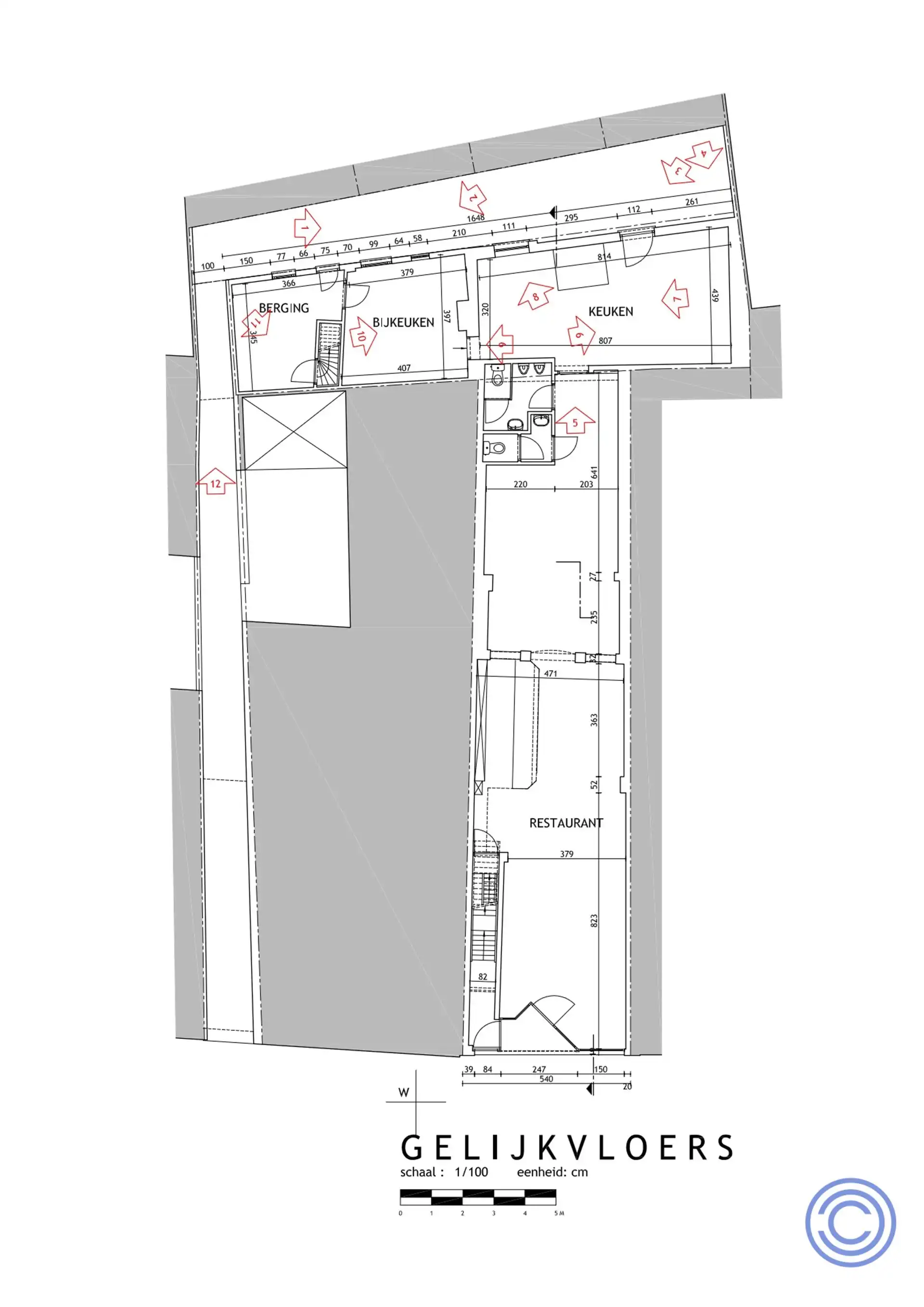
Indeling
- Kelder ca. 40m².
- Het gelijkvloers is een handelsruimte van ca. 100m²
- De 1ste, 2de en dakverdieping vormen een woning van ca. 215m².
- Via de "Salmgang", een Middeleeuwse steeg, zijn er 3 kleine achterhuizen bereikbaar.
Algemene informatie
- Klapdorp 80 EPC: label F
- Klapdorp 84, 84 en 84C EPC: label F
- Klapdorp 80 Elektrische keuring: niet conform AREI
- Klapdorp 84, 84A en 84C: niet aanwezig
- Asbestattest Klapdorp 84, 84A en 84C: Asbestveilig maar niet asbestvrij
- Asbestattest Klapdorp 80: In aanvraag
Gebouw
- Af te breken handelshuis bestaande uit een kelder, gelijkvloers en 3 verdiepingen.
- 3 volledig te renoveren achterhuizen.
Ligging
- Rustige, centrale ligging in Antwerpen!
- Supermarkten, scholen en horeca in de directe omgeving.
- Naast zijn nabijheid van in- en uitvalswegen naar de ring is het Centraal Station op wandelafstand.
- MOBISCORE: 9,3/10!
*De informatie in deze prospect is ter informatieve titel: de kandidaat-kopers moeten hun eigen zaak maken van het verkrijgen, controleren en interpreteren van deze informatie.
Energie
![]() |
- EPC Certificaat: 20200312-0002259328-RES-1
- Energieverbruik: 520 kWh/m²/jaar
- E-peil: E0
- Beglazing: Standaard dubbel
Op de kaart

Downloads
Financieel
| Prijs | |
|---|---|
| Kadastraal inkomen (niet geïndexeerd) | € 0 |
| Kadastraal inkomen (geïndexeerd) | € 0 |
Berekening kosten
Je aankoopkosten? Die heb je snel berekend via de knop hieronder.
Bijkomende info
Gebouw
| Bouwcertificaat | Nee |
|---|---|
| Bewoonbaar (m²) | 385 |
| Verdieping | 0 |
| Gevelbreedte | 5.5 |
| Badkamers | 0 |
| Slaapkamers | 0 |
| Verdiepingen | 3 |
| Garages | 0 |
| Parkeerplaatsen | 0 |
| Doucheruimtes | 0 |
| Toiletten | 0 |
Faciliteiten
| Materiaal ramenomlijstingen | Hout |
|---|---|
| Beglazing | Standaard dubbel |
| Elektrisch keuringsattest | Nee |
Perceel
| Diepte (m) | 34 |
|---|---|
| Breedte (m) | 5 |
| Overstromingsgevoelig | Geen |
| P-score | D |
| G-score | D |
| Voorkeurrecht | Ja |
| Totale oppervlakte (m²) | 188 |
| Bebouwde oppervlakte (m²) | 188 |
| Tuin oppervlakte (m²) | 0 |
| Oppervlakte terras (m²) | 0 |
| Oriëntatie tuin | Zuid |
Vergunning
| Vergunning | Geen beschikbaar |
|---|---|
| Verkavelingsvergunning | Geen beschikbaar |
Uitrusting
| Investeringspand | Nee |
|---|---|
| Geschikt voor praktijk | Nee |
| Parking | Nee |
| Garage | Nee |
| Thuiskantoor | Ja |
| Kelder | Ja |
| Zolder | Ja |
| Tuin | Nee |
| Terras | Nee |
| Lift | Nee |
| Rioolaansluiting | Ja |
| Gasaansluiting | Ja |
| Wateraansluiting | Ja |
| Elektriciteitsaansluiting | Ja |
| TV aansluiting | Nee |
| Internetaansluiting | Nee |
| Telefoonaansluiting | Nee |
