Volledig PAKHUIS in hartje Antwerpen met eindeloos potentieel!
€ 1.289.000
Een pand van Vastgoed 03
Overzicht
- 454 m² bewoonbaar
- 2 Slaapkamer(s)
- 2 Badkamer(s)
- 3 Toilet(ten)
- 1 Garage(s)
Beschrijving
Bent u op zoek naar een veelzijdig pakhuis met tal van mogelijkheden in een zonovergoten straat op toplocatie?
Dit unieke pand combineert ruimte, comfort en functionaliteit het bruisende centrum van Antwerpen.
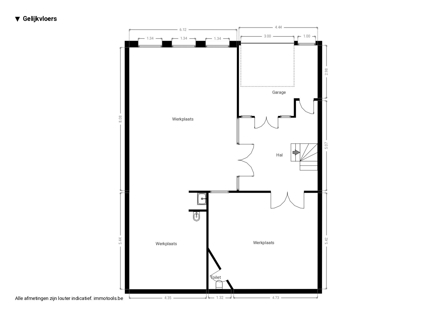
Indeling – gelijkvloers
Binnenkomen doen we via de inpandige staanplaats. Van hieruit bereikt u het gelijkvloers, ingericht als atelier op betonnen vloer, voorzien van radiatoren, spoelbak en toilet. Daarnaast is er een geluidsdichte ruimte met apart toilet – ideaal voor creatieve beroepen of vrij beroep.
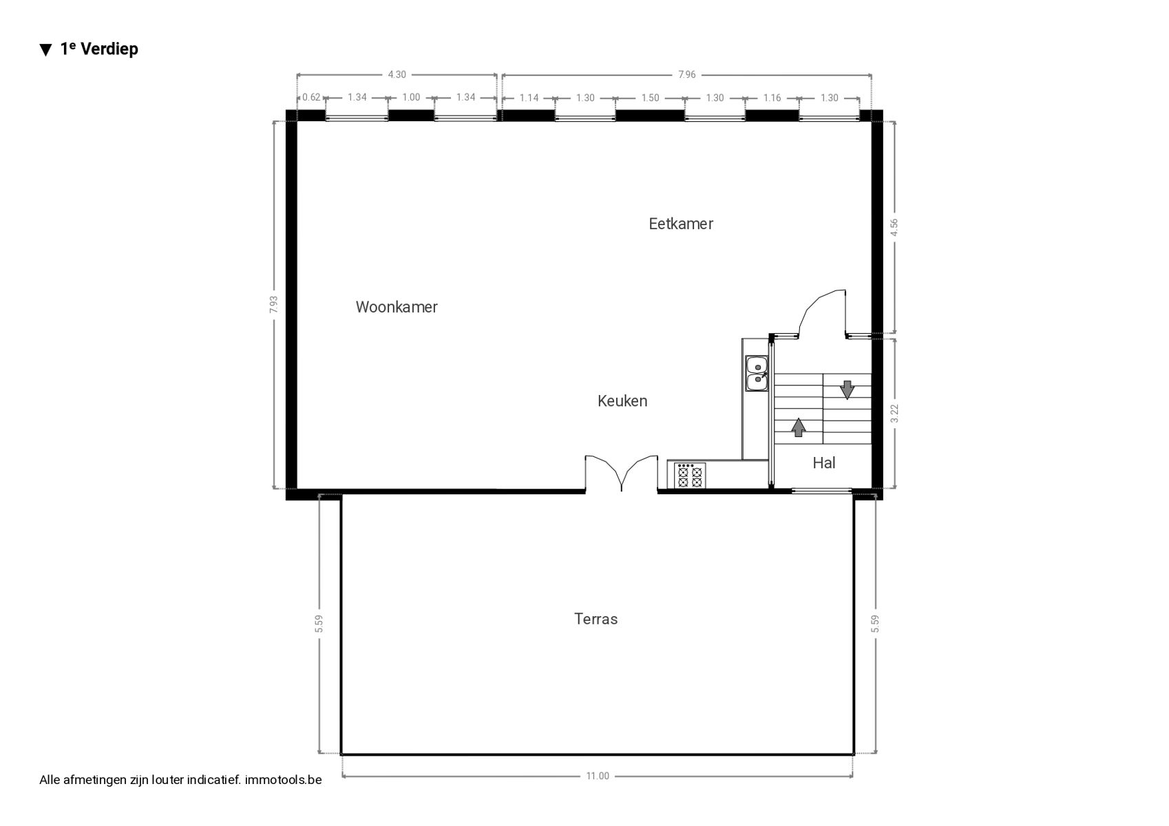
Indeling – eerste verdieping
De eerste verdieping herbergt een gezellige, omvangrijke leefruimte op houten vloer met open keuken. Deze is uitgerust met een professioneel Falcon gasfornuis voorzien van 3 ovens, vaatwasser en dubbele lavabo. Verder vinden we een eetkamer en zithoek terug, met aansluitend een zonovergoten terras van maar liefst 71,5 m².
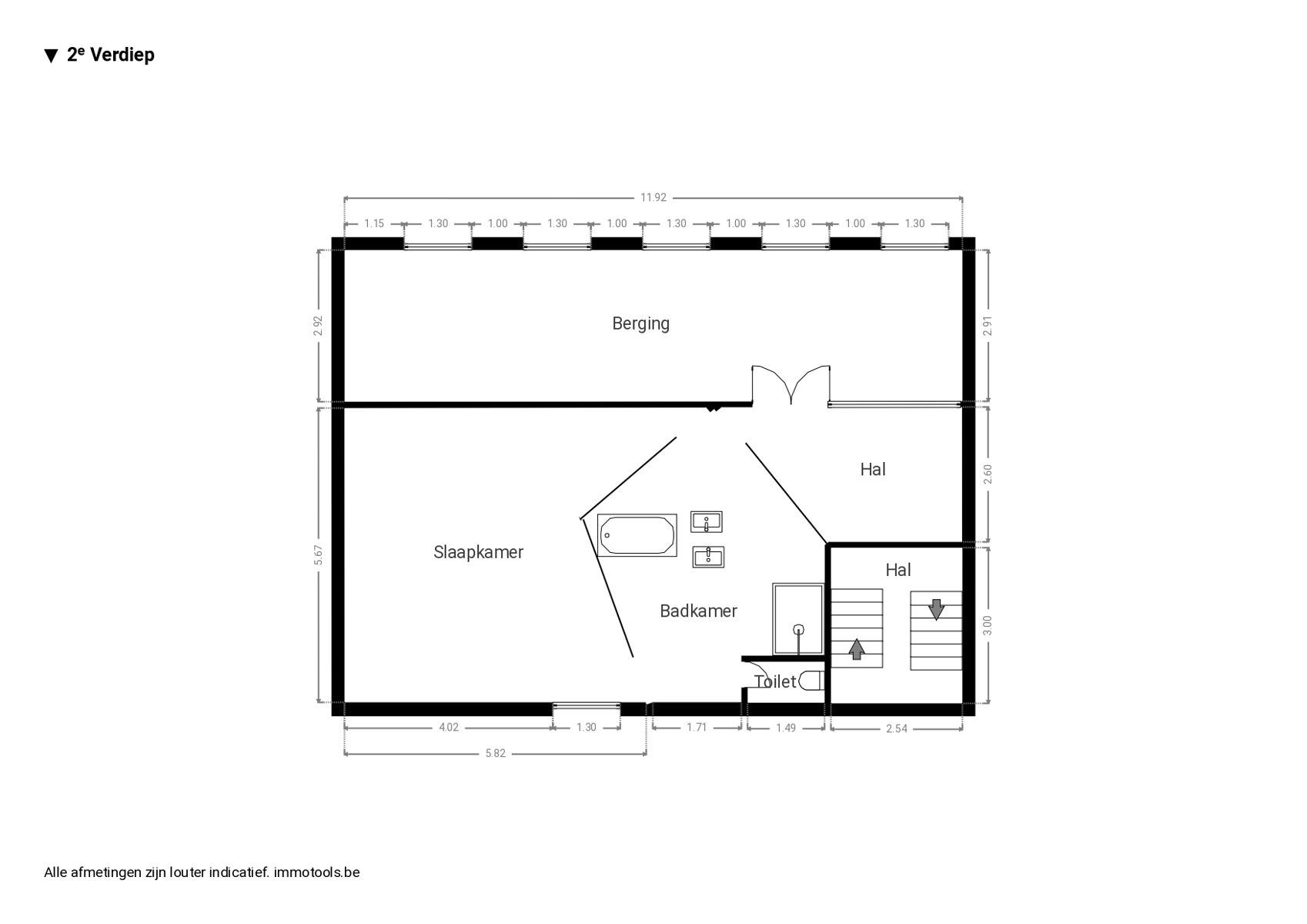
Indeling – tweede verdieping
Op de tweede verdieping bevindt zich de badkamer met ligbad, inloopdouche, 1dubbele lavabo en toilet. Ensuite ligt de ruime slaapkamer op houten vloer. Aanpalend treft u een praktische wasruimte met dressing.
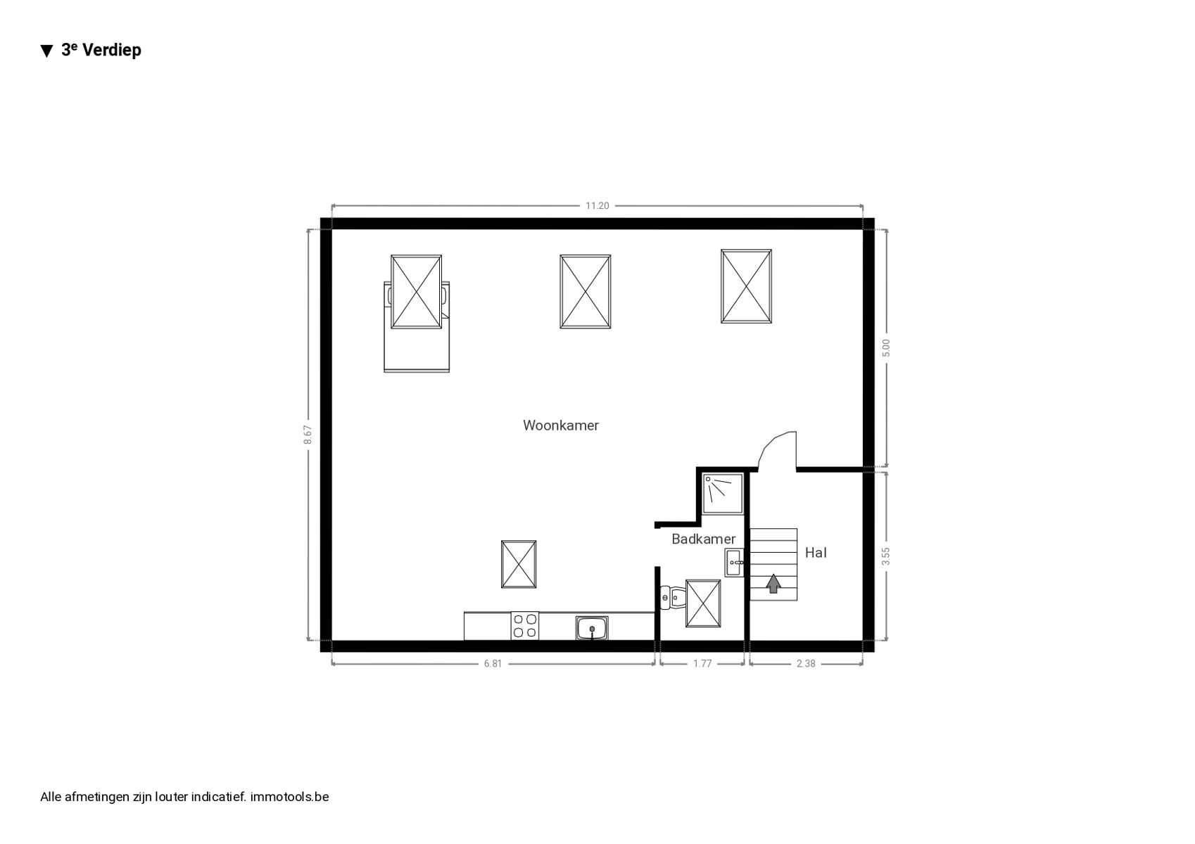
Indeling – derde verdieping
De derde verdieping biedt een studio van 80 m², volledig uitgerust met keuken, badkamer, zithoek, slaapkamer en mezzanine, om te vormen tot slaapkamer. Perfect als aparte woonunit of extra leefruimte.
Troeven van dit gebouw ✔
Grondige renovatie 2015 – 2023
Mogelijkheid tot creëren van extra slaapkamers
Inpandige garage
Gunstig EPC-label B
Groot terras van 71,5 m²
Centrum Antwerpen – alles binnen handbereik
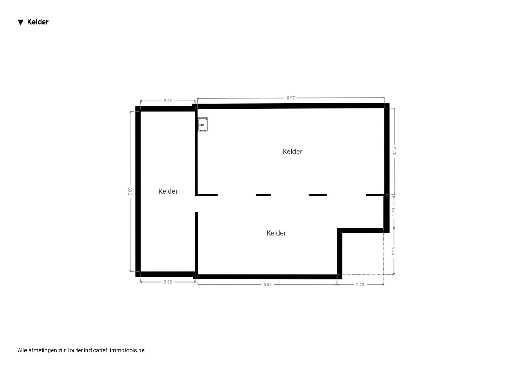
Droge, verwarmde kelder
📞 Meer informatie of een bezichtiging?
Contacteer Vastgoed03 via 03 568 03 03 of info@vastgoed03.be en ontdek de vele mogelijkheden van dit uitzonderlijke pand!
Volledig PAKHUIS in hartje Antwerpen met eindeloos potentieel!
Bent u op zoek naar een veelzijdig pakhuis met tal van mogelijkheden in een zonovergoten straat op toplocatie?
Dit unieke pand combineert ruimte, comfort en functionaliteit het bruisende centrum van Antwerpen.
Indeling – gelijkvloers
Binnenkomen doen we via de inpandige staanplaats. Van hieruit bereikt u het gelijkvloers, ingericht als atelier op betonnen vloer, voorzien van radiatoren, spoelbak en toilet. Daarnaast is er een geluidsdichte ruimte met apart toilet – ideaal voor creatieve beroepen of vrij beroep.
Indeling – eerste verdieping
De eerste verdieping herbergt een gezellige, omvangrijke leefruimte op houten vloer met open keuken. Deze is uitgerust met een professioneel Falcon gasfornuis voorzien van 3 ovens, vaatwasser en dubbele lavabo. Verder vinden we een eetkamer en zithoek terug, met aansluitend een zonovergoten terras van maar liefst 71,5 m².
Indeling – tweede verdieping
Op de tweede verdieping bevindt zich de badkamer met ligbad, inloopdouche, 1dubbele lavabo en toilet. Ensuite ligt de ruime slaapkamer op houten vloer. Aanpalend treft u een praktische wasruimte met dressing.
Indeling – derde verdieping
De derde verdieping biedt een studio van 80 m², volledig uitgerust met keuken, badkamer, zithoek, slaapkamer en mezzanine, om te vormen tot slaapkamer. Perfect als aparte woonunit of extra leefruimte.
Troeven van dit gebouw ✔
- Grondige renovatie 2015 – 2023
- Mogelijkheid tot creëren van extra slaapkamers
- Inpandige garage
- Gunstig EPC-label B
- Groot terras van 71,5 m²
- Centrum Antwerpen – alles binnen handbereik
- Droge, verwarmde kelder
📞 Meer informatie of een bezichtiging?
Contacteer Vastgoed03 via 03 568 03 03 of info@vastgoed03.be en ontdek de vele mogelijkheden van dit uitzonderlijke pand!
Energie
![]() |
- Energieverbruik: 149 kWh/m²/jaar
Op de kaart

Financieel
| Prijs |
|---|
Berekening kosten
Je aankoopkosten? Die heb je snel berekent via de knop hieronder.
Bijkomende info
Gebouw
| Bouwjaar | 1850 |
|---|---|
| Renovatie jaar | 2023 |
| Staat | Zo goed als nieuw |
| Bewoonbaar (m²) | 454 |
| Gevels | 2 |
| Badkamers | 2 |
| Slaapkamers | 2 |
| Garages | 1 |
| Parkeerplaatsen | 1 |
| Toiletten | 3 |
Faciliteiten
| Type vloer | |
|---|---|
| Keuken uitrusting | Standaard |
Perceel
| Overstromingsgevoelig | Geen |
|---|---|
| P-score | A |
| G-score | A |
| Tuin oppervlakte (m²) | 0 |
| Oriëntatie voorgevel | West |
| Oriëntatie terras | Oost |
Vergunning
| Vergunning | Geen beschikbaar |
|---|---|
| Verkavelingsvergunning | Geen beschikbaar |
Uitrusting
| Parking | Ja |
|---|---|
| Garage | Ja |
| Kelder | Ja |
| Zolder | Ja |
| Tuin | Nee |
| Terras | Ja |
| Gasaansluiting | Ja |
| Wateraansluiting | Ja |
| Elektriciteitsaansluiting | Ja |
