Charmante woning in hystorisch centrum Antwerpen
€ 325.000
Een pand van Immo Vasta
Overzicht
- 90 m² bewoonbaar
- 22 m² grond
- 2 Slaapkamer(s)
- 1 Badkamer(s)
- 2 Toilet(ten)
Beschrijving
Op zoek naar een charmant huis in het historisch centrum, met véél licht en leuke ruimtes? Dan is dit karaktervolle pand in de Rozenstraat misschien wel jouw nieuwe thuis. Je krijgt hier instapklaar comfort én alles binnen handbereik.
Karaktervol & comfortabel
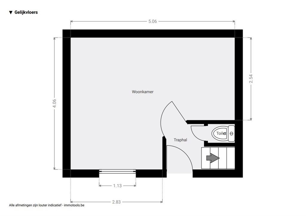
Je komt binnen in de inkomhal met een retro tegelvloer in grijs-wit hexagoon motief, die meteen charme uitstraalt. Achter de eerste deur ontdek je een multifunctionele ruimte op een lichte parketlaminaat, die perfect dienst kan doen als atelier of stockageruimte, maar evengoed als bureau, hobbykamer of zelfs als co-housing leefruimte. Er is een wastafel, een sierschouw in marmer én toegang tot de kelder (met stahoogte) via een luik voorzien. In de gang vind je nog een gastentoilet.
Zalig wonen & slapen
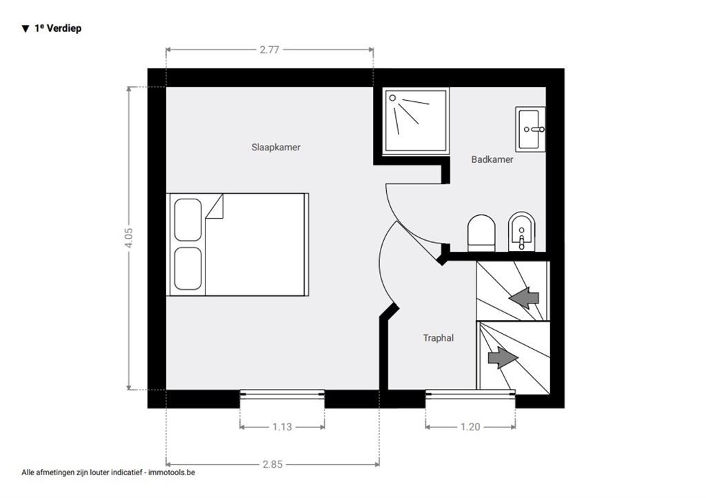
Op de eerste verdieping heb je een verrassend grote slaapkamer op witgeschilderde planchetten vloer, met ingemaakte rekkenwand. De ruimte baadt in het licht dankzij grote ramen en heeft een slim ingewerkte vensterbankkast met verwarming. Ensuite vind je een badkamer met houten vloer, rechthoekige wastafel, bidet, toilet en een volledig betegelde douche.
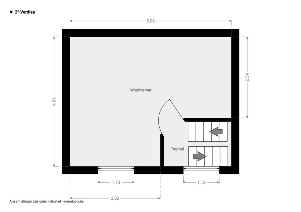
Een verdieping hoger ligt de gezellige woonkamer, opnieuw op een (deze keer opgeschuurde) houten planchetten vloer. De witte bakstenenmuur, open haardmantel in marmer en op maat gemaakte ingebouwde kasten zorgen voor sfeer en praktisch comfort. Het voelt hier warm, persoonlijk én huiselijk aan.
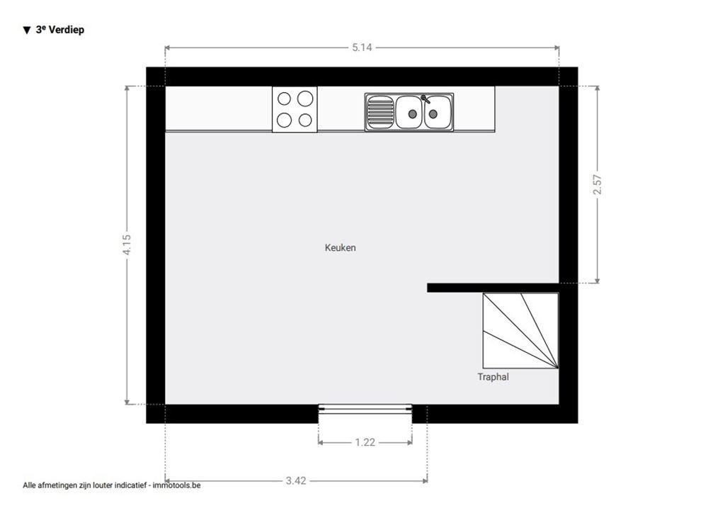
Op de derde verdieping kom je in de grote, lichte keuken met trendy groene wandtegel, witte kasten, een dubbele spoelbak, kunststof werkblad, inductievuur, combi-oven, dampkap en ingebouwde vaatwasser. Dankzij de lichtkoepel en twee grote ramen heb je hier de hele dag natuurlijk licht. Ook is er ruimte voor een eettafel en zelfs een loungehoekje aan het raam.
Leven in het hart van Antwerpen
Je woont hier in een rustige straat tussen de Ossenmarkt en het Eilandje, op wandelafstand van de universiteiten, Rooseveltplaats, het Centraal Station en de levendige Meir. Buurtwinkels, horeca en openbaar vervoer zijn overal vlakbij, maar dankzij de autoluwe straat is het hier verrassend stil.
Energie
![]() |
- EPC Certificaat: 20230830-0002976201-RES-1
- Energieverbruik: 221 kWh/m²/jaar
- E-peil: E0
- Verwarming: Gas
- Beglazing: Standaard dubbel
Op de kaart

Financieel
Prijs | |
---|---|
Kadastraal inkomen (niet geïndexeerd) | € 304 |
Kadastraal inkomen (geïndexeerd) | € 0 |
Berekening kosten
Je aankoopkosten? Die heb je snel berekent via de knop hieronder.
Bijkomende info
Gebouw
Bouwjaar | 1850 |
---|---|
Staat | Goed onderhouden |
Bouwcertificaat | Nee |
Bewoonbaar (m²) | 90 |
Verdieping | 0 |
Gevelbreedte | 5 |
Badkamers | 1 |
Slaapkamers | 2 |
Verdiepingen | 3 |
Garages | 0 |
Parkeerplaatsen | 0 |
Doucheruimtes | 0 |
Toiletten | 2 |
Faciliteiten
Keuken uitrusting | Luxueus uitgerust |
---|---|
Materiaal ramenomlijstingen | PVC |
Beglazing | Standaard dubbel |
Brandstof primaire verwarming | Gas |
Elektrisch keuringsattest | Ja |
Perceel
Diepte (m) | 4 |
---|---|
Breedte (m) | 5 |
Overstromingsgevoelig | Geen |
P-score | A |
Voorkeurrecht | Nee |
Totale oppervlakte (m²) | 22 |
Bebouwde oppervlakte (m²) | 22 |
Tuin oppervlakte (m²) | 0 |
Oppervlakte terras (m²) | 0 |
Oriëntatie tuin | Noordwest |
Uitrusting
Investeringspand | Nee |
---|---|
Geschikt voor praktijk | Nee |
Parking | Nee |
Garage | Nee |
Thuiskantoor | Nee |
Kelder | Ja |
Zolder | Nee |
Tuin | Nee |
Terras | Nee |
Lift | Nee |
Rioolaansluiting | Nee |
Gasaansluiting | Ja |
Wateraansluiting | Ja |
Elektriciteitsaansluiting | Ja |
TV aansluiting | Nee |
Internetaansluiting | Nee |
Telefoonaansluiting | Nee |