Startersappartement met balkon
€ 129.000
Een pand van Immo Vasta
Jouw zoektocht
Overzicht
- 46 m² bewoonbaar
- 111 m² grond
- 1 Slaapkamer(s)
- 1 Badkamer(s)
- 1 Toilet(ten)
Beschrijving
Op zoek naar een compact appartement op een toplocatie waar alles binnen handbereik ligt? Dan zit je hier goed. Dit gezellige 1-slaapkamerappartement met charmant Parijs balkon en hoge plafonds, gelegen op de grens van 2018 Antwerpen en Oud-Berchem, bevindt zich op wandelafstand van het station, hippe hotspots en alle stedelijke voorzieningen. Ideaal als eerste aankoop of investering.
Hoge plafonds, charme en Parijs Balkon
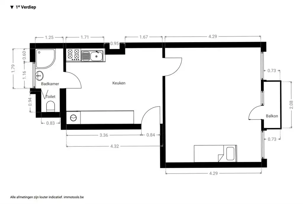
Je komt binnen in de open keuken, waar voldoende ruimte is om comfortabel te koken en een gezellige eettafel te plaatsen. De keuken is functioneel ingericht met kastruimte, aansluiting voor wasmachine en vaatwasser aan de ene zijde, en aan de andere zijde een dubbele spoelbak en oven met gasvuur — alles binnen handbereik. Aansluitend bereik je de badkamer, gelegen aan de achterzijde van het gebouw en uitgerust met een douchecabine, lavabo met onderkast en toilet; netjes en praktisch ingericht.
De slaapkamer bevindt zich aan de voorzijde en geniet van veel natuurlijke lichtinval dankzij drie kamerhoge ramen, afgewerkt met een verzorgde laminaatvloer. Er is voldoende plaats voor zowel een bed als een zithoek. Vanuit deze ruimte heb je toegang tot het charmante balkon, waar je kan genieten van de buitenlucht en een koffiemoment in de zon.
Leven op de grens van Oud-Berchem en Antwerpen
Wonen in Oud-Berchem betekent genieten van een levendige, maar aangename buurt. Je hebt hier alles binnen handbereik: winkels in de Statiestraat, gezellige horeca in het PAKT, scholen, openbaar vervoer en velo-stations. Bovendien ben je dankzij de nabijheid van de Singel en de Ring snel in en uit de stad. Een ideale uitvalsbasis voor wie centraal én comfortabel wil wonen.
Energie
![]() |
- EPC Certificaat: 20260313-0003823879-RES-1
- Energieverbruik: 161 kWh/m²/jaar
- E-peil: E0
- Verwarming: Gas
- Beglazing: Standaard dubbel
Op de kaart

Financieel
| Prijs | |
|---|---|
| Kadastraal inkomen (niet geïndexeerd) | € 0 |
| Kadastraal inkomen (geïndexeerd) | € 0 |
Berekening kosten
Je aankoopkosten? Die heb je snel berekend via de knop hieronder.
Bijkomende info
Gebouw
| Staat | Goed onderhouden |
|---|---|
| Bouwcertificaat | Nee |
| Bewoonbaar (m²) | 46 |
| Verdieping | 1 |
| Gevelbreedte | 5.5 |
| Badkamers | 1 |
| Slaapkamers | 1 |
| Verdiepingen | 3 |
| Garages | 0 |
| Parkeerplaatsen | 0 |
| Doucheruimtes | 0 |
| Toiletten | 1 |
Faciliteiten
| Keuken uitrusting | Luxueus uitgerust |
|---|---|
| Materiaal ramenomlijstingen | PVC |
| Beglazing | Standaard dubbel |
| Brandstof primaire verwarming | Gas |
| Elektrisch keuringsattest | Ja |
Perceel
| Overstromingsgevoelig | Geen |
|---|---|
| P-score | A |
| G-score | A |
| Voorkeurrecht | Nee |
| Totale oppervlakte (m²) | 111 |
| Bebouwde oppervlakte (m²) | 0 |
| Tuin oppervlakte (m²) | 0 |
| Oppervlakte terras (m²) | 2 |
| Oriëntatie tuin | Zuidwest |
Vergunning
| Vergunning | Vergunning beschikbaar |
|---|
Uitrusting
| Investeringspand | Nee |
|---|---|
| Geschikt voor praktijk | Nee |
| Parking | Nee |
| Garage | Nee |
| Thuiskantoor | Nee |
| Kelder | Ja |
| Zolder | Nee |
| Tuin | Nee |
| Terras | Ja |
| Lift | Nee |
| Rioolaansluiting | Nee |
| Gasaansluiting | Nee |
| Wateraansluiting | Nee |
| Elektriciteitsaansluiting | Nee |
| TV aansluiting | Nee |
| Internetaansluiting | Nee |
| Telefoonaansluiting | Nee |
Appartementsblok
| Aantal verdiepingen | 3 |
|---|---|
| Lift | Nee |
