Gerenoveerd appartement met mezzanine
€ 159.000
Een pand van Immo Vasta
Jouw zoektocht
Overzicht
- 52 m² bewoonbaar
- 111 m² grond
- 1 Slaapkamer(s)
- 1 Badkamer(s)
- 1 Toilet(ten)
Beschrijving
Wonen op hoogte, met karakter en licht? Dit knappe appartement combineert een open leefruimte met een gezellige mezzanine, ideaal voor wie houdt van een unieke indeling en een warme, moderne uitstraling. Gelegen op de grens van 2018 Antwerpen en Oud-Berchem, vlakbij Station Berchem
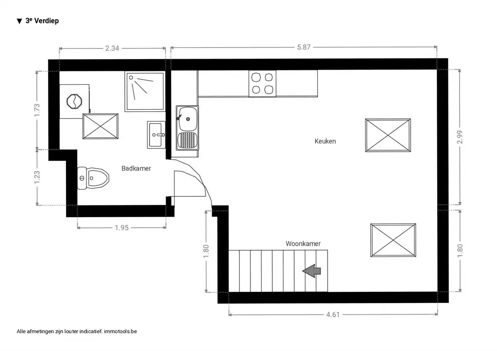
Open keuken met leefruimte en toffe badkamer
Bij het binnenkomen valt meteen de openheid en het ruimtegevoel op. De leefruimte en keuken vloeien naadloos in elkaar over, met een mooie combinatie van een warme parketvloer en onderhoudsvriendelijke tegels in de keuken. Er is voldoende plaats voor zowel een gezellige eethoek als een comfortabele zithoek, en dankzij de grote veluxramen geniet je hier van veel natuurlijk licht. De keuken is volledig uitgerust met oven, kookplaat, dampkap, vaatwasser en koelkast met diepvries. Dankzij de strakke afwerking en het praktische ontwerp is dit een fijne plek om te koken én te genieten.
Aansluitend bevindt zich de badkamer, afgewerkt met grote grijze XL-tegels en stijlvolle metrotegels tegen de muur. Deze is voorzien van een douchecabine, lavabo met opbergruimte, aansluiting voor wasmachine en droogkast en een hangtoilet. Alles is compact maar doordacht ingericht, met oog voor comfort en extra lichtinval via het veluxraam.
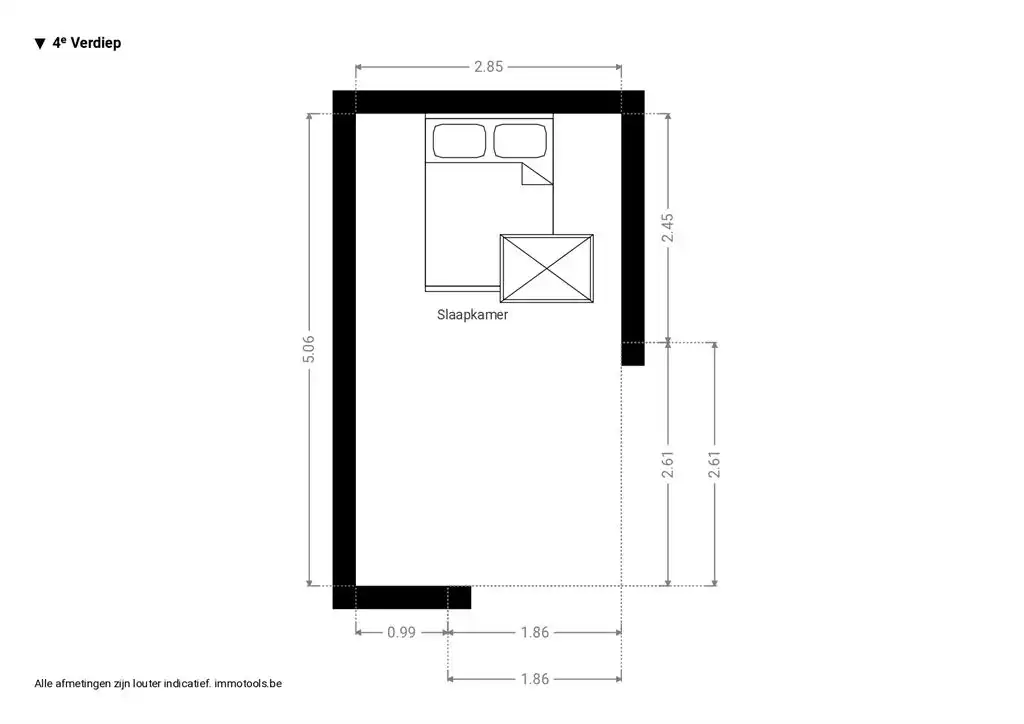
Sfeervol slapen op hoogte met loftgevoel
Via de knappe, geïntegreerde trap bereik je de mezzanine, ingericht als slaapkamer en afgewerkt met een warme parketvloer. Deze verdieping geeft het appartement een speelse, loftachtige uitstraling. De open structuur zorgt voor een aangenaam ruimtegevoel, terwijl de dakramen zorgen voor een overvloed aan natuurlijk licht. Hier kom je helemaal tot rust.
Leven op de grens van Oud-Berchem en Antwerpen
Wonen in Oud-Berchem betekent genieten van een levendige, maar aangename buurt. Je hebt hier alles binnen handbereik: winkels in de Statiestraat, gezellige horeca in het PAKT, scholen, openbaar vervoer en velo-stations. Bovendien ben je dankzij de nabijheid van de Singel en de Ring snel in en uit de stad. Een ideale uitvalsbasis voor wie centraal én comfortabel wil wonen.
Energie
![]() |
- EPC Certificaat: 20260313-0003823809-RES-1
- Energieverbruik: 154 kWh/m²/jaar
- E-peil: E0
- Verwarming: Gas
- Beglazing: Standaard dubbel
Op de kaart

Financieel
| Prijs | |
|---|---|
| Kadastraal inkomen (niet geïndexeerd) | € 0 |
| Kadastraal inkomen (geïndexeerd) | € 0 |
Berekening kosten
Je aankoopkosten? Die heb je snel berekend via de knop hieronder.
Bijkomende info
Gebouw
| Staat | Goed onderhouden |
|---|---|
| Bouwcertificaat | Nee |
| Bewoonbaar (m²) | 52 |
| Verdieping | 0 |
| Gevelbreedte | 5.5 |
| Badkamers | 1 |
| Slaapkamers | 1 |
| Verdiepingen | 3 |
| Garages | 0 |
| Parkeerplaatsen | 0 |
| Doucheruimtes | 0 |
| Toiletten | 1 |
Faciliteiten
| Keuken uitrusting | Luxueus uitgerust |
|---|---|
| Materiaal ramenomlijstingen | PVC |
| Beglazing | Standaard dubbel |
| Brandstof primaire verwarming | Gas |
| Elektrisch keuringsattest | Nee |
Perceel
| Overstromingsgevoelig | Geen |
|---|---|
| P-score | A |
| G-score | A |
| Voorkeurrecht | Nee |
| Totale oppervlakte (m²) | 111 |
| Bebouwde oppervlakte (m²) | 0 |
| Tuin oppervlakte (m²) | 0 |
| Oppervlakte terras (m²) | 0 |
| Oriëntatie tuin | ZuidOost |
Vergunning
| Vergunning | Vergunning beschikbaar |
|---|
Uitrusting
| Investeringspand | Nee |
|---|---|
| Geschikt voor praktijk | Nee |
| Parking | Nee |
| Garage | Nee |
| Thuiskantoor | Nee |
| Kelder | Ja |
| Zolder | Nee |
| Tuin | Nee |
| Terras | Nee |
| Lift | Nee |
| Rioolaansluiting | Nee |
| Gasaansluiting | Nee |
| Wateraansluiting | Nee |
| Elektriciteitsaansluiting | Nee |
| TV aansluiting | Nee |
| Internetaansluiting | Nee |
| Telefoonaansluiting | Nee |
Appartementsblok
| Aantal verdiepingen | 3 |
|---|---|
| Lift | Nee |
