Gelijkvloersappartement vlakbij Groen Kwartier
€ 225.000
Een pand van Immo Vasta
Jouw zoektocht
Overzicht
- 77 m² bewoonbaar
- 111 m² grond
- 1 Slaapkamer(s)
- 1 Badkamer(s)
- 1 Toilet(ten)
- 1 Tuin
Beschrijving
Veel centraler dan dit wordt het niet: op de grens van Antwerpen en het bruisende Oud-Berchem woon je hier op wandelafstand van station Antwerpen-Berchem, het hippe PAKT en het gezellige Frans Van Hombeeckplein, met ook de Draakplaats en Dageraadplaats vlakbij. Dit gelijkvloers appartement straalt authentieke charme uit, beschikt over een leuke stadskoer en biedt een flexibele indeling die je volledig naar eigen smaak kan afwerken en inrichten.
Authentiek & flexibel ingedeeld
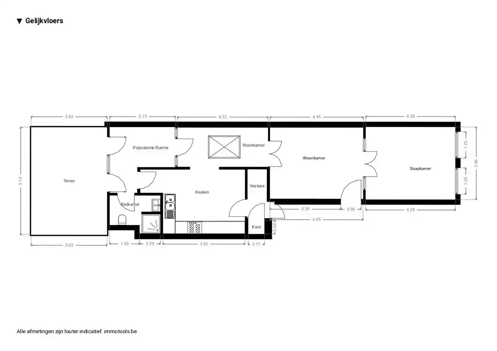
Je komt binnen in de inkomhal op tegelvloer, met plaats voor jassen en schoenen. Van hieruit stap je meteen de keuken binnen, praktisch ingericht met dubbele spoelbak, gasvuur, dampkap en voldoende kastruimte. Aansluitend vind je de badkamer, die netjes werd vernieuwd met een moderne douchecabine, lavabomeubel, spiegelkast en toilet. Achteraan bevindt zich de veranda, een polyvalente ruimte met zicht op de stadskoer — een aangename plek om te genieten van een koffietje in de zon.
De huidige indeling voorziet rechts van de keuken een zithoek, slaapkamer en bureau. Deze indeling kan je eenvoudig optimaliseren: maak van de bureauruimte aan de straatzijde een volwaardige slaapkamer en richt de huidige slaapkamer in als leefruimte.
Stadstuin & extra ruimte
De gezellige stadstuin op klinkers vormt een leuke buitenplek met ruimte voor planten en een tafeltje. Ideaal om te ontspannen na een drukke dag in de stad. De veranda fungeert als extra tussenruimte en brengt binnen en buiten mooi samen.
Leven op de grens van Oud-Berchem en Antwerpen
Wonen in Oud-Berchem betekent genieten van een levendige, maar aangename buurt. Je hebt hier alles binnen handbereik: winkels in de Statiestraat, gezellige horeca in het PAKT, scholen, openbaar vervoer en velo-stations. Bovendien ben je dankzij de nabijheid van de Singel en de Ring snel in en uit de stad. Een ideale uitvalsbasis voor wie centraal én comfortabel wil wonen.
Energie
![]() |
- EPC Certificaat: 20260313-0003823886-RES-1
- Energieverbruik: 337 kWh/m²/jaar
- E-peil: E0
- Verwarming: Gas
- Beglazing: Standaard dubbel
Extra budget nodig voor je renovatie?

Op de kaart

Financieel
| Prijs | |
|---|---|
| Kadastraal inkomen (niet geïndexeerd) | € 0 |
| Kadastraal inkomen (geïndexeerd) | € 0 |
Berekening kosten
Je aankoopkosten? Die heb je snel berekend via de knop hieronder.
Bijkomende info
Gebouw
| Staat | Goed onderhouden |
|---|---|
| Bouwcertificaat | Nee |
| Bewoonbaar (m²) | 77 |
| Verdieping | 0 |
| Gevelbreedte | 5.5 |
| Badkamers | 1 |
| Slaapkamers | 1 |
| Verdiepingen | 3 |
| Garages | 0 |
| Parkeerplaatsen | 0 |
| Doucheruimtes | 0 |
| Toiletten | 1 |
Faciliteiten
| Keuken uitrusting | Luxueus uitgerust |
|---|---|
| Materiaal ramenomlijstingen | PVC |
| Beglazing | Standaard dubbel |
| Brandstof primaire verwarming | Gas |
| Elektrisch keuringsattest | Ja |
Perceel
| Overstromingsgevoelig | Geen |
|---|---|
| P-score | A |
| G-score | A |
| Voorkeurrecht | Nee |
| Totale oppervlakte (m²) | 111 |
| Bebouwde oppervlakte (m²) | 0 |
| Tuin oppervlakte (m²) | 18 |
| Oppervlakte terras (m²) | 0 |
Vergunning
| Vergunning | Vergunning beschikbaar |
|---|
Uitrusting
| Investeringspand | Nee |
|---|---|
| Geschikt voor praktijk | Nee |
| Parking | Nee |
| Garage | Nee |
| Thuiskantoor | Nee |
| Kelder | Ja |
| Zolder | Nee |
| Tuin | Ja |
| Terras | Nee |
| Lift | Nee |
| Rioolaansluiting | Ja |
| Gasaansluiting | Ja |
| Wateraansluiting | Ja |
| Elektriciteitsaansluiting | Ja |
| TV aansluiting | Nee |
| Internetaansluiting | Nee |
| Telefoonaansluiting | Nee |
Appartementsblok
| Aantal verdiepingen | 3 |
|---|---|
| Lift | Nee |


