Gerenoveerd duplex appartement met terras
Een pand van Immo Vasta
Overzicht
- 96 m² bewoonbaar
- 147 m² grond
- 2 Slaapkamer(s)
- 1 Badkamer(s)
- 1 Toilet(ten)
Overstromingsgevaar gebouw
Overstromingsgevaar perceel
Beschrijving
Stijlvolle, gerenoveerde stek in een van de gezelligste wijken van Antwerpen. In deze prachtige duplex met lichte parket, hoge plafonds en een zonnig terras, zit je meer dan goed. Gelegen in hartje Zurenborg, vlak bij de Dageraadplaats en de Draakplaats, met hun levendige horeca en het Stadspark én Te Boelaarpark op wandelafstand.
Stijlvol wonen met karakter & zalig terras
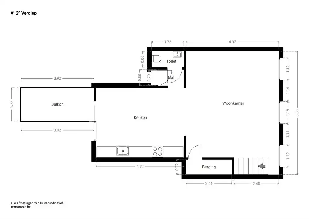
Je komt binnen via de veiligheidsdeur vanuit de statige gemeenschappelijke hal. De inkomhal, voorzien van een apart toilet met lavabo, voorziet een duidelijke scheiding met de leefruimte. Deze leefruimte van maar liefst ca. 33 m² baadt in het licht dankzij de hoge zuidgerichte ramen met lamellen. De hoge plafonds van 3 meter en de stijlvolle parketvloer geven de ruimte een elegant karakter. Onder de trap bevindt zich een handige berging — ideaal voor extra opslagruimte. De open keuken heeft een strakke, moderne uitstraling. Ze is afgewerkt met een werkblad in kwartscomposiet en is volledig uitgerust met een grote koelkast, diepvries, combi-oven, inductievuur, ingebouwde spoelbak en vaatwasser. Ook hier ligt dezelfde warme parketvloer, wat zorgt voor een mooi geheel. Aansluitend vind je het terras van ca. 6,5 m² op bangkirai. Dankzij de gunstige oriëntatie geniet je hier van rust en een geweldig zicht over de Antwerpse daken.
Ruime bovenverdieping met luxueuze badkamer
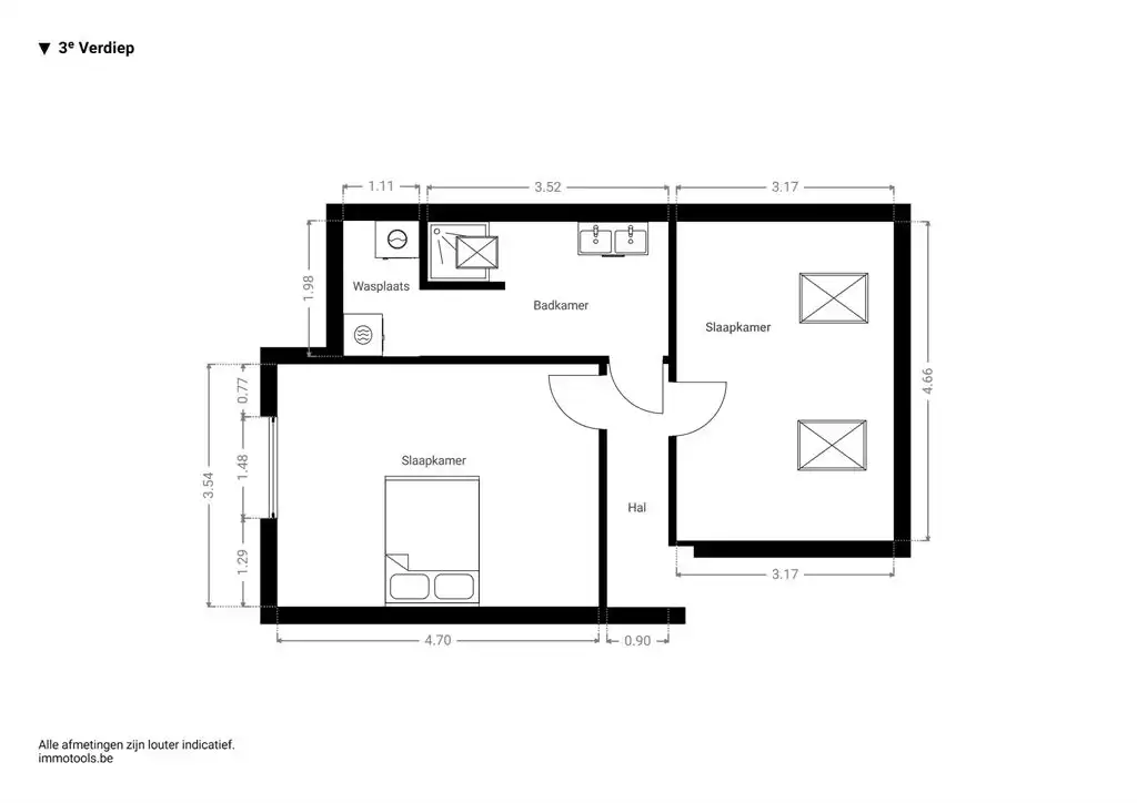
Op de derde verdieping bevinden zich twee ruime slaapkamers en een badkamer. De master bedroom ligt aan de rustige noordoostzijde en heeft een charmante dakkapel met open zicht. De tweede kamer is ideaal als kinderkamer, bureau of hobbyruimte, met twee veluxramen die zorgen voor overvloedig daglicht. De badkamer van straalt pure klasse uit. De vloer is afgewerkt met travertin-tegels die naadloos overlopen in de inloopdouche, uitgerust met een stijlvolle bronzen kraan. Daarnaast vind je er een dubbele spoelbakmeubel en grote spiegel met licht, groot veluxraam, en een handige washoek voor wasmachine en droogkast.
Levendige buurt vol troeven
Wonen in de Kleinebeerstraat betekent wonen in het hart van Zurenborg, een van de populairste wijken van Antwerpen. Je geniet hier van gezellige pleintjes, originele architectuur, hippe bars en restaurants, en tegelijk ook van rust en groen in de nabijgelegen parken. Met het openbaar vervoer, velo-stations en grote invalswegen vlakbij, woon je hier uiterst praktisch én sfeervol.
Energie
![]() |
- EPC Certificaat: 20230119-0002776235-RES-1
- Energieverbruik: 144 kWh/m²/jaar
- E-peil: E0
- Verwarming: Gas
- Beglazing: Standaard dubbel
Op de kaart

Financieel
| Prijs | |
|---|---|
| Kadastraal inkomen (niet geïndexeerd) | € 638 |
| Kadastraal inkomen (geïndexeerd) | € 0 |
Berekening kosten
Je aankoopkosten? Die heb je snel berekent via de knop hieronder.
Bijkomende info
Gebouw
| Staat | Goed onderhouden |
|---|---|
| Bouwcertificaat | Nee |
| Bewoonbaar (m²) | 96 |
| Verdieping | 2 |
| Gevelbreedte | 6 |
| Badkamers | 1 |
| Slaapkamers | 2 |
| Verdiepingen | 2 |
| Garages | 0 |
| Parkeerplaatsen | 0 |
| Doucheruimtes | 0 |
| Toiletten | 1 |
Faciliteiten
| Keuken uitrusting | Luxueus uitgerust |
|---|---|
| Materiaal ramenomlijstingen | PVC |
| Beglazing | Standaard dubbel |
| Brandstof primaire verwarming | Gas |
| Elektrisch keuringsattest | Ja |
Perceel
| Diepte (m) | 25 |
|---|---|
| Breedte (m) | 6 |
| Overstromingsgevoelig | Geen |
| P-score | D |
| G-score | D |
| Voorkeurrecht | Nee |
| Totale oppervlakte (m²) | 147 |
| Bebouwde oppervlakte (m²) | 113 |
| Tuin oppervlakte (m²) | 0 |
| Oppervlakte terras (m²) | 6 |
| Oriëntatie tuin | Noordoost |
Uitrusting
| Investeringspand | Nee |
|---|---|
| Geschikt voor praktijk | Nee |
| Parking | Nee |
| Garage | Nee |
| Thuiskantoor | Nee |
| Kelder | Ja |
| Zolder | Nee |
| Tuin | Nee |
| Terras | Ja |
| Lift | Nee |
| Rioolaansluiting | Nee |
| Gasaansluiting | Nee |
| Wateraansluiting | Nee |
| Elektriciteitsaansluiting | Nee |
| TV aansluiting | Nee |
| Internetaansluiting | Nee |
| Telefoonaansluiting | Nee |
Appartementsblok
| Aantal verdiepingen | 2 |
|---|---|
| Lift | Nee |
