Appartement met terras op absolute toplocatie!
Een pand van Immo Vasta
Jouw zoektocht
Overzicht
- 57 m² bewoonbaar
- 3977 m² grond
- 1 Slaapkamer(s)
- 1 Badkamer(s)
- 1 Toilet(ten)
Beschrijving
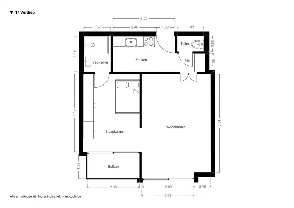
Wonen in de gegeerde Lange Lozanastraat, op een boogscheut van Harmoniepark, Hof van Leysen en allerlei leuke adressen? Dan is dit verzorgde 1-slaapkamerappartement van ca. 57 m² vast iets voor jou. Je krijgt hier een ruime leefruimte, een fijn westgericht terras, een groene gemeenschappelijke tuin én een instapklaar geheel dat meteen goed aanvoelt.
Licht, lucht en een fijne flow
Je komt binnen in de inkomhal met ingemaakte vestiairekast, handig voor jassen, schoenen en zaken die je liever uit het zicht houdt. Van hieruit heb je toegang tot het aparte toilet en de keuken, en die loopt op haar beurt mooi over in de leefruimte. Die woonkamer van ca. 25 m² is breed, lichtrijk en gewoon een heel aangename plek om te zijn. Dankzij de grote raampartij aan de straatkant valt het daglicht hier rijkelijk binnen, en met de warme laminaatvloer voelt het geheel meteen huiselijk aan. Je maakt hier makkelijk een gezellige zithoek én een eethoek, zonder dat het druk aanvoelt.
Strak & praktisch
De aparte keuken is verzorgd en functioneel ingericht, met witte kastfrontjes, een donker werkblad en alles wat je nodig hebt: een elektrisch vuur, inox spoelbak, koelkast, heteluchtoven en dampkap. Geen overbodige franjes, wel een nette, tijdloze basis waar je meteen mee weg bent. Ook fijn: de indeling van het appartement zit gewoon goed. Alles ligt logisch, compact en comfortabel.
Slapen met terraszicht
De slaapkamer is voorzien van ingemaakte kasten. Het geeft toegang tot het terras, een westgericht plekje van ca. 4 m² op bangkirai, waar je na het werk nog heerlijk van de zon kunt genieten. Ook de badkamer ligt aansluitend aan de slaapkamer, wat het comfort vergroot. Die is uitgerust met een inloopdouche, lavabomeubel, spiegelmeubel met verlichting en aansluiting voor de wasmachine. Praktisch én netjes, net zoals de rest van het appartement.
Stadse ligging met een groen randje
De Lange Lozanastraat is niet voor niets zo geliefd. Je woont hier in een levendige, mooie buurt met karaktervolle architectuur, op wandelafstand van Harmoniepark, het Koning Albertpark en Hof van Leysen. Zin in een koffie of apero bij Kamiel, een wandeling in het groen of gewoon het gemak van alles dichtbij? Hier zit je goed. Ook qua bereikbaarheid is dit een sterke locatie: tram, bus en velo zijn vlakbij, en via de Jan Van Rijswijcklaan ben je in geen tijd de stad in of uit. Extra plus: het gebouw beschikt ook over een groene gemeenschappelijke tuin, een zeldzame bonus op zo’n centrale plek.
Energie
![]() |
- EPC Certificaat: 20200131-0002242707-RES-1
- Energieverbruik: 152 kWh/m²/jaar
- E-peil: E0
- Verwarming: Gas
- Beglazing: Standaard dubbel
Op de kaart

Financieel
| Prijs | |
|---|---|
| Kadastraal inkomen (niet geïndexeerd) | € 852 |
| Kadastraal inkomen (geïndexeerd) | € 0 |
Berekening kosten
Je aankoopkosten? Die heb je snel berekend via de knop hieronder.
Bijkomende info
Gebouw
| Bouwjaar | 1973 |
|---|---|
| Staat | Goed onderhouden |
| Bouwcertificaat | Nee |
| Bewoonbaar (m²) | 57 |
| Verdieping | 1 |
| Gevelbreedte | 7 |
| Badkamers | 1 |
| Slaapkamers | 1 |
| Verdiepingen | 6 |
| Garages | 0 |
| Parkeerplaatsen | 0 |
| Doucheruimtes | 0 |
| Toiletten | 1 |
Faciliteiten
| Keuken uitrusting | Standaard |
|---|---|
| Materiaal ramenomlijstingen | PVC |
| Beglazing | Standaard dubbel |
| Brandstof primaire verwarming | Gas |
| Elektrisch keuringsattest | Ja |
Perceel
| Overstromingsgevoelig | Geen |
|---|---|
| P-score | B |
| G-score | B |
| Voorkeurrecht | Nee |
| Totale oppervlakte (m²) | 3977 |
| Bebouwde oppervlakte (m²) | 0 |
| Tuin oppervlakte (m²) | 0 |
| Oppervlakte terras (m²) | 4 |
| Oriëntatie tuin | Oost |
Vergunning
| Vergunning | Vergunning beschikbaar |
|---|
Uitrusting
| Investeringspand | Nee |
|---|---|
| Geschikt voor praktijk | Nee |
| Parking | Nee |
| Garage | Nee |
| Thuiskantoor | Nee |
| Kelder | Ja |
| Zolder | Nee |
| Tuin | Nee |
| Terras | Ja |
| Lift | Ja |
| Rioolaansluiting | Nee |
| Gasaansluiting | Nee |
| Wateraansluiting | Nee |
| Elektriciteitsaansluiting | Nee |
| TV aansluiting | Nee |
| Internetaansluiting | Nee |
| Telefoonaansluiting | Nee |
Appartementsblok
| Aantal verdiepingen | 6 |
|---|---|
| Lift | Ja |
