Kwalitatief gerenoveerd appartement
Een pand van Immo Vasta
Overzicht
- 89 m² bewoonbaar
- 2 Slaapkamer(s)
- 1 Badkamer(s)
- 1 Toilet(ten)
Beschrijving
Als eerste bewoner na een totaalrenovatie trek je dit prachtige appartement in zonder zorgen. Met z’n 90 m² bewoonbare oppervlakte, 2 kamers, tof terras (10 m² ) én EPC A heb je hier op de zesde verdieping een heerlijke plek te pakken in hartje Boho.
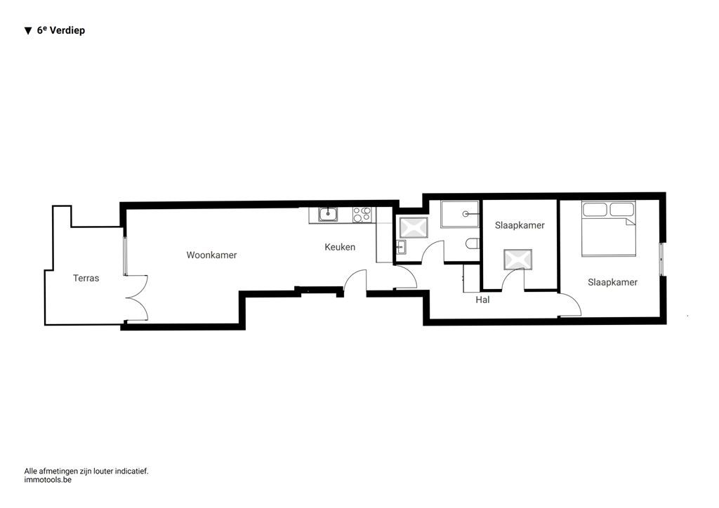
In een verzorgd appartementsgebouw op de Plantin & Moretuslei met airco, zonnepanelen en mooie erkers aan de straatkant, vind je op de zesde verdieping dit gerenoveerde appartement. Je komt er binnen in de open keuken , op een prachtige doorlopende parketvloer die alle ruimtes subtiel met mekaar verbindt. Aan de linkerkant strekt het salon zich uit met daarachter het leuke terras — een verlengstuk van de leefruimte waar het heerlijk vertoeven is. Rechts verbindt de nachthal alle slaapkamers en de badkamer met elkaar tot één rustig geheel.
Strakke leefkeuken, ruime woonkamer en tof terras
De strakke open keuken in wit- en zwarttinten is tijdloos en volledig geïnstalleerd, met een inductievuur, dampkap, oven, microgolf, koelkast, diepvries, spoelbak, vaatwasser en heel wat kasten en schuiven.
Achter de open keuken, aan de rustige achterzijde van het gebouw, bevindt zich de woonkamer. Dankzij de kamerbrede ramen en de ligging op de zesde verdieping geniet je hier van een overvloed aan natuurlijk licht. De absolute troef van het appartement is zonder twijfel het terras — een echte eyecatcher. Hier lopen binnen en buiten naadloos in elkaar over. Zuidgericht en heerlijk rustig, met genoeg plek voor een loungeset en eettafel: de ideale plek om te aperitieven in de avondzon of te genieten van een rustige ochtendkoffie.
Luxueuse badkamer en twee ruime slaapkamers.
Rechts bij het binnenkomen leidt de nachthal je verder door het appartement. Een ingemaakte kast zorgt er op elegante wijze voor dat alles zijn plek vindt. Links ontdek je de badkamer — een ruimte die luxe en rust uitstraalt. De XL-tegels vormen een serene basis voor de grote inloopdouche met zwarte glaswand. Het zwarte hangtoilet, de handdoekendroger en het strakke lavabomeubel met slimme kleurenspiegel maken het geheel helemaal af. Ook aan praktisch comfort is gedacht, met een aansluiting voor wasmachine en droogkast.
Achter de badkamer bevindt zich de eerste slaapkamer, afgewerkt met dezelfde warme parketvloer. Helemaal achteraan ligt de master bedroom, aan de voorkant van het gebouw, waar het ochtendlicht zacht binnenvalt en de ruimte vult met een gevoel van rust.
Toplocatie in Borgerhout
Je woont hier pal op de Plantin en Moretuslei. Dat wil zeggen: alles vlakbij, van het Centraal Station, tot allerlei winkels, scholen, supermarkten (nieuwe Delhaize), openbaar vervoer en velo-fietsen. De Dageraadplaats ligt achter je hoek en ook het Moorkensplein is niet veraf. Je bent van hieruit ook zo de Ring op en als je nood hebt aan wat groen, zit je op vijf minuutjes al in het stadspark, of in het Te Boelaerpark, net buiten de Ring.
Energie
![]() |
- EPC Certificaat: 20251002-0003503116-RES-2
- Energieverbruik: 76 kWh/m²/jaar
- E-peil: E0
- Beglazing: Standaard dubbel
Op de kaart

Financieel
| Prijs | |
|---|---|
| Kadastraal inkomen (niet geïndexeerd) | € 1.058 |
| Kadastraal inkomen (geïndexeerd) | € 0 |
Berekening kosten
Je aankoopkosten? Die heb je snel berekent via de knop hieronder.
Bijkomende info
Gebouw
| Staat | Goed onderhouden |
|---|---|
| Bouwcertificaat | Nee |
| Bewoonbaar (m²) | 89 |
| Verdieping | 6 |
| Badkamers | 1 |
| Slaapkamers | 2 |
| Verdiepingen | 6 |
| Garages | 0 |
| Parkeerplaatsen | 0 |
| Doucheruimtes | 0 |
| Toiletten | 1 |
Faciliteiten
| Keuken uitrusting | Luxueus uitgerust |
|---|---|
| Materiaal ramenomlijstingen | Aluminium |
| Beglazing | Standaard dubbel |
| Elektrisch keuringsattest | Ja |
Perceel
| Overstromingsgevoelig | Geen |
|---|---|
| P-score | C |
| G-score | C |
| Voorkeurrecht | Nee |
| Bebouwde oppervlakte (m²) | 0 |
| Tuin oppervlakte (m²) | 0 |
| Oppervlakte terras (m²) | 10 |
| Oriëntatie tuin | Zuid |
Vergunning
| Vergunning | Vergunning beschikbaar |
|---|
Uitrusting
| Investeringspand | Nee |
|---|---|
| Geschikt voor praktijk | Nee |
| Parking | Nee |
| Garage | Nee |
| Thuiskantoor | Nee |
| Kelder | Ja |
| Zolder | Nee |
| Tuin | Nee |
| Terras | Ja |
| Lift | Ja |
| Rioolaansluiting | Ja |
| Gasaansluiting | Nee |
| Wateraansluiting | Ja |
| Elektriciteitsaansluiting | Ja |
| TV aansluiting | Ja |
| Internetaansluiting | Ja |
| Telefoonaansluiting | Ja |
Appartementsblok
| Aantal verdiepingen | 6 |
|---|---|
| Lift | Ja |
