Magazijn pal in de stad met grote woonst
Een pand van Immo Vasta
Overzicht
- 518 m² bewoonbaar
- 293 m² grond
- 5 Slaapkamer(s)
- 1 Badkamer(s)
- 2 Toilet(ten)
- 1 Garage(s)
Beschrijving
Herenhuis met magazijn en stadstuin op toplocatie, vlak bij Stadspark en Meir
Pal in het centrum, met zeeën van ruimte én mogelijkheden? Dit is je kans: een gigantisch pand met maar liefst 3 verdiepingen, een achterliggend magazijn, een stadstuin én massa’s potentieel. Hier woon, werk of creëer je op grootse schaal, op een toplocatie nabij het Stadspark en de Meir.
Karakter en volume
In de imposante inkomhal zie je het meteen: dit pand heeft karakter. Hoge plafonds, sierlijsten en authentieke elementen geven meteen charme.
Via de brede doorgang kom je uit op de royale binnenkoer – een stadstuin met veel potentieel en doorgang naar het magazijn van zo’n 267m², verdeeld over drie verdiepingen in betonconstructie. Hier realiseer je eenvoudig een aparte werkplek, een hobbyruimte of zelfs een studio/Airbnb-unit met zicht op de tuin. (mits vergunning)
XL leefruimte, tussenkamer en keuken
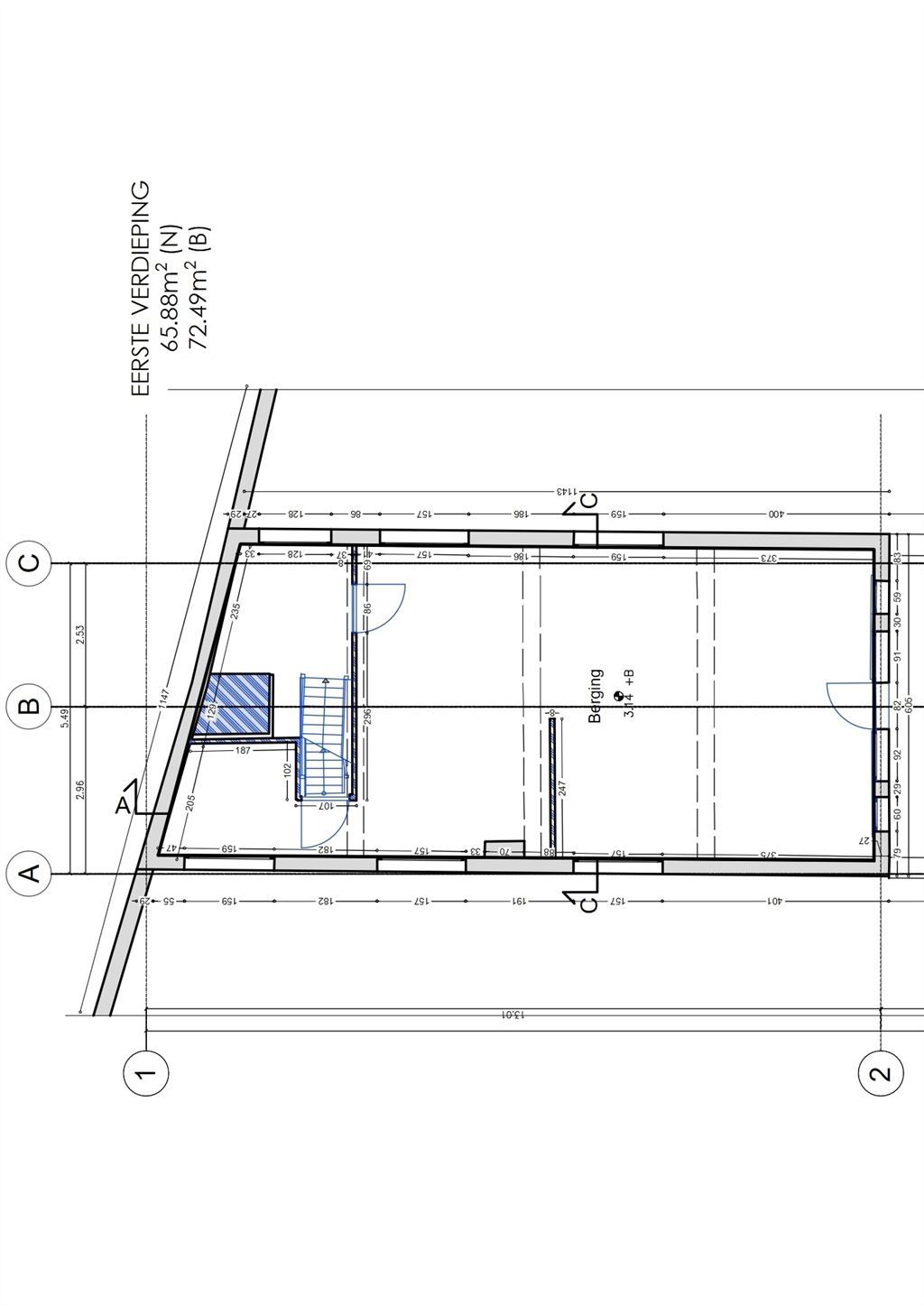
Op de eerste verdieping straalt de leefruimte grandeur uit: plafonds met sierlijsten, een royale planchetvloer en grote ramen voor veel licht. De tussenkamer met elegante boog leidt naar de ruime keuken, die op renovatie wacht maar boordevol mogelijkheden zit. Aansluitend is er een terras, voor een koffiepauze in de zon.
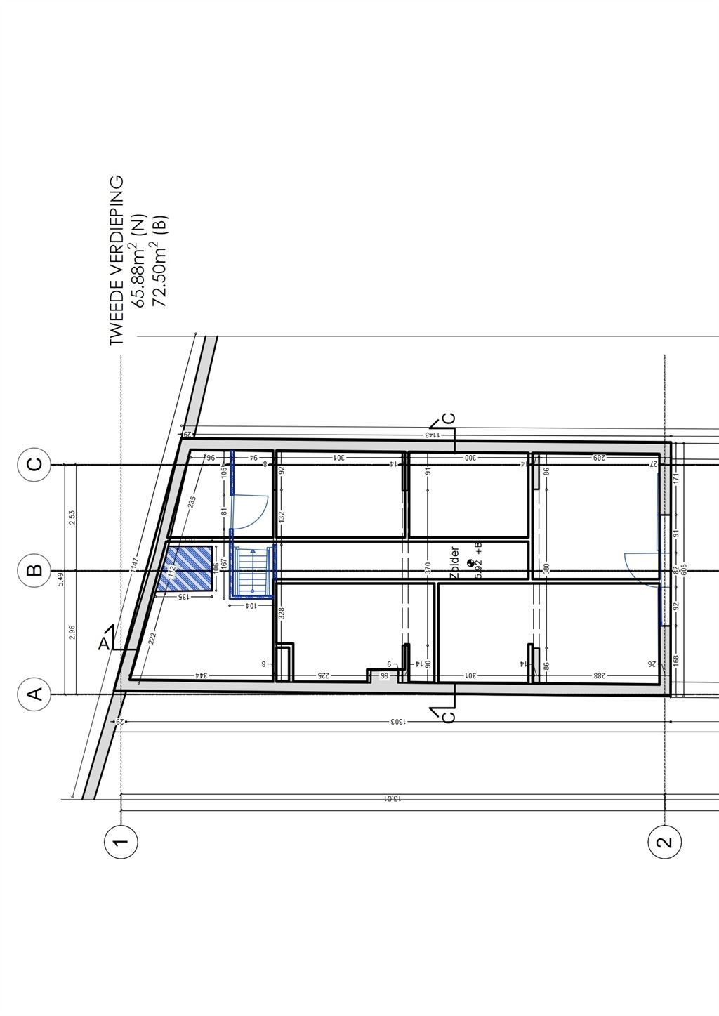
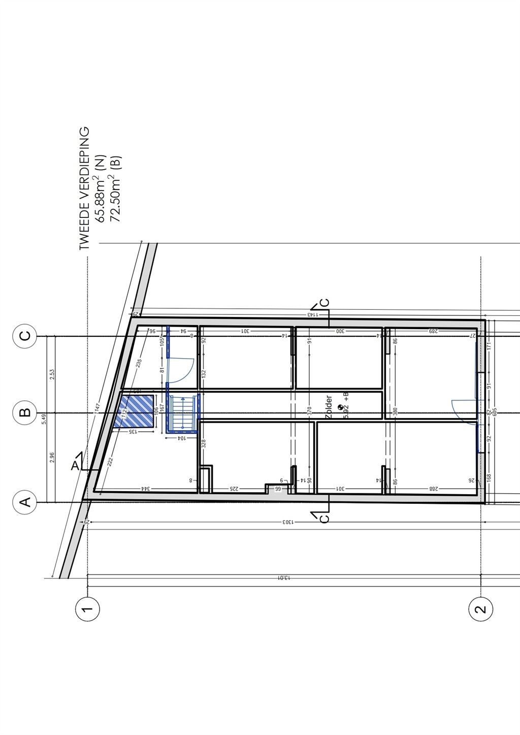
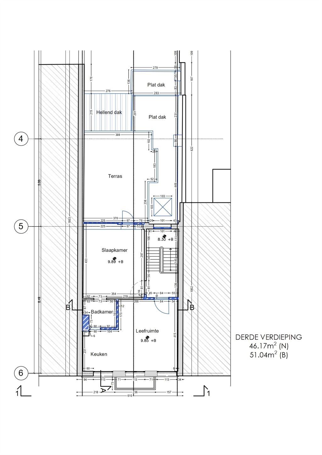
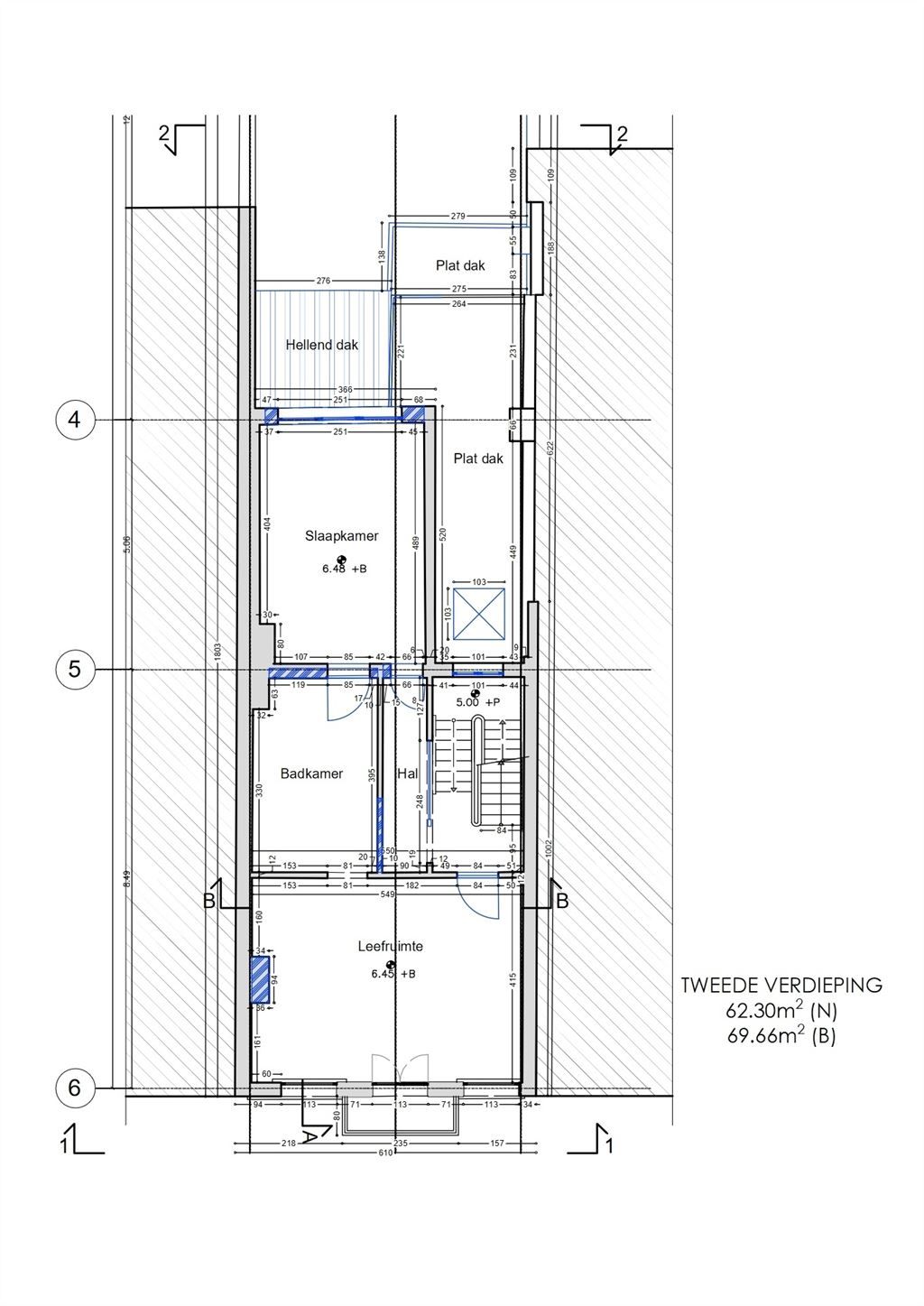
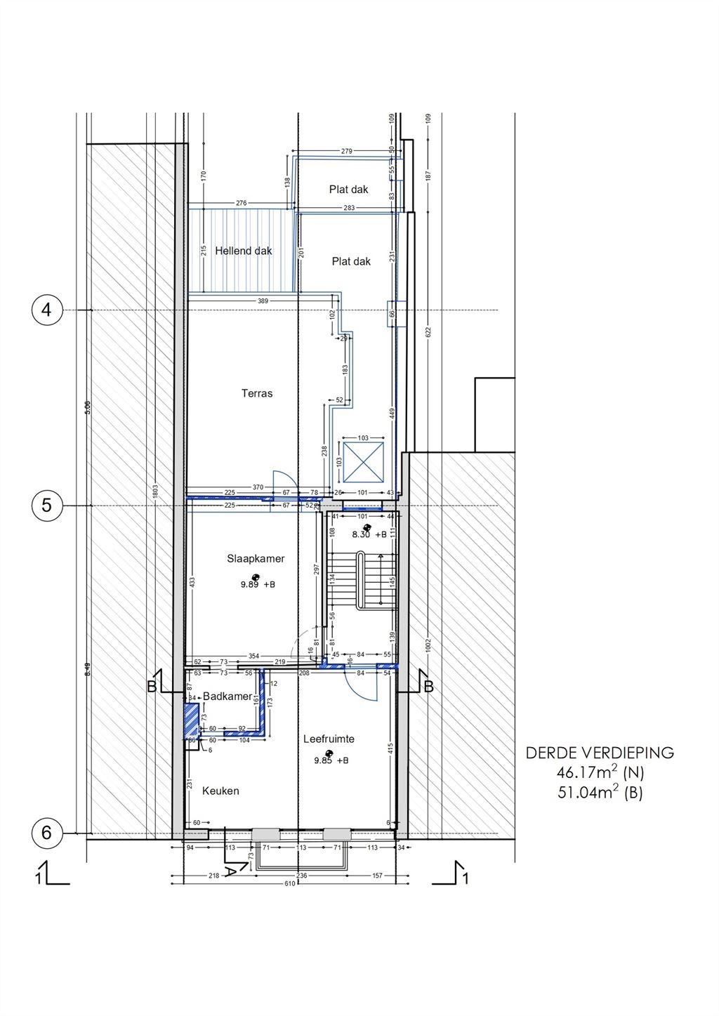
De tweede verdieping telt drie kamers en een royale badkamer – ideaal voor een gezin of wie graag ruim woont. Op de derde verdieping vind je nog drie kamers én een tweede terras van 16,8m², met zicht over de binnenkoer en het magazijn.
Stadstuin en magazijn met 3 verdiepingen
De tuin is bereikbaar vanuit het magazijn én de woning en vormt het verbindingsstuk tussen beide gebouwen. Dit maakt het pand perfect voor wie wonen en werken wil combineren. Denk aan een atelier, coworkingplek, showroom of een inspirerende hobbyruimte – alles kan, mits wat renovatie.
Centraal wonen op een bruisende locatie
Je woont hier vlak bij de Meir, de Operabuurt en het Stadspark, met de Zoo en Antwerpen-Centraal op wandelafstand. Alles is bereikbaar te voet, met de fiets of het openbaar vervoer (tramhalte om de hoek). Bovendien zit je hier zó op de Ring, voor een vlotte uitvalsbasis in elke richting.
Energie
![]() |
- EPC Certificaat: 20220918-0002677488-RES-1
- Energieverbruik: 621 kWh/m²/jaar
- E-peil: E0
- Beglazing: Onbekend
Op de kaart

Financieel
| Prijs | |
|---|---|
| Kadastraal inkomen (niet geïndexeerd) | € 0 |
| Kadastraal inkomen (geïndexeerd) | € 0 |
Berekening kosten
Je aankoopkosten? Die heb je snel berekent via de knop hieronder.
Bijkomende info
Gebouw
| Staat | Op te frissen |
|---|---|
| Bouwcertificaat | Nee |
| Bewoonbaar (m²) | 518 |
| Verdieping | 3 |
| Badkamers | 1 |
| Slaapkamers | 5 |
| Verdiepingen | 0 |
| Garages | 1 |
| Parkeerplaatsen | 0 |
| Doucheruimtes | 0 |
| Toiletten | 2 |
Faciliteiten
| Keuken uitrusting | Luxueus uitgerust |
|---|---|
| Elektrisch keuringsattest | Nee |
Perceel
| Overstromingsgevoelig | Geen |
|---|---|
| P-score | C |
| G-score | C |
| Voorkeurrecht | Nee |
| Totale oppervlakte (m²) | 293 |
| Bebouwde oppervlakte (m²) | 251 |
| Tuin oppervlakte (m²) | 0 |
| Oppervlakte terras (m²) | 0 |
| Oriëntatie tuin | West |
Vergunning
| Vergunning | Vergunning beschikbaar |
|---|
Uitrusting
| Investeringspand | Nee |
|---|---|
| Geschikt voor praktijk | Nee |
| Parking | Nee |
| Garage | Ja |
| Thuiskantoor | Nee |
| Kelder | Ja |
| Zolder | Nee |
| Tuin | Nee |
| Terras | Ja |
| Lift | Nee |
| Rioolaansluiting | Ja |
| Gasaansluiting | Ja |
| Wateraansluiting | Ja |
| Elektriciteitsaansluiting | Ja |
| TV aansluiting | Ja |
| Internetaansluiting | Ja |
| Telefoonaansluiting | Nee |
Appartementsblok
| Lift | Nee |
|---|
