Gerenoveerde kantoorruimte
€ 149.000
Een pand van Immo Vasta
Overzicht
- 35 m² bewoonbaar
- 51 m² grond
- 1 Slaapkamer(s)
- 1 Toilet(ten)
Beschrijving
Een kantoorruimte waar je geen omkijken naar hebt, dat is een prima investering, en al helemaal wanneer die zich op het Antwerpse Zuid bevindt! De uitstekende locatie qua mobiliteit en nabijheid van het vlinderpaleis biedt veel opportuniteiten.
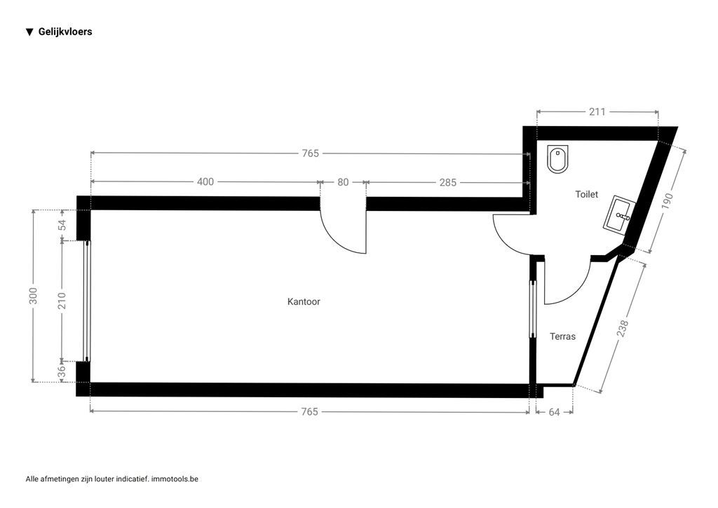
In een kleinschalig, verzorgd gebouw met een strakke witte gevel, in de Brusselstraat 69, vind je hier op het gelijkvloers dit instapklare kantoor. Je komt er binnen in de gemeenschappelijke inkomhal, die een lichtgrijze tegelvloer heeft en een originele houten trap achteraan. Meteen rechts stap je de kantoorruimte binnen, waar de elegante, donkerblauwe tegelvloer opvalt, net als het licht dat hier mooi binnenstroomt, en het zicht op het vlinderpaleis en een natuurpark. Meteen bij het binnenkomen links heb je een aparte nis waar je je jassen in kwijt kunt en die je makkelijk kunt afsluiten met een mooi gordijn, bijvoorbeeld. Maar evengoed gebruik je deze ruime als opslagplaats, al heb je ook nog een droge kelderberging van 5 m²!
Mede dankzij de hoge plafonds heb je hier een kantoorruimte met een ruimtelijk gevoel. Achteraan heb je nog een aparte ruimte met een hangtoilet, lavabo, spiegel en handdoekendroger, en ook de condensatieketel zit hier weggewerkt.
Van hieruit heb je toegang tot het kleine Oost - gerichte koertje van een kleine 3 m², waar je een stoel en een grote plant kunt neerzetten, bijvoorbeeld.
Tegenover het vlinderpaleis, vlakbij de Leien en de Troonplaats
Je zit hier enorm centraal op het Zuid, met het Vlinderpaleis als overbuur. De Leien zijn vlakbij, net als de oprit van de autostrade en de Singel. Op de Troonplaats en de straten rondom heb je heel wat horeca en buurtwinkels, en campus Zuid van de KdG-hogeschool ligt hier gewoon om de hoek. Qua openbaar vervoer heb je maar uit te kiezen: velo-station, bus, of tram?
Energie
![]() |
- EPC Certificaat: 20240316-0002917806-RES-1
- Energieverbruik: 217 kWh/m²/jaar
- E-peil: E0
- Verwarming: Gas
- Beglazing: Standaard dubbel
Op de kaart

Financieel
| Prijs | |
|---|---|
| Kadastraal inkomen (niet geïndexeerd) | € 0 |
| Kadastraal inkomen (geïndexeerd) | € 0 |
Berekening kosten
Je aankoopkosten? Die heb je snel berekent via de knop hieronder.
Bijkomende info
Gebouw
| Staat | Goed onderhouden |
|---|---|
| Bouwcertificaat | Nee |
| Bewoonbaar (m²) | 35 |
| Verdieping | 0 |
| Badkamers | 0 |
| Slaapkamers | 1 |
| Verdiepingen | 3 |
| Garages | 0 |
| Parkeerplaatsen | 0 |
| Doucheruimtes | 0 |
| Toiletten | 1 |
Faciliteiten
| Keuken uitrusting | Basis |
|---|---|
| Materiaal ramenomlijstingen | PVC |
| Beglazing | Standaard dubbel |
| Brandstof primaire verwarming | Gas |
| Elektrisch keuringsattest | Nee |
Perceel
| Overstromingsgevoelig | Geen |
|---|---|
| P-score | C |
| G-score | C |
| Voorkeurrecht | Nee |
| Totale oppervlakte (m²) | 51 |
| Bebouwde oppervlakte (m²) | 0 |
| Tuin oppervlakte (m²) | 0 |
| Oppervlakte terras (m²) | 0 |
| Oriëntatie tuin | Oost |
Vergunning
| Vergunning | Vergunning beschikbaar |
|---|
Uitrusting
| Investeringspand | Ja |
|---|---|
| Geschikt voor praktijk | Ja |
| Parking | Nee |
| Garage | Nee |
| Thuiskantoor | Ja |
| Kelder | Ja |
| Zolder | Nee |
| Tuin | Nee |
| Terras | Nee |
| Lift | Nee |
| Rioolaansluiting | Nee |
| Gasaansluiting | Ja |
| Wateraansluiting | Ja |
| Elektriciteitsaansluiting | Ja |
| TV aansluiting | Nee |
| Internetaansluiting | Nee |
| Telefoonaansluiting | Nee |
Appartementsblok
| Aantal verdiepingen | 3 |
|---|---|
| Lift | Nee |
