Karaktervolle woning met 3 units en tuin
€ 669.000
Een pand van Immo Vasta
Overzicht
- 246 m² bewoonbaar
- 114 m² grond
- 4 Slaapkamer(s)
- 3 Badkamer(s)
- 3 Toilet(ten)
- 1 Tuin
Overstromingsgevaar gebouw
Overstromingsgevaar perceel
Beschrijving
Op zoek naar een huis met een enorme bewoonbare oppervlakte, tuin en kelder? Hier heb je heel wat potentieel te pakken, op een populaire toplocatie in Oud – Berchem. Mogelijkheden zijn legio; Volledig omvormen tot woning ( momenteel gekend als woonhuis ), of gedeeltelijk zelf in te wonen, te verhuren of voor ontwikkeling. Win-win!
Na een kleine opfrissing straalt de gevel van nummer 207 in de Boomgaardstraat weer in volle glorie. Het gebouw is momenteel ingedeeld als drie afzonderlijke appartemente. Binnen volstaan enkele beperkte werken om elk appartement een frisse look te geven en hun charme volledig tot uiting te laten komen.
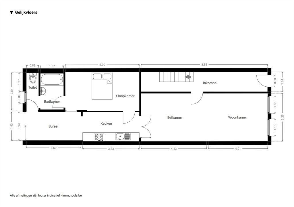
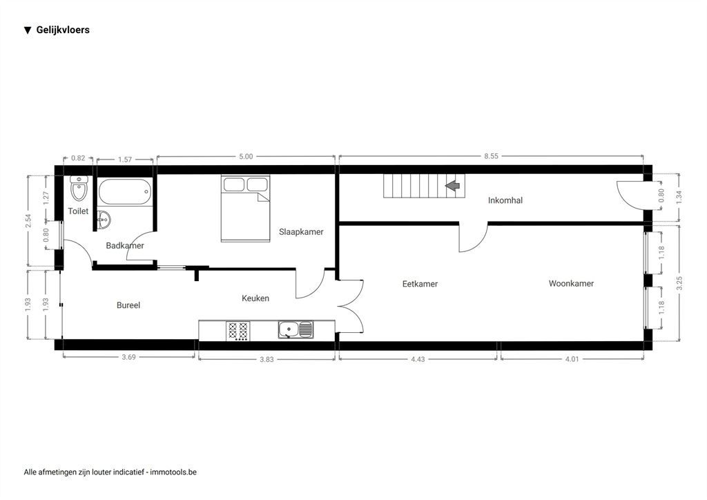
Gelijkvloers eenslaapkamerappartement van 72 met toffe stadstuin (EPC C)
Meteen zodra je dit appartement binnenstapt, voel je de unieke charme. De authentieke planchervloer, originele deuren, sierhaarden en de hoge plafonds (3,8 m) met moulures en sierlijsten zorgen voor een statig en karaktervol geheel. Dankzij de drie raampartijen en het schuifraam aan de achterzijde baadt de leefruimte in het licht. Je komt binnen in het salon, dat doorloopt naar de eetkamer – beide met een mooie, ruime oppervlakte. Achteraan ligt de keuken, met aansluitend misschien wel de grootste troef van dit appartement: een gezellige stadstuin, een absolute luxe op deze toplocatie. Verder bevinden zich naast de keuken nog de badkamer, het toilet en een aangename slaapkamer.
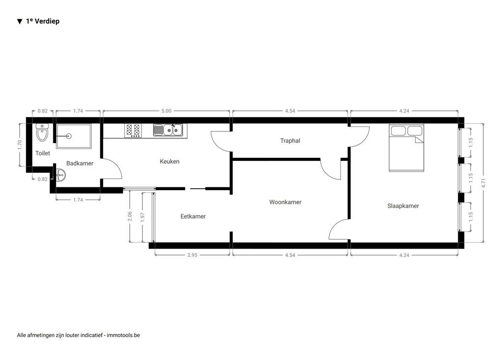
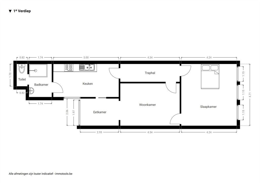
Charmant éénslaapkamerappartement van 68m² op de eerste verdieping (EPC B)
Je kan dit appartement zowel via de woon- als de slaapkamer betreden. De slaapkamer ligt aan de straatzijde en valt op door haar royale oppervlakte. Vanuit de slaapkamer stap je door naar de zitkamer in het midden van het appartement – beide kamers zijn voorzien van een authentieke planchervloer. Via een trapje naar beneden kom je opnieuw in een gezellige zitruimte, die aansluit op de keuken en badkamer. Deze laatste vragen nog een opfrissing, maar bieden een mooie basis om volledig naar smaak af te werken. Met enkele beperkte werken maak je hier een bijzonder tof éénslaapkamerappartement van, ideaal voor wie houdt van charme en authenticiteit.
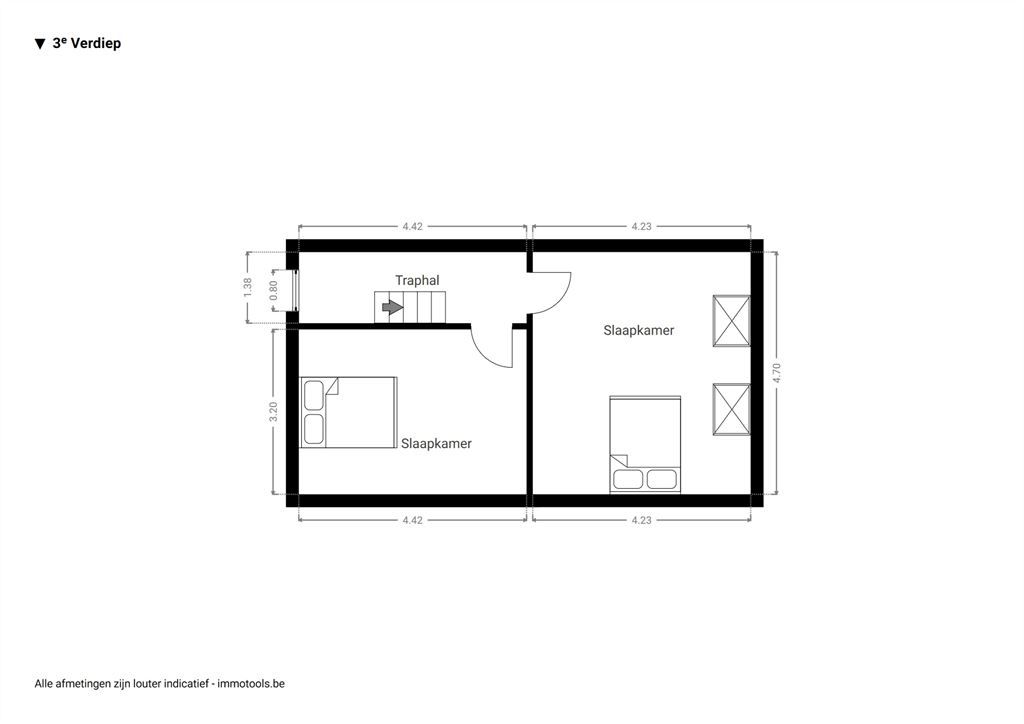
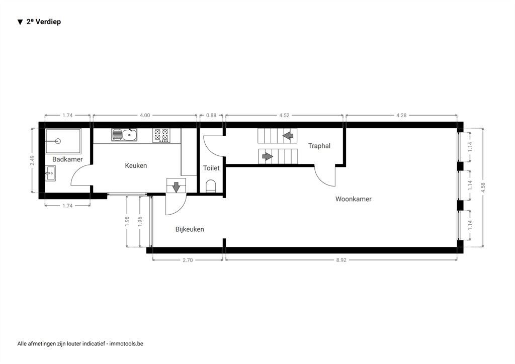
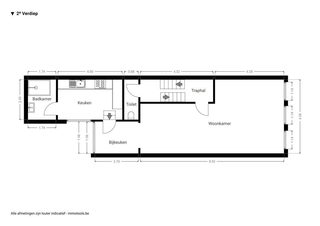
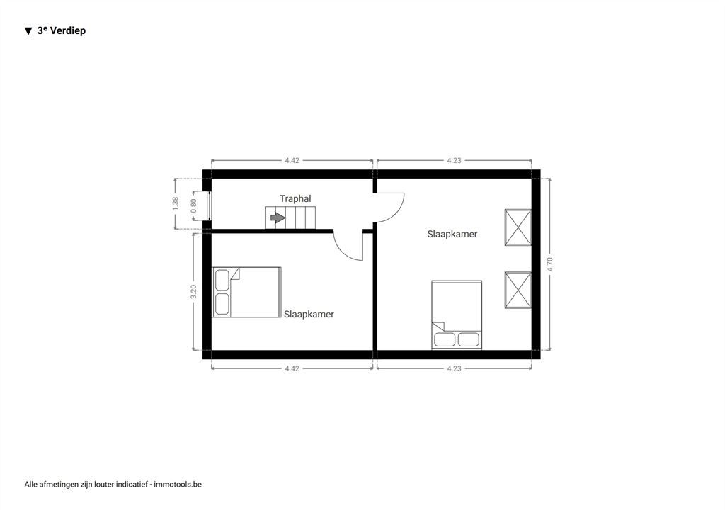
Ruime duplex van 122m² met twee slaapkamers (EPC C)
Deze unit werd recent volledig gerenoveerd en is instapklaar. Je komt binnen in de leefruimte met zit- en eetgedeelte, voorzien van ingebouwde spots en een verzorgde, doorlopende laminaatvloer. Net als in de unit op de eerste verdieping brengt een trapje je naar beneden, waar een handige extra ruimte aansluit bij de keuken en badkamer. De keuken is modern uitgerust met vaatwasser, oven, dubbele spoelbak, dampkap en betegelde wanden. Achter de keuken bevindt zich de vernieuwde badkamer, afgewerkt met parkettegel, douchecabine en een stijlvol badkamermeubel. Op de derde verdieping vind je twee ruime slaapkamers. De grootste kamer ligt aan de voorzijde en beschikt over twee Velux-ramen, terwijl de tweede – eveneens ruim – met één Velux-raam uitkijkt op de achterzijde.
Hotspot in het gegeerde Oud-Berchem
Veel centraler dan dit wordt het niet, hier in oud-Berchem, op amper vijf minuten stappen station Antwerpen-Berchem en op enkele minuten van het hippe PAKT met z’n fijne horeca. Ook de Dageraadplaats en de Draakplaats zijn niet veraf, net als allerlei winkels, zoals in de Statiestraat, scholen en heel wat openbaar vervoer. Van hieruit ben je ook zo de stad in en uit, want de Singel en de Ring zijn vlakbij.
Energie
![]() |
- EPC Certificaat: 20250914-0003685845-RES-1
- Energieverbruik: 163 kWh/m²/jaar
- E-peil: E0
- Verwarming: Gas
- Beglazing: Standaard dubbel
Op de kaart

Downloads
- grondplan immotools.pdf
- asbestattest Boomgaardstraat 207001, 2018 Antwerpen.pdf
- asbestattest Boomgaardstraat 207101, 2018 Antwerpen.pdf
- asbestattest Boomgaardstraat 207201, 2018 Antwerpen.pdf
- Certificaat-20250914-0003676247-RES-1.pdf
- Certificaat-20250914-0003685845-RES-1.pdf
- Certificaat-20250915-0003685851-RES-1.pdf
- EK Boomgaardstraat 207, Gelijksvloer - 2018 Antwerpen (ES).pdf
- EK Boomgaardstraat 207, verdieping 1 - 2018 Antwerpen (ES).pdf
- EK Boomgaardstraat 207, Verdieping 2 - 2018 Antwerpen (ES).pdf
- grondplan immotools.pdf
Financieel
Prijs | |
---|---|
Kadastraal inkomen (niet geïndexeerd) | € 0 |
Kadastraal inkomen (geïndexeerd) | € 0 |
Berekening kosten
Je aankoopkosten? Die heb je snel berekent via de knop hieronder.
Bijkomende info
Gebouw
Bouwjaar | 1903 |
---|---|
Staat | Goed onderhouden |
Bouwcertificaat | Nee |
Bewoonbaar (m²) | 246 |
Verdieping | 0 |
Gevelbreedte | 5 |
Badkamers | 3 |
Slaapkamers | 4 |
Verdiepingen | 3 |
Garages | 0 |
Parkeerplaatsen | 0 |
Doucheruimtes | 0 |
Toiletten | 3 |
Faciliteiten
Keuken uitrusting | Luxueus uitgerust |
---|---|
Beglazing | Standaard dubbel |
Brandstof primaire verwarming | Gas |
Elektrisch keuringsattest | Nee |
Perceel
Overstromingsgevoelig | Geen |
---|---|
P-score | D |
G-score | D |
Voorkeurrecht | Ja |
Totale oppervlakte (m²) | 114 |
Bebouwde oppervlakte (m²) | 0 |
Tuin oppervlakte (m²) | 25 |
Oppervlakte terras (m²) | 0 |
Oriëntatie tuin | Noord |
Vergunning
Vergunning | Aanvraag ingediend |
---|
Uitrusting
Investeringspand | Nee |
---|---|
Geschikt voor praktijk | Nee |
Parking | Nee |
Garage | Nee |
Thuiskantoor | Nee |
Kelder | Ja |
Zolder | Nee |
Tuin | Ja |
Terras | Nee |
Lift | Nee |
Rioolaansluiting | Ja |
Gasaansluiting | Ja |
Wateraansluiting | Ja |
Elektriciteitsaansluiting | Ja |
TV aansluiting | Nee |
Internetaansluiting | Nee |
Telefoonaansluiting | Nee |