Uitzonderlijk ruime, statige herenwoning
€ 870.000
Een pand van Immo Vasta
Jouw zoektocht
Overzicht
- 362 m² bewoonbaar
- 100 m² grond
- 5 Slaapkamer(s)
- 3 Badkamer(s)
- 3 Toilet(ten)
- 1 Tuin
Beschrijving
Wonen in de Lamorinièrestraat is wonen op een toplocatie tussen het Groen Kwartier, Harmoniepark en Albertpark. Deze uitzonderlijk ruime woning combineert prachtige authentieke elementen, royale volumes en een waaier aan indelingsmogelijkheden met een fijne zuidoostgerichte tuin. Een uniek pand voor wie karakter, ruimte en ligging even belangrijk vindt.
Authentiek & indrukwekkende ruimtes
Achter deze statige gevel schuilt een bijzonder groot huis met een totale bewoonbare oppervlakte van maar liefst 362 m². Momenteel is deze verdeeld in 3 verhuurde units, doch is het pand gekend als woonhuis. Je komt binnen in een elegante inkomhal, afgewerkt in marmer, met een vlotte doorgang naar het gelijkvloers en een aparte toegang naar de kelder. Meteen voel je hier de ziel van het huis: hoge plafonds, sierlijsten, sierschouwen, authentieke houten vloeren en knappe originele accenten die dit pand z’n warme, tijdloze uitstraling geven.
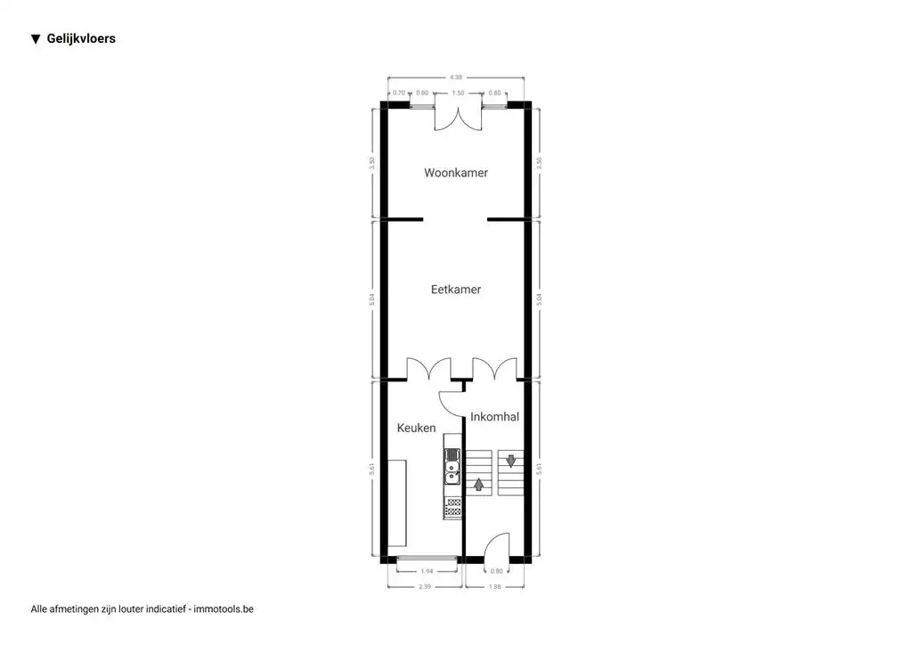
Op het gelijkvloers loopt de indeling mooi van voor naar achter, met vooraan de keuken, en achteraan de leefruimte en eetkamer met toegang naar terras en tuin. Bovendien is de kelder ook via dit gedeelte te betreden. Dankzij de uitzonderlijke plafondhoogte en de grote raampartijen baadt deze verdieping in het licht. De authentieke houten vloer, de sierhaard en de elegante zuil geven de leefruimtes extra cachet. De keuken is uitgerust en sluit mooi aan op het leefgedeelte, waardoor dit niveau vandaag al erg aangenaam woont.
Ruimte met eindeloos potentieel
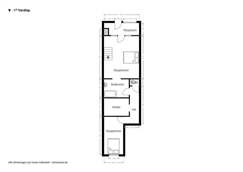
Ook de andere verdiepingen bieden enorm veel potentieel. De kelderverdieping is momenteel ingedeeld met twee slaapkamers en een badkamer, en heeft bovendien rechtstreekse toegang tot de tuin. Ideaal als hobbyruimte, praktijk, mancave, logeerverdieping of om opnieuw helemaal anders in te vullen.
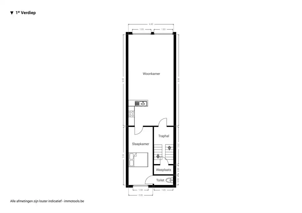
De eerste verdieping is vandaag ingericht als leefruimte met keuken, slaapkamer, douchegedeelte, wasplaats en toilet, maar leent zich perfect tot extra slaapkamers of een polyvalente verdieping. Ook hier keren de charmante afwerking, de mooie plafondhoogte en de authentieke vloer terug.
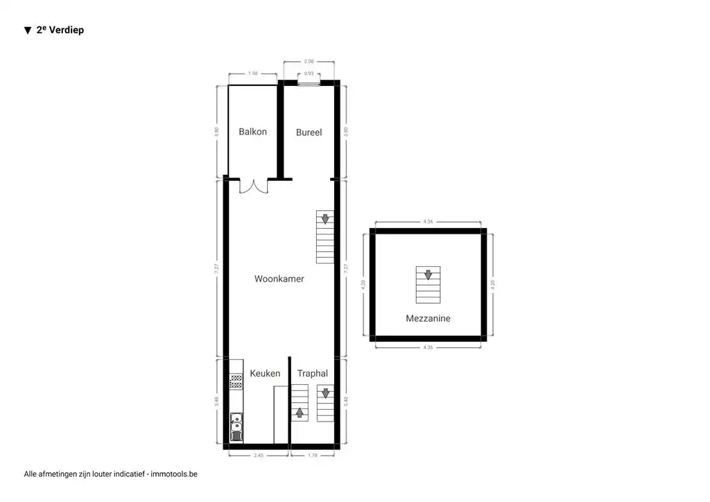
Op de tweede verdieping krijg je een bijzonder lichtrijke woonlaag met open leefruimte, keuken, bureauruimte, mezzanine en een zonnig terras. De warmte op deze verdieping met houten vloer, zichtbare balken en een open gevoel dat extra versterkt wordt door de mezzanine en het terras achteraan. Aansluitend vind je op de derde verdieping nog twee ruime slaapkamers en een badkamer, met Veluxramen die extra licht binnenbrengen. Een woning als deze groeit moeiteloos mee met je plannen, gezin of woonwensen.
Stadstuin & topligging
Achteraan ligt een groene tuin van circa 50 m² met zuidoostoriëntatie: een heerlijke buitenplek waar je in alle rust van zon en groen geniet, midden in de stad. Je woont hier in een gegeerde buurt in 2018 Antwerpen, op wandel- en fietsafstand van het Harmoniepark en Albertpark, met het Groen Kwartier vlakbij. Een toplocatie voor wie graag de stad binnen handbereik heeft, maar ook wil genieten van groen en karaktervolle straten.
Energie
![]() |
- EPC Certificaat: 20260317-0003826171-RES-1
- Energieverbruik: 168 kWh/m²/jaar
- E-peil: E0
- Verwarming: Gas
- Beglazing: Standaard dubbel
Op de kaart

Downloads
Financieel
| Prijs | |
|---|---|
| Kadastraal inkomen (niet geïndexeerd) | € 979 |
| Kadastraal inkomen (geïndexeerd) | € 0 |
Berekening kosten
Je aankoopkosten? Die heb je snel berekend via de knop hieronder.
Bijkomende info
Gebouw
| Staat | Goed onderhouden |
|---|---|
| Bouwcertificaat | Nee |
| Bewoonbaar (m²) | 362 |
| Verdieping | 0 |
| Badkamers | 3 |
| Slaapkamers | 5 |
| Verdiepingen | 3 |
| Garages | 0 |
| Parkeerplaatsen | 0 |
| Doucheruimtes | 0 |
| Toiletten | 3 |
Faciliteiten
| Keuken uitrusting | Luxueus uitgerust |
|---|---|
| Materiaal ramenomlijstingen | PVC |
| Beglazing | Standaard dubbel |
| Brandstof primaire verwarming | Gas |
| Elektrisch keuringsattest | Nee |
Perceel
| Overstromingsgevoelig | Geen |
|---|---|
| P-score | C |
| G-score | C |
| Voorkeurrecht | Nee |
| Totale oppervlakte (m²) | 100 |
| Bebouwde oppervlakte (m²) | 0 |
| Tuin oppervlakte (m²) | 51 |
| Oppervlakte terras (m²) | 4 |
| Oriëntatie tuin | Oost |
Vergunning
| Vergunning | Aanvraag ingediend |
|---|
Uitrusting
| Investeringspand | Nee |
|---|---|
| Geschikt voor praktijk | Nee |
| Parking | Nee |
| Garage | Nee |
| Thuiskantoor | Nee |
| Kelder | Nee |
| Zolder | Nee |
| Tuin | Ja |
| Terras | Ja |
| Lift | Nee |
| Rioolaansluiting | Nee |
| Gasaansluiting | Nee |
| Wateraansluiting | Nee |
| Elektriciteitsaansluiting | Nee |
| TV aansluiting | Nee |
| Internetaansluiting | Nee |
| Telefoonaansluiting | Nee |
