Unieke woning met dakterras en atelier
€ 1.149.000
Een pand van Immo Vasta
Jouw zoektocht
Overzicht
- 427 m² bewoonbaar
- 169 m² grond
- 5 Slaapkamer(s)
- 3 Badkamer(s)
- 3 Toilet(ten)
- 1 Garage(s)
Beschrijving
Wonen in een van de meest gegeerde buurten van 2018 Antwerpen? In de rustige Sanderusstraat, vlakbij het Oud Justitiepaleis en de Leien, ontdek je deze uitzonderlijk ruime woning met maar liefst ca. 427 m² bewoonbare oppervlakte. Met een inpandige garage, groot atelier, tweede ingang voor commerciële activiteit, zonnepanelen met batterijen én een zalig westgericht dakterras is dit een pand met eindeloos veel mogelijkheden
Wonen en werken in stijl
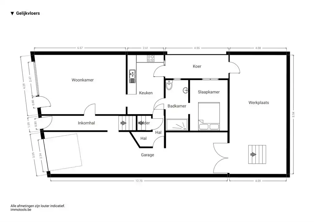
Je komt binnen via de inkomhal met stalen deur en bovenlicht. Van hieruit heb je toegang tot het atelier, de polyvalente ruimte en de trap naar boven. De polyvalente ruimte op het gelijkvloers (ca. 55 m²) is vandaag ingericht met keuken en leefgedeelte en baadt in het licht dankzij de vele oostgerichte ramen. De warme parketvloer en de connectie met het koertje maken dit een bijzonder aangename plek. Ideaal als praktijkruimte, studio, kangoeroewoning of aparte werkplek. Aansluitend vind je een eerste badkamer met lavabomeubel, toilet, handdoekradiator en douchecabine.
De inpandige garage heeft een indrukwekkende poorthoogte van 3,3 meter en een breedte van 3 meter — perfect voor wagen én fietsen. Via de garage bereik je de ruime, droge kelder én het achterliggende atelier.
Het atelier (ca.65 m²) met een plafondhoogte van 3,5 meter en dakramen is een droom voor doe-het-zelvers, zelfstandigen of hobbyisten. Momenteel ingericht als schrijnwerkerij, maar perfect inzetbaar als werkplaats, studio of opslagruimte. Extra troef: atelier is eveneens onderkelderd.
Leven op niveau
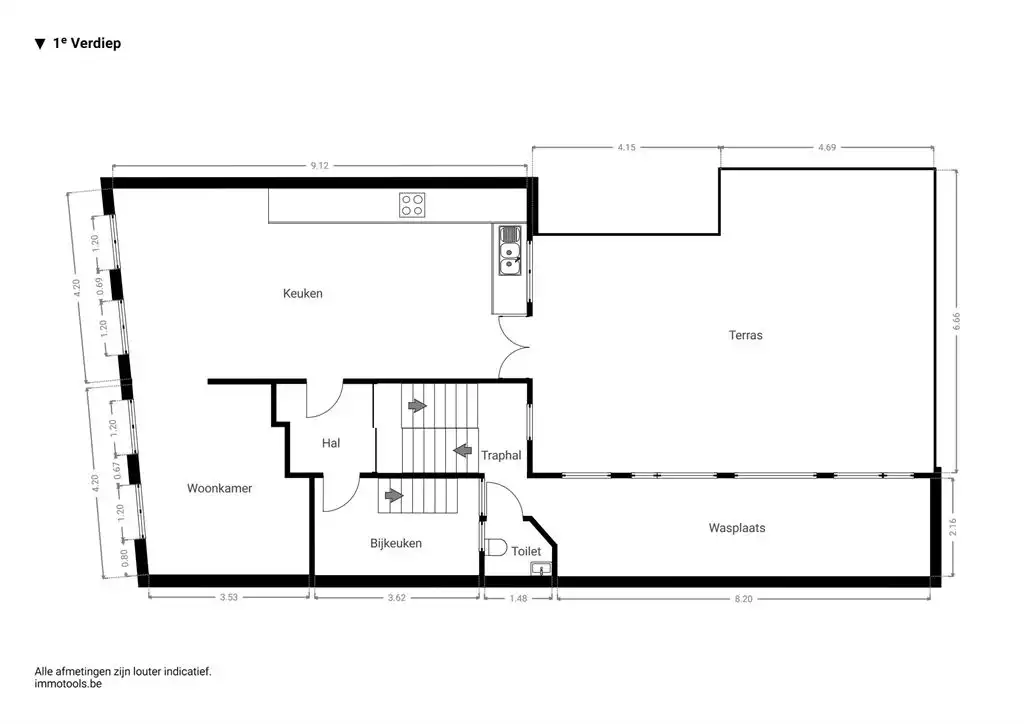
Op de eerste verdieping ontvouwt zich het hart van de woning: een open keuken met leefruimte van maar liefst ca.59 m². De keuken is hoogwaardig afgewerkt met een massief stenen werkblad, inductievuur, oven, microgolf, vaatwasser, glazen spatwand en overvloedige kastruimte. Alles sluit naadloos aan bij het maatwerk en de warme houtaccenten die doorheen de woning zijn doorgetrokken (renovatie van deze verdieping in 2021). Aansluitend bevindt zich de zitruimte met kachel — open verbonden, maar toch gezellig afgescheiden.
Vanuit deze ruimte, alsook vanuit de berging met ingemaakte kasten heb je toegang tot het indrukwekkende westgerichte dakterras van 70 m². Hier geniet je van middag- en avondzon met zicht op de karaktervolle houten gevelafwerking achteraan. Een unieke buitenruimte in de stad.
Op de tussenverdieping bevindt zich nog een wasruimte met ingemaakte kasten en praktische wasinstallatie.
Ruimte voor het hele gezin
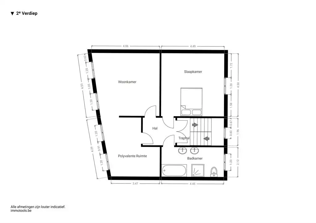
De tweede verdieping telt een gigantische slaapkamer van ca. 38,5 m² (momenteel met kastenwand), perfect als master of opdeelbaar naar wens. Daarnaast vind je een tweede ruime slaapkamer met zicht op het dakterras en een badkamer met ingemaakt ligbad, dubbele lavabo, aparte douchecabine en toilet. Houten afwerkingen en parket zorgen voor een warme uitstraling.
Op de derde verdieping bevinden zich nog drie volwaardige slaapkamers, waarvan twee in duplexvorm met ingemaakte bureau’s en kasten — ideaal voor tieners, hobbyruimte of thuiskantoor. De derde badkamer is uitgerust met ligbad met douchescherm, lavabo en toilet.
Harmoniewijk: stijlvol, centraal en rustig
De Sanderusstraat ligt in de gegeerde Harmoniewijk, vlakbij het Oud Justitiepaleis en de brede Leien. Een rustige éénrichtingsstraat met statige herenhuizen, op wandelafstand van winkels, scholen, horeca en openbaar vervoer. Je zit hier vlakbij de Singel en de Ring, waardoor je vlot in en uit de stad rijdt. Tegelijk woon je hier in alle rust, midden in een karaktervolle buurt.
Energie
![]() |
- EPC Certificaat: 20260220-0003807117-RES-1
- Energieverbruik: 191 kWh/m²/jaar
- E-peil: E0
- Verwarming: Gas
- Beglazing: Standaard dubbel
Op de kaart

Financieel
| Prijs | |
|---|---|
| Kadastraal inkomen (niet geïndexeerd) | € 2.246 |
| Kadastraal inkomen (geïndexeerd) | € 0 |
Berekening kosten
Je aankoopkosten? Die heb je snel berekend via de knop hieronder.
Bijkomende info
Gebouw
| Staat | Zo goed als nieuw |
|---|---|
| Bouwcertificaat | Nee |
| Bewoonbaar (m²) | 427 |
| Verdieping | 0 |
| Gevelbreedte | 9 |
| Badkamers | 3 |
| Slaapkamers | 5 |
| Verdiepingen | 4 |
| Garages | 1 |
| Parkeerplaatsen | 0 |
| Doucheruimtes | 0 |
| Toiletten | 3 |
Faciliteiten
| Keuken uitrusting | Luxueus uitgerust |
|---|---|
| Materiaal ramenomlijstingen | Hout |
| Beglazing | Standaard dubbel |
| Brandstof primaire verwarming | Gas |
| Elektrisch keuringsattest | Nee |
Perceel
| Diepte (m) | 18 |
|---|---|
| Breedte (m) | 9 |
| Overstromingsgevoelig | Geen |
| P-score | C |
| G-score | C |
| Voorkeurrecht | Nee |
| Totale oppervlakte (m²) | 169 |
| Bebouwde oppervlakte (m²) | 169 |
| Tuin oppervlakte (m²) | 0 |
| Oppervlakte terras (m²) | 70 |
| Oriëntatie tuin | West |
Uitrusting
| Investeringspand | Nee |
|---|---|
| Geschikt voor praktijk | Nee |
| Parking | Nee |
| Garage | Ja |
| Thuiskantoor | Nee |
| Kelder | Ja |
| Zolder | Nee |
| Tuin | Nee |
| Terras | Ja |
| Lift | Nee |
| Rioolaansluiting | Nee |
| Gasaansluiting | Nee |
| Wateraansluiting | Nee |
| Elektriciteitsaansluiting | Nee |
| TV aansluiting | Nee |
| Internetaansluiting | Nee |
| Telefoonaansluiting | Nee |
Appartementsblok
| Aantal verdiepingen | 4 |
|---|---|
| Lift | Nee |
