Studio met 1 slaapkamer op toplocatie tegenover het Stadspark
€ 170.000
Een pand van Immo Vasta
Jouw zoektocht
Overzicht
- 45 m² bewoonbaar
- 106 m² grond
- 1 Slaapkamer(s)
- 1 Badkamer(s)
- 1 Toilet(ten)
Overstromingsgevaar gebouw
Overstromingsgevaar perceel
Beschrijving
Een studio met potentieel op een absolute toplocatie, pal tegenover het Antwerpse Stadspark. Zodra je dit appartement op de tweede verdieping binnenstapt, voel je het: licht, ruimte en mogelijkheden. Of je nu meteen wil intrekken of het pand stap voor stap naar je hand wil zetten, hier kan het allebei.
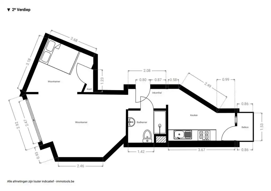
Lichtrijke leefruimte met slaapgedeelte
Via de inkomhal kom je in de leefruimte met aansluitend het slaapgedeelte. De grote ramen zorgen voor een aangename lichtinval en een open gevoel. De blokjesparketvloer en de plafondhoogte geven het geheel karakter en warmte. Dankzij de slimme indeling combineer je hier wonen en slapen op een comfortabele manier.
Praktische keuken met toegang tot het balkon
De keuken bevindt zich apart en is uitgerust met ingebouwde koelkast en diepvriezer, voldoende kastruimte en een functionele opstelling. Vanuit de keuken heb je toegang tot het balkon aan de achterzijde van het gebouw . De badkamer is praktisch ingericht met een douchecabine, toilet, lavabo en aansluiting voor een wasmachine. Compact, logisch ingedeeld en makkelijk in onderhoud.
Comfortabel wonen in een statig gebouw
De studio is gelegen op de tweede verdieping van een verzorgd, statig gebouw en is bereikbaar via trap of lift , een aangename extra in het dagelijks comfort.
Wonen tegenover het groen, midden in de stad
Met het Stadspark letterlijk aan de overkant woon je hier in het groen én tegelijk op wandelafstand van het stadscentrum. Winkels, horeca, openbaar vervoer en belangrijke invalswegen liggen vlakbij, wat deze ligging bijzonder aantrekkelijk maakt voor zowel eigen bewoning als investering.
Energie
![]() |
- EPC Certificaat: 20191105-0002215143-RES-2
- Energieverbruik: 189 kWh/m²/jaar
- E-peil: E0
- Verwarming: Gas
- Beglazing: Standaard dubbel
Op de kaart

Downloads
Financieel
| Prijs | |
|---|---|
| Kadastraal inkomen (niet geïndexeerd) | € 699 |
| Kadastraal inkomen (geïndexeerd) | € 0 |
Berekening kosten
Je aankoopkosten? Die heb je snel berekend via de knop hieronder.
Bijkomende info
Gebouw
| Bouwjaar | 1964 |
|---|---|
| Staat | Op te frissen |
| Bouwcertificaat | Nee |
| Bewoonbaar (m²) | 45 |
| Verdieping | 2 |
| Badkamers | 1 |
| Slaapkamers | 1 |
| Verdiepingen | 8 |
| Garages | 0 |
| Parkeerplaatsen | 0 |
| Doucheruimtes | 0 |
| Toiletten | 1 |
Faciliteiten
| Keuken uitrusting | Luxueus uitgerust |
|---|---|
| Materiaal ramenomlijstingen | PVC |
| Beglazing | Standaard dubbel |
| Brandstof primaire verwarming | Gas |
| Elektrisch keuringsattest | Nee |
Perceel
| Overstromingsgevoelig | Geen |
|---|---|
| P-score | D |
| G-score | D |
| Voorkeurrecht | Nee |
| Totale oppervlakte (m²) | 106 |
| Bebouwde oppervlakte (m²) | 0 |
| Tuin oppervlakte (m²) | 0 |
| Oppervlakte terras (m²) | 1 |
| Oriëntatie tuin | West |
Vergunning
| Vergunning | Vergunning beschikbaar |
|---|
Uitrusting
| Investeringspand | Nee |
|---|---|
| Geschikt voor praktijk | Nee |
| Parking | Nee |
| Garage | Nee |
| Thuiskantoor | Nee |
| Kelder | Ja |
| Zolder | Nee |
| Tuin | Nee |
| Terras | Ja |
| Lift | Nee |
| Rioolaansluiting | Nee |
| Gasaansluiting | Nee |
| Wateraansluiting | Nee |
| Elektriciteitsaansluiting | Nee |
| TV aansluiting | Nee |
| Internetaansluiting | Nee |
| Telefoonaansluiting | Nee |
Appartementsblok
| Aantal verdiepingen | 8 |
|---|---|
| Lift | Nee |
