Art-deco app met 3 slpk
Een pand van Coprimmo
Overzicht
- 110 m² bewoonbaar
- 3 Slaapkamer(s)
- 1 Badkamer(s)
- 1 Toilet(ten)
Beschrijving
Authentiek en lichtrijk art-decogem met 3 slaapkamers en open uitzicht
Welkom in dit warme en karaktervolle appartement gelegen op de vierde verdieping in een iconisch art-decogebouw, waar authenticiteit en hedendaags comfort elkaar naadloos aanvullen. Met zijn bewoonbare oppervlakte van 110 m² (cfr. EPC), hoge plafonds en grote raampartijen biedt dit appartement een uitzonderlijk gevoel van ruimte en licht. De ligging is bovendien ideaal: rustig, maar toch vlak bij het Zuid, het centrum, en diverse parken, winkels en openbaar vervoer.
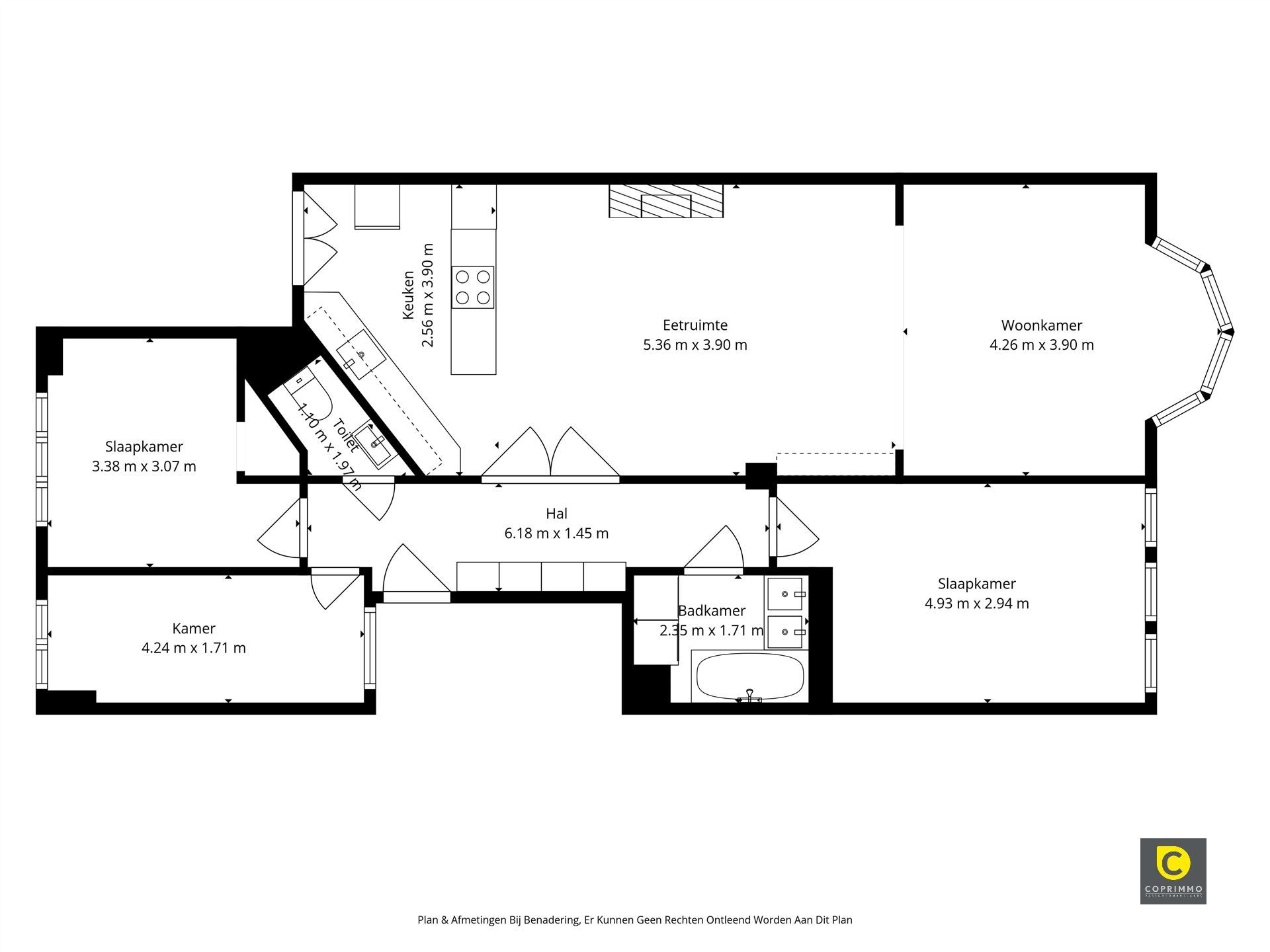
Indeling
De ruime leefruimte vormt het kloppend hart van de woning en baadt in natuurlijk licht dankzij de hoge ramen en zuidgerichte oriëntatie. Van hieruit geniet je van een prachtig open uitzicht over de omgeving. De open keuken sluit harmonieus aan bij de leefruimte en is volledig uitgerust met moderne inbouwtoestellen, ideaal voor wie graag kookt en gasten ontvangt in een gezellige setting.
Verder beschikt het appartement over drie volwaardige slaapkamers, elk met een aangename lichtinval en authentieke charme. De oorspronkelijke parketvloer en art-decotegels benadrukken het tijdloze karakter van deze woning. De badkamer is voorzien van een dubbele lavabo, een ruim ligbad en aansluitingen voor wasmachine en droogkast. Een apart toilet en ingemaakte kasten zorgen voor extra comfort en praktische bergruimte.
Aan de achterzijde bevindt zich een gezellig terras, ideaal om buiten te genieten, aangevuld met een extra berging.
Extra troeven
- Bewoonbare oppervlakte: 110 m² (cfr. EPC)
- Volledig instapklaar - recente renovaties uitgevoerd
- Energiezuinig dankzij zonnepanelen
- Topmobiscore 9/10
- Beveiligde fietsenstalling in het gebouw
- P&R parking vlak naast de deur met rechtstreekse toegang tot tram en bus
- Conciërge aanwezig en uitstekend gebouwbeheer
- Grote parken op wandelafstand, centrum en Zuid vlot bereikbaar per fiets
Een uniek appartement dat stijl, comfort en ruimte moeiteloos combineert, ideaal voor wie houdt van licht, karakter en een centrale maar rustige ligging.
Energie
- E-peil: E0
- Verwarming: Gas
- Beglazing: Standaard dubbel
Op de kaart

Financieel
| Prijs | |
|---|---|
| Kadastraal inkomen (niet geïndexeerd) | € 0 |
| Kadastraal inkomen (geïndexeerd) | € 0 |
Berekening kosten
Je aankoopkosten? Die heb je snel berekent via de knop hieronder.
Bijkomende info
Gebouw
| Bouwjaar | 1931 |
|---|---|
| Staat | Goed onderhouden |
| Bouwcertificaat | Nee |
| Bewoonbaar (m²) | 110 |
| Verdieping | 4 |
| Badkamers | 1 |
| Slaapkamers | 3 |
| Verdiepingen | 8 |
| Garages | 0 |
| Parkeerplaatsen | 0 |
| Doucheruimtes | 0 |
| Toiletten | 1 |
Faciliteiten
| Keuken uitrusting | Luxueus uitgerust |
|---|---|
| Beglazing | Standaard dubbel |
| Brandstof primaire verwarming | Gas |
| Elektrisch keuringsattest | Ja |
Perceel
| Overstromingsgevoelig | Geen |
|---|---|
| Voorkeurrecht | Ja |
| Bebouwde oppervlakte (m²) | 0 |
| Tuin oppervlakte (m²) | 0 |
| Oppervlakte terras (m²) | 3 |
Vergunning
| Vergunning | Aanvraag ingediend |
|---|---|
| Verkavelingsvergunning | Aanvraag ingediend |
Uitrusting
| Investeringspand | Nee |
|---|---|
| Geschikt voor praktijk | Nee |
| Parking | Nee |
| Garage | Nee |
| Thuiskantoor | Nee |
| Kelder | Nee |
| Zolder | Nee |
| Tuin | Nee |
| Terras | Ja |
| Lift | Ja |
| Rioolaansluiting | Ja |
| Gasaansluiting | Nee |
| Wateraansluiting | Ja |
| Elektriciteitsaansluiting | Ja |
| TV aansluiting | Ja |
| Internetaansluiting | Ja |
| Telefoonaansluiting | Ja |
Appartementsblok
| Aantal verdiepingen | 8 |
|---|---|
| Lift | Ja |