Charmant en Lichtrijk Appartement op bovenste verdieping.
Een pand van Reant
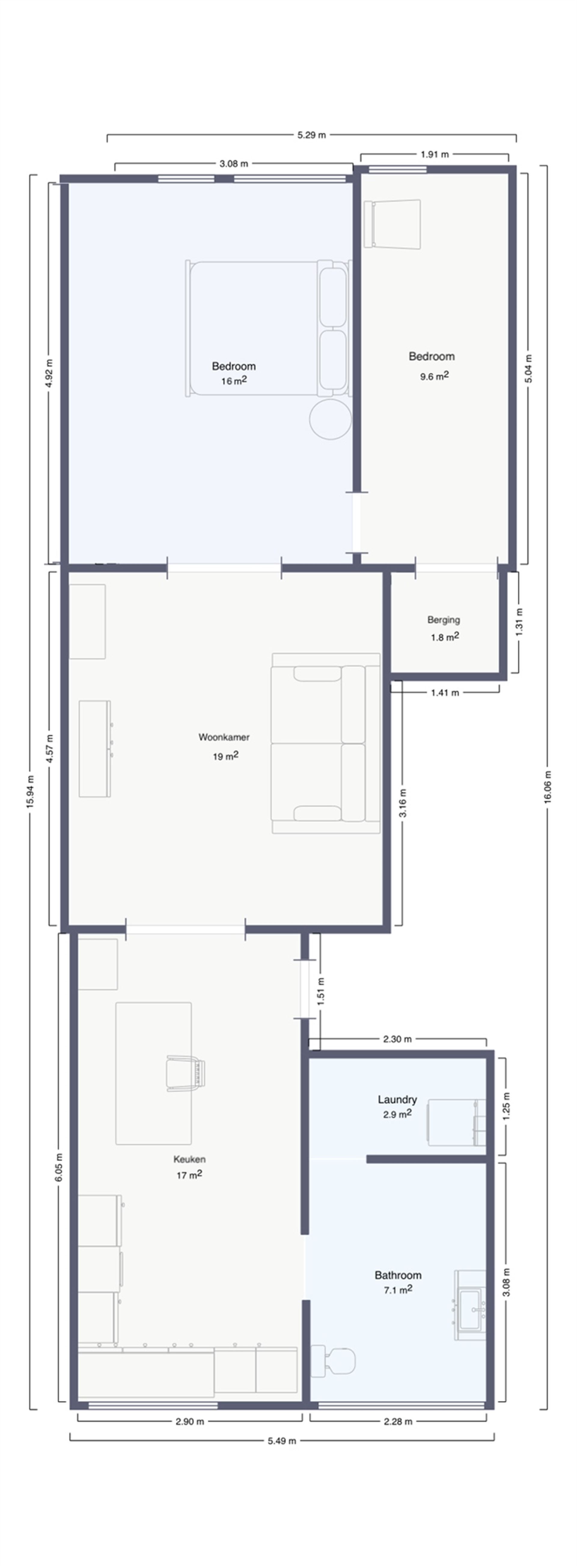
Overzicht
- 90 m² bewoonbaar
- 2 Slaapkamer(s)
- 1 Badkamer(s)
- 1 Toilet(ten)
Beschrijving
Charmant en Lichtrijk Appartement op bovenste verdieping.
Dit recent vernieuwde appartement combineert authentieke charme met hedendaags wooncomfort. De hoge plafonds, originele plankenvloer en grote raampartijen creëren een warme, lichtrijke en uitnodigende leefomgeving. De ruime living vormt het hart van de woning en baadt in het natuurlijke licht. De vernieuwde keuken is praktisch ingericht en voorzien van moderne toestellen. Aansluitend bevindt zich een handige berging. De badkamer is stijlvol afgewerkt en beschikt over een inloopdouche, toilet en wastafel. De slaapkamer is ruim en rustig gelegen, ideaal voor een goede nachtrust. Gelegen op de bovenste verdieping, geniet u van maximale rust en geen bovenburen.
Het appartement is gunstig gelegen aan de rand van Antwerpen. U woont hier in een rustige straat met een uitstekende bereikbaarheid. Winkels, openbaar vervoer en de belangrijkste invalswegen bevinden zich op korte afstand.
TROEVEN
+ Hoge plafonds en originele plankenvloer
+ Veel lichtinval dankzij grote raampartijen
+ EPC B
+ Asbestveilig
+ Geen gemeenschappelijke kosten
+ Elektriciteit conform AREI
+ Recent vernieuwd met behoud van charme
+ Privatieve kelderberging
Stedenbouwkundig uittreksel in aanvraag.
Energie
![]() |
- EPC Certificaat: 2388696
- Energieverbruik: 198 kWh/m²/jaar
- E-peil: E0
- Verwarming: Gas
- Beglazing: Standaard dubbel
Op de kaart

Financieel
| Prijs | |
|---|---|
| Kadastraal inkomen (niet geïndexeerd) | € 433 |
| Kadastraal inkomen (geïndexeerd) | € 0 |
Berekening kosten
Je aankoopkosten? Die heb je snel berekent via de knop hieronder.
Bijkomende info
Gebouw
| Bouwjaar | 1931 |
|---|---|
| Bouwcertificaat | Nee |
| Bewoonbaar (m²) | 90 |
| Verdieping | 2 |
| Gevelbreedte | 6 |
| Badkamers | 1 |
| Slaapkamers | 2 |
| Verdiepingen | 2 |
| Garages | 0 |
| Parkeerplaatsen | 0 |
| Doucheruimtes | 0 |
| Toiletten | 1 |
Faciliteiten
| Keuken uitrusting | Luxueus uitgerust |
|---|---|
| Materiaal ramenomlijstingen | PVC |
| Beglazing | Standaard dubbel |
| Brandstof primaire verwarming | Gas |
| Elektrisch keuringsattest | Ja |
Perceel
| Overstromingsgevoelig | Geen |
|---|---|
| P-score | B |
| G-score | B |
| Voorkeurrecht | Ja |
| Bebouwde oppervlakte (m²) | 0 |
| Tuin oppervlakte (m²) | 0 |
| Oppervlakte terras (m²) | 4 |
| Oriëntatie tuin | Zuidwest |
Vergunning
| Vergunning | Geen beschikbaar |
|---|---|
| Verkavelingsvergunning | Geen beschikbaar |
Uitrusting
| Investeringspand | Nee |
|---|---|
| Geschikt voor praktijk | Nee |
| Parking | Nee |
| Garage | Nee |
| Thuiskantoor | Nee |
| Kelder | Ja |
| Zolder | Nee |
| Tuin | Nee |
| Terras | Ja |
| Lift | Nee |
| Rioolaansluiting | Ja |
| Gasaansluiting | Ja |
| Wateraansluiting | Ja |
| Elektriciteitsaansluiting | Ja |
| TV aansluiting | Ja |
| Internetaansluiting | Ja |
| Telefoonaansluiting | Nee |
Appartementsblok
| Aantal verdiepingen | 2 |
|---|---|
| Lift | Nee |
