Nieuw
Te Koop centraal gelegen moderne KMO unit nabij haven van Antwerpen
€ 689.000
Een pand van CEUSTERS
Favoriet
Jouw zoektocht
Jouw scoretabel voor dit pand
Aan het laden...
Jouw geplande bezichtigingen
Aan het laden...
Overzicht
- 388 m² bewoonbaar
Beschrijving
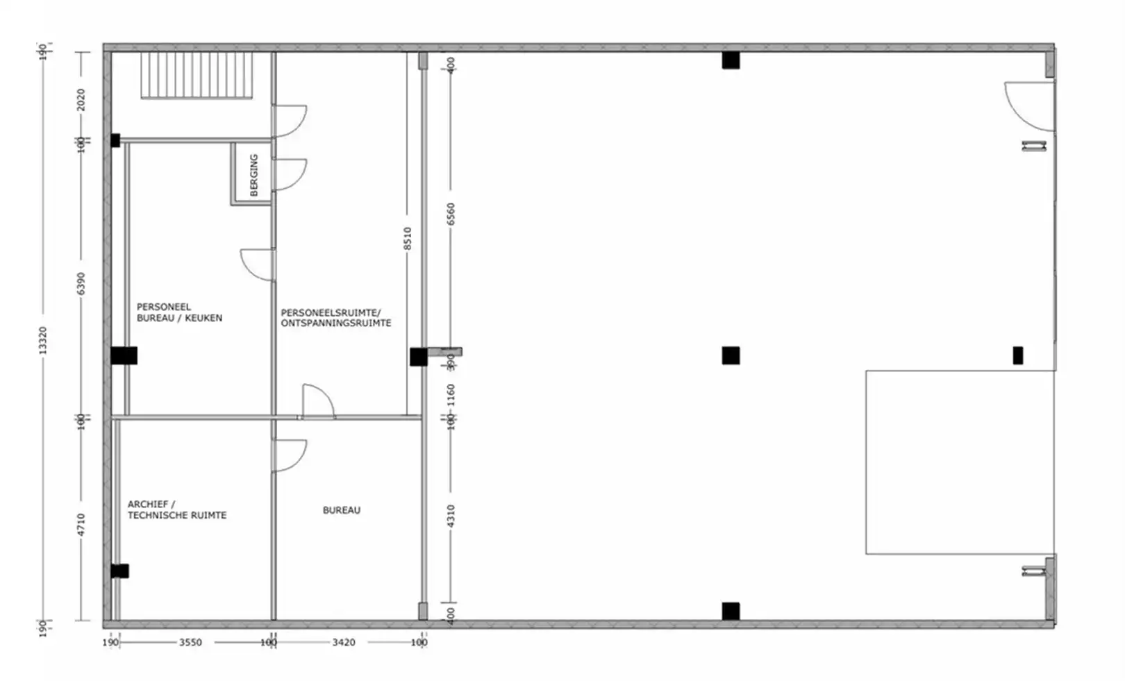
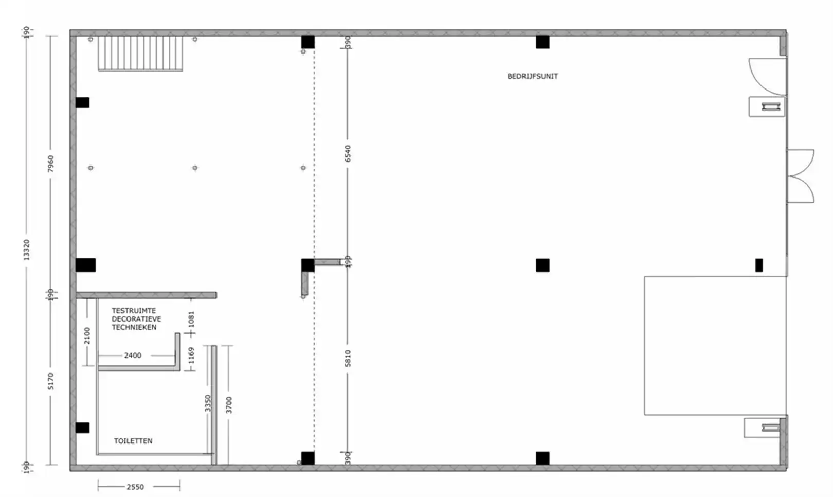
Te Koop: Moderne en strategisch gelegen KMO-unit Kotterstraat, Antwerpen
Deze moderne KMO-unit in de Kotterstraat te Antwerpen biedt een veelzijdige en functionele omgeving voor uiteenlopende bedrijfsactiviteiten. Met een industriële uitstraling, veel natuurlijk licht en een doordachte indeling is dit pand ideaal voor bedrijven actief in opslag, productie, logistiek of atelierwerking.
Ruim en Efficiënt Magazijn
- Royale vrije hoogte
- Overvloedig daglicht door grote raampartijen
- Flexibele indeling voor opslag, productie of logistiek
- Grote, recent vernieuwde sectionaalpoort bedienbaar met toegangscode, apple wallet en gezichtsherkenning en gekoppeld aan CCTV
Kantoorruimte op verdieping
- Afgewerkte kantoorruimte met veel natuurlijk licht
- Modern design met houten vloeren en strakke lijnen
- Uitzicht op het magazijn voor optimale operationele opvolging
- Volledig uitgeruste kitchenette
- Modern sanitair
Comfort & Veiligheid
- Verwarming via cv-ketel op aardgas
- Laadpaal
- Vooruitrusting camera- en alarmsysteem aanwezig
Strategische Ligging
Centrale positie in Antwerpen. Deze KMO-unit profiteert van een uitzonderlijke bereikbaarheid dankzij de nabijheid van belangrijke verkeersaders en de ligging nabij de Haven van Antwerpen
- R1 (Ring van Antwerpen): snelle toegang in beide rijrichtingen
- E19 richting Brussel en Nederland
- A12 richting Brussel, Boom, Willebroek en havenzones
- op korte afstand van één van Europas grootste havens, een belangrijke troef is voor logistieke, maritieme of exportgerichte bedrijven.
Bereikbaarheid voor Personeel & Klanten
- Vlotte verbinding met het Antwerpse stadscentrum
- Zeer goed bereikbaar met de wagen
- Gelegen in een bedrijvige en logistiek interessante zone
- Openbaar vervoer (trein/tram/bus) op wandelafstand
Prijzen excl. BTW, notaris- en beschrijfkosten. Periodieke bijdrage syndicus/beheer: ca. 283 per kwartaal
Interesse? Neem vandaag nog contact op met Ceusters voor meer informatie of een bezoek ter plaatse!
Energie
- E-peil: E0
- Beglazing: Onbekend
Op de kaart

Financieel
| Prijs | |
|---|---|
| Kadastraal inkomen (niet geïndexeerd) | € 0 |
| Kadastraal inkomen (geïndexeerd) | € 0 |
Berekening kosten
Je aankoopkosten? Die heb je snel berekend via de knop hieronder.
Bijkomende info
Gebouw
| Bouwcertificaat | Nee |
|---|---|
| Bewoonbaar (m²) | 388 |
| Verdieping | 0 |
| Badkamers | 0 |
| Slaapkamers | 0 |
| Verdiepingen | 0 |
| Garages | 0 |
| Parkeerplaatsen | 0 |
| Doucheruimtes | 0 |
| Toiletten | 0 |
Faciliteiten
| Elektrisch keuringsattest | Nee |
|---|
Perceel
| Overstromingsgevoelig | Geen |
|---|---|
| P-score | A |
| G-score | A |
| Voorkeurrecht | Ja |
| Bebouwde oppervlakte (m²) | 0 |
| Tuin oppervlakte (m²) | 0 |
| Oppervlakte terras (m²) | 0 |
Vergunning
| Vergunning | Vergunning beschikbaar |
|---|
Uitrusting
| Investeringspand | Nee |
|---|---|
| Geschikt voor praktijk | Nee |
| Parking | Nee |
| Garage | Nee |
| Thuiskantoor | Nee |
| Kelder | Nee |
| Zolder | Nee |
| Tuin | Nee |
| Terras | Nee |
| Lift | Nee |
| Rioolaansluiting | Nee |
| Gasaansluiting | Nee |
| Wateraansluiting | Nee |
| Elektriciteitsaansluiting | Nee |
| TV aansluiting | Nee |
| Internetaansluiting | Nee |
| Telefoonaansluiting | Nee |
Appartementsblok
| Naam residentie | KOTTERSTRAAT 10 ANTWERPEN |
|---|---|
| Lift | Nee |
Een pand van
CEUSTERS
CEUSTERS
Onze experts in property management en vastgoedadvies stellen een kwalitatieve dienstverlening voorop. Creatief en flexibel gaat ons team op zoek naar kansen en oplossingen voor elke klant. Telkens een stapje verder. Naast onze kantoren in Antwerpen, Gent, Brussel, Hasselt en Rotterdam (Nederland), opereert CEUSTERS vanuit zes andere vestigingen verspreid over heel België. In deze snel veranderende wereld staat ons sterk inzicht in de lokale markt garant voor continuïteit.
KOTTERSTRAAT 10 ANTWERPEN
Leer meer over vastgoed
04 January 2026
Zoek je een kantoor, een magazijn of… iets ertussenin? Bedrijfsvastgoed uitgelegd
05 November 2024
Bedrijfsvastgoed in transitie: ontdek de toekomst van werkplekken
16 October 2024
Opbrengsteigendom: een slim pad naar passief inkomen en vermogensgroei
09 September 2024