Instapklare studio met hoog rendement in zijstraat Italiëlei
€ 195.000
Een pand van Immo Vasta
Overzicht
- 41 m² bewoonbaar
- 385 m² grond
- 1 Slaapkamer(s)
- 1 Badkamer(s)
- 1 Toilet(ten)
Beschrijving
Ben je op zoek naar een lichtrijke en stijlvolle pied-à-terre, studentenkamer of slimme investering? Deze knappe studio op de eerste verdieping in de Duboisstraat is volledig instapklaar, goed ingedeeld en ideaal gelegen: vlakbij het bruisende Eilandje, AP-Hogeschool én Park Spoor Noord. Een rustpunt in de stad, mét open zicht en elektrische rolluiken.
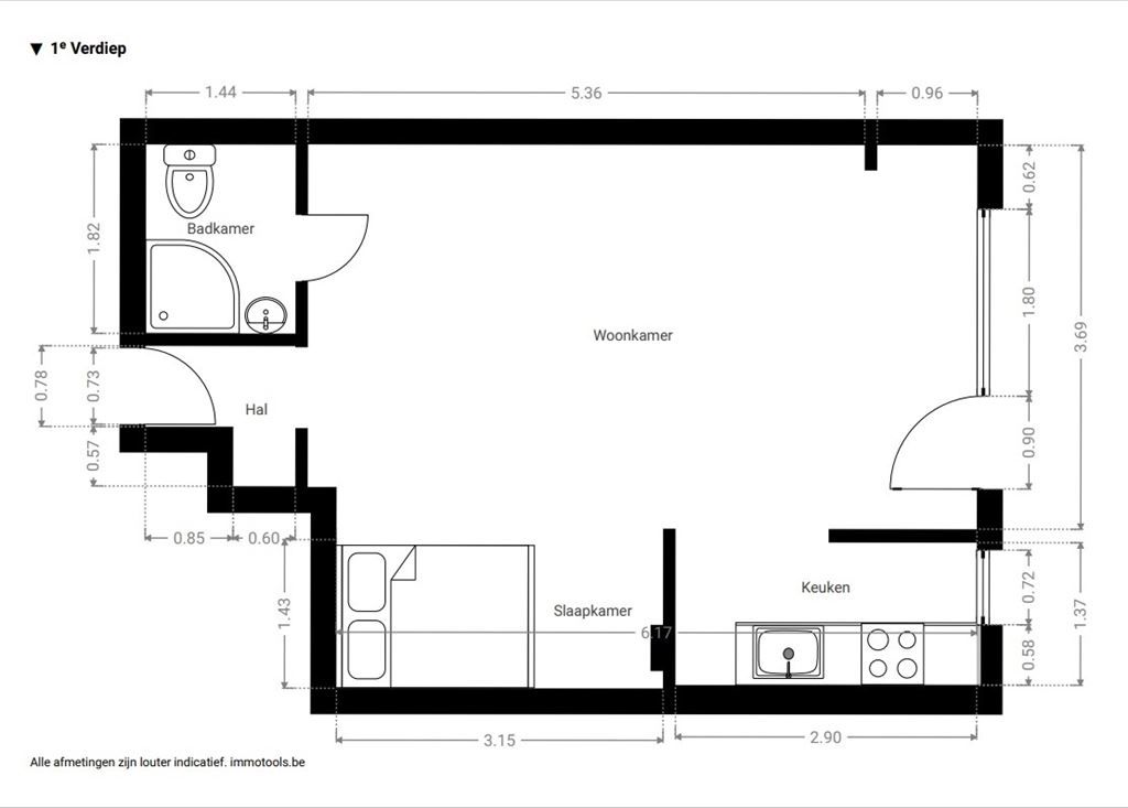
Strakke leefruimte met open slaaphoek
De leefruimte van 30m² is verrassend ruim en combineert op harmonieuze wijze een zithoek, eetruimte én slaapgedeelte. De hoge plafonds en grote ramen zorgen voor een luchtig gevoel, terwijl de parkettegel in houtlook warmte brengt. Dankzij de elektrische rolluiken bepaal je zelf het lichtniveau en de privacy. Aan het slaapgedeelte zijn stijlvolle led-strips weggewerkt in de muur voor een zacht indirect licht. De open keuken, met uitzicht op de binnentuin, is slim ingewerkt en voorzien van witte kasten, een chromen spoelbak en kraan, inductiekookplaat en combioven. De lichte, neutrale afwerking maakt dit een tijdloos geheel. Een raam zorgt voor extra licht en verluchting, en is voorzien van een manueel rolluik.
Compacte inkom en moderne badkamer
De inkomhal van 3 m² is bekleed met akoestische wandpanelen in houtlook, wat niet alleen zorgt voor een warme uitstraling, maar ook akoestisch comfort biedt. In de compacte maar praktische badkamer (3 m²) vind je een moderne douchecabine met zwart paneel, lichtgrijze wand- en vloertegels, een wit hangtoilet en een strak badkamermeubel met wastafel. Aansluiting voor wasmachine is voorzien.
Een buurt in volle ontwikkeling
De Duboisstraat ligt in een rustige zijstraat van de Italiëlei, op een boogscheut van AP-Hogeschool, Campus Spoor Noord, de Cadixwijk en het Eilandje. Openbaar vervoer (tram en bus) stopt op amper 3 minuten wandelen, en ook met de fiets ben je zó in het stadscentrum of aan het MAS. Deze ligging maakt de studio bijzonder interessant voor studenten, expats of als investering.
Energie
![]() |
- EPC Certificaat: 20250204-0003509981-RES-1
- Energieverbruik: 399 kWh/m²/jaar
- E-peil: E0
- Verwarming: Gas
- Beglazing: Standaard dubbel
Extra budget nodig voor je renovatie?

Op de kaart

Financieel
| Prijs | |
|---|---|
| Kadastraal inkomen (niet geïndexeerd) | € 0 |
| Kadastraal inkomen (geïndexeerd) | € 0 |
Berekening kosten
Je aankoopkosten? Die heb je snel berekent via de knop hieronder.
Bijkomende info
Gebouw
| Bouwjaar | 1968 |
|---|---|
| Staat | Goed onderhouden |
| Bouwcertificaat | Nee |
| Bewoonbaar (m²) | 41 |
| Verdieping | 1 |
| Gevelbreedte | 5.5 |
| Badkamers | 1 |
| Slaapkamers | 1 |
| Verdiepingen | 4 |
| Garages | 0 |
| Parkeerplaatsen | 0 |
| Doucheruimtes | 0 |
| Toiletten | 1 |
Faciliteiten
| Keuken uitrusting | Luxueus uitgerust |
|---|---|
| Materiaal ramenomlijstingen | PVC |
| Beglazing | Standaard dubbel |
| Brandstof primaire verwarming | Gas |
| Elektrisch keuringsattest | Ja |
Perceel
| Diepte (m) | 23 |
|---|---|
| Breedte (m) | 5 |
| Overstromingsgevoelig | Geen |
| P-score | C |
| G-score | C |
| Voorkeurrecht | Nee |
| Totale oppervlakte (m²) | 385 |
| Bebouwde oppervlakte (m²) | 0 |
| Tuin oppervlakte (m²) | 0 |
| Oppervlakte terras (m²) | 0 |
| Oriëntatie tuin | Zuid |
Vergunning
| Vergunning | Aanvraag ingediend |
|---|
Uitrusting
| Investeringspand | Nee |
|---|---|
| Geschikt voor praktijk | Nee |
| Parking | Nee |
| Garage | Nee |
| Thuiskantoor | Nee |
| Kelder | Nee |
| Zolder | Nee |
| Tuin | Nee |
| Terras | Nee |
| Lift | Ja |
| Rioolaansluiting | Nee |
| Gasaansluiting | Ja |
| Wateraansluiting | Ja |
| Elektriciteitsaansluiting | Ja |
| TV aansluiting | Nee |
| Internetaansluiting | Nee |
| Telefoonaansluiting | Nee |
Appartementsblok
| Aantal verdiepingen | 4 |
|---|---|
| Lift | Ja |


