Energiezuinig Appartement met Zuid-terras
€ 299.000
Een pand van Reant
Overzicht
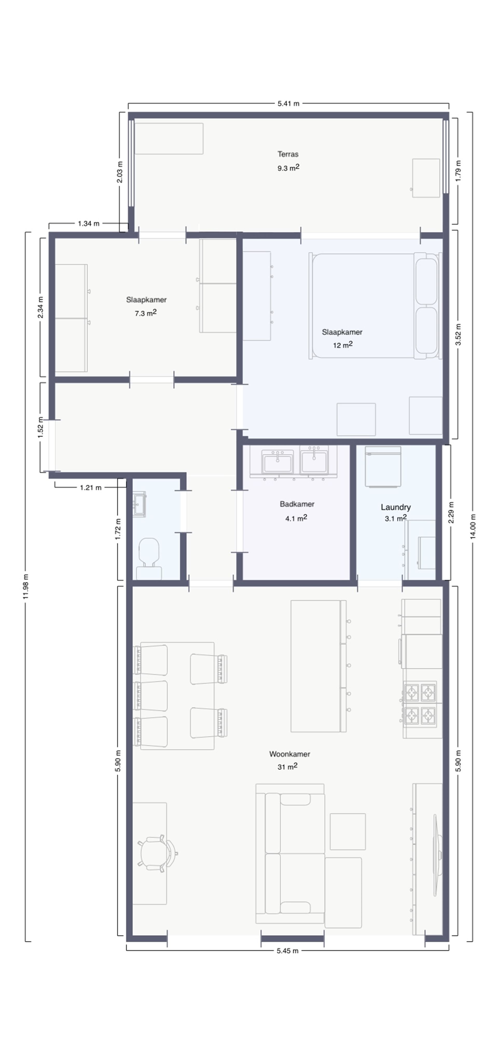
- 81 m² bewoonbaar
- 2 Slaapkamer(s)
- 1 Badkamer(s)
- 1 Toilet(ten)
Overstromingsgevaar gebouw
Overstromingsgevaar perceel
Beschrijving
Instapklaar en Energiezuinig Appartement (EPC A) met Zuidgericht Terras in Antwerpen
Welkom in dit recent gebouwd appartement uit 2019, waar comfortabel en energiezuinig wonen hand in hand gaan. Dit instapklare appartement biedt een doordachte indeling, moderne afwerking en een zonnig zuidgericht terras van 10m². Gelegen aan de vernieuwde IJzerlaan in de bruisende wijk Den Dam, combineert deze woonst rust met uitstekende bereikbaarheid.
Je komt binnen via de inkomhal die toegang biedt tot alle ruimtes. Vooraan bevinden zich twee volwaardige slaapkamers met directe toegang tot het terras.
De moderne badkamer is uitgerust met een stijlvolle inloopdouche en een lavabomeubel. Een afzonderlijk toilet zorgt voor extra comfort.
De leefruimte baadt in het licht dankzij de grote raampartijen en sluit naadloos aan op de open keuken met elegant keukeneiland. Deze is volledig uitgerust en vormt het hart van de woning. Aansluitend vind je een praktische berging met ruimte voor wasmachine, droogkast en extra opslag.
Het zuidgerichte terras van 10m² is toegankelijk via beide slaapkamers en biedt een aangename buitenruimte waar je volop van de zon kunt genieten.
Gelegen aan de IJzerlaan in Antwerpen, in de levendige wijk Den Dam, geniet je hier van een strategische locatie met uitstekende mobiliteit. Het stadscentrum, het Eilandje en de Ring zijn vlot bereikbaar. Op wandelafstand vind je winkels, openbaar vervoer en gezellige horeca. Park Spoor Noord ligt vlakbij en biedt groene ontspanning op steenworp afstand.
TROEVEN
+ EPC A
+ Zuidgericht terras van 10m²
+ Privatieve kelderberging met elektriciteitsaansluiting
+ Gemeenschappelijke fietsenstalling aanwezig
+ Vloerverwarming, muggenramen, filterkraan en tv-kabelgoot
Stedenbouwkundig uittreksel in aanvraag.
Energie
![]() |
- EPC Certificaat: 11002-G-DBA_2017026034/EP10894/A001/D01/SD026
- Energieverbruik: 45 kWh/m²/jaar
- E-peil: E32
- Verwarming: Gas
- Beglazing: Standaard dubbel
Op de kaart

Financieel
| Prijs | |
|---|---|
| Kadastraal inkomen (niet geïndexeerd) | € 857 |
| Kadastraal inkomen (geïndexeerd) | € 0 |
Berekening kosten
Je aankoopkosten? Die heb je snel berekent via de knop hieronder.
Bijkomende info
Gebouw
| Bouwjaar | 2019 |
|---|---|
| Bouwcertificaat | Nee |
| Bewoonbaar (m²) | 81 |
| Verdieping | 4 |
| Badkamers | 1 |
| Slaapkamers | 2 |
| Verdiepingen | 6 |
| Garages | 0 |
| Parkeerplaatsen | 0 |
| Doucheruimtes | 0 |
| Toiletten | 1 |
Faciliteiten
| Keuken uitrusting | Luxueus uitgerust |
|---|---|
| Materiaal ramenomlijstingen | PVC |
| Beglazing | Standaard dubbel |
| Brandstof primaire verwarming | Gas |
| Elektrisch keuringsattest | Ja |
Perceel
| Overstromingsgevoelig | Geen |
|---|---|
| P-score | D |
| G-score | D |
| Voorkeurrecht | Ja |
| Bebouwde oppervlakte (m²) | 0 |
| Tuin oppervlakte (m²) | 0 |
| Oppervlakte terras (m²) | 10 |
| Oriëntatie tuin | Zuid |
Vergunning
| Vergunning | Geen beschikbaar |
|---|---|
| Verkavelingsvergunning | Geen beschikbaar |
Uitrusting
| Investeringspand | Nee |
|---|---|
| Geschikt voor praktijk | Nee |
| Parking | Nee |
| Garage | Nee |
| Thuiskantoor | Nee |
| Kelder | Ja |
| Zolder | Nee |
| Tuin | Nee |
| Terras | Ja |
| Lift | Ja |
| Rioolaansluiting | Ja |
| Gasaansluiting | Ja |
| Wateraansluiting | Ja |
| Elektriciteitsaansluiting | Ja |
| TV aansluiting | Ja |
| Internetaansluiting | Ja |
| Telefoonaansluiting | Nee |
Appartementsblok
| Aantal verdiepingen | 6 |
|---|---|
| Lift | Ja |
