Instapklaar appartement, 3slpk, incl staanplaats
Een pand van Immo Vasta
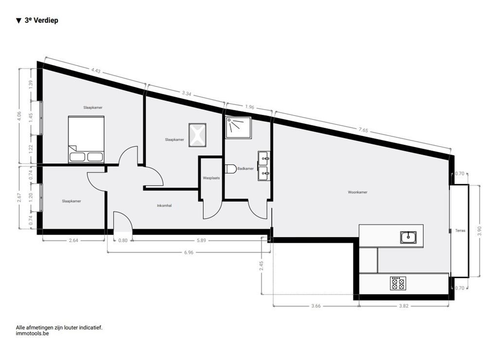
Overzicht
- 104 m² bewoonbaar
- 2798 m² grond
- 3 Slaapkamer(s)
- 1 Badkamer(s)
- 1 Toilet(ten)
Overstromingsgevaar gebouw
Overstromingsgevaar perceel
Beschrijving
Op zoek naar een ruim appartement in een rustige maar opkomende buurt vlak bij het centrum van Antwerpen? Dan is dit instapklare, trendy appartement met 3 slaapkamers, kelderberging én autostaanplaats precies wat je zoekt. Je geniet hier van veel licht, een stijlvolle afwerking en een vlotte bereikbaarheid.
Stijlvol en lichtrijk wonen
Met z’n 104 m² bewoonbare oppervlakte, warme visgraat parketvloeren en hoge plafonds, ademt dit appartement ruimte en stijl. Je komt binnen via een ruime hal met digitale thermostaat, parlofoon en toegang tot alle kamers. De gezellige leefruimte van maar liefst 44 m² is afgewerkt met strakke industriële details, ingebouwde spots en een prachtige aluminium schuifraam die toegang biedt tot het voorgelegen balkon.
De open keuken is strak en functioneel met wit kunststof fronten, een wit keramisch werkblad en kwalitatieve toestellen: een 5-pits gasvuur en 2 ovens van Miele, AEG dampkap en chromen kraanwerk. De slimme indeling zorgt ervoor dat je hier gezellig samen kookt én tafelt.
3 volwaardige slaapkamers & stijlvolle badkamer
De drie slaapkamers hebben allemaal een warme visgraat parketvloer. Twee kamers (8,5 m² en 17 m²) bevinden zich aan de rustige achterzijde met manuele rolluiken, vliegenramen en composiet vensterbanken. De derde kamer (11,5 m²) beschikt over een ronde dakkoepel die zorgt voor natuurlijke lichtinval. De badkamer is een echte eyecatcher met een moderne, industriële look: witte marmerlook tegels, een dubbele wastafel, zwarte kasten, glazen douchewand met industriële frame en ledverlichting onder het hangtoilet. Praktisch en stijlvol tegelijk.
Handige extra’s
Er is een aparte berging met aansluiting voor de wasmachine en een individuele gasketel. Verder beschik je over een privatieve kelderberging én een autostaanplaats. De ondergrondse fietsenberging is mooi meegenomen voor wie graag met de fiets de stad in trekt.
Rustig wonen in opbloeiende buurt
Je woont hier in een opkomende buurt in 2060 Antwerpen, op wandelafstand van het station Schijnpoort en diverse bushaltes. Het is hier heerlijk rustig wonen, met het bruisende stadsleven toch binnen handbereik. Je vindt alles in de buurt: winkels, openbaar vervoer, scholen en gezellige horecaplekken.
Energie
![]() |
- EPC Certificaat: 20230930-0002658246-RES-1
- Energieverbruik: 180 kWh/m²/jaar
- E-peil: E0
- Verwarming: Gas
- Beglazing: Standaard dubbel
Op de kaart

Financieel
| Prijs | |
|---|---|
| Kadastraal inkomen (niet geïndexeerd) | € 0 |
| Kadastraal inkomen (geïndexeerd) | € 0 |
Berekening kosten
Je aankoopkosten? Die heb je snel berekent via de knop hieronder.
Bijkomende info
Gebouw
| Staat | Goed onderhouden |
|---|---|
| Bouwcertificaat | Nee |
| Bewoonbaar (m²) | 104 |
| Verdieping | 3 |
| Gevelbreedte | 5 |
| Badkamers | 1 |
| Slaapkamers | 3 |
| Verdiepingen | 5 |
| Garages | 0 |
| Parkeerplaatsen | 0 |
| Doucheruimtes | 0 |
| Toiletten | 1 |
Faciliteiten
| Keuken uitrusting | Luxueus uitgerust |
|---|---|
| Materiaal ramenomlijstingen | PVC |
| Beglazing | Standaard dubbel |
| Brandstof primaire verwarming | Gas |
| Elektrisch keuringsattest | Ja |
Perceel
| Overstromingsgevoelig | Geen |
|---|---|
| P-score | D |
| G-score | D |
| Voorkeurrecht | Ja |
| Totale oppervlakte (m²) | 2798 |
| Bebouwde oppervlakte (m²) | 831 |
| Tuin oppervlakte (m²) | 0 |
| Oppervlakte terras (m²) | 4 |
| Oriëntatie tuin | Noord |
Vergunning
| Vergunning | Aanvraag ingediend |
|---|---|
| Type gebied | Stedelijk |
Uitrusting
| Investeringspand | Nee |
|---|---|
| Geschikt voor praktijk | Nee |
| Parking | Nee |
| Garage | Nee |
| Thuiskantoor | Nee |
| Kelder | Nee |
| Zolder | Nee |
| Tuin | Nee |
| Terras | Ja |
| Lift | Ja |
| Rioolaansluiting | Nee |
| Gasaansluiting | Ja |
| Wateraansluiting | Ja |
| Elektriciteitsaansluiting | Ja |
| TV aansluiting | Nee |
| Internetaansluiting | Nee |
| Telefoonaansluiting | Nee |
Appartementsblok
| Aantal verdiepingen | 5 |
|---|---|
| Lift | Ja |
