Instapklaar en lichtrijk 1-slaapkamerappartement in kleinschalig gebouw
€ 219.000
Een pand van Immo Vasta
Overzicht
- 64 m² bewoonbaar
- 689 m² grond
- 1 Slaapkamer(s)
- 1 Badkamer(s)
- 1 Toilet(ten)
Beschrijving
Wonen in een bruisende buurt op wandelafstand van Park Spoor Noord, de Stuivenbergsite, het station én de Zoo? Dit instapklare appartement op de tweede verdieping combineert veel licht, een slimme indeling en lage algemene kosten in een kleinschalig gebouw. Ideaal voor investeerders of iedereen die centraal én comfortabel wil wonen.
Licht & ruimte
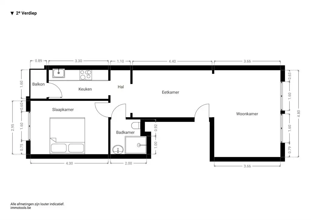
Op de tweede verdieping van een verzorgd, kleinschalig gebouw kom je binnen in de leefruimte, dewelke zonder twijfel het hart van het appartement is. Dankzij de grote raampartijen én de lichtkoepel geniet je hier van een overvloed aan natuurlijk licht. Er is meer dan voldoende plaats voor een ruim salon en een volwaardige eettafel. De laminaatvloer zorgt voor een warme, onderhoudsvriendelijke afwerking.
Compact, maar compleet
De aparte keuken bereik je via de hal, inclusief een handige wasberging met kastruimte. De keuken is volledig geïnstalleerd met kookplaat, dampkap, oven, koelkast, diepvries, vaatwasser en een anderhalve spoelbak. Het houten werkblad geeft een gezellige touch, terwijl de tegelvloer praktisch in onderhoud is. Aansluitend heb je een klein terras met een handige kast.
De badkamer is uitgerust met een toilet, een houten lavabomeubel met schapjes en een grote douche met regendouche. De recente condensatieketel zorgt voor energiezuinig comfort.
De slaapkamer bevindt zich achteraan en is afgewerkt met een mooie parketvloer. Rolluiken zorgen hier – net als in de rest van het appartement – voor extra comfort en privacy.
Groen, stads en uitstekend bereikbaar
Je woont hier in 2060 Antwerpen, een levendige wijk in volle ontwikkeling. Op wandelafstand ligt het populaire Park Spoor Noord, ideaal om te sporten, ontspannen of af te spreken met vrienden. Ook de Stuivenbergsite geeft de buurt extra toekomstpotentieel.
Daarnaast bereik je in enkele minuten het Centraal Station van Antwerpen en de Zoo van Antwerpen. Openbaar vervoer, winkels en horeca liggen om de hoek. Dankzij de centrale ligging ben je overal snel, te voet, met de fiets of met het openbaar vervoer.
Energie
![]() |
- EPC Certificaat: 20251124-0003740567-RES-1
- Energieverbruik: 270 kWh/m²/jaar
- E-peil: E0
- Verwarming: Gas
- Beglazing: Standaard dubbel
Op de kaart

Financieel
| Prijs | |
|---|---|
| Kadastraal inkomen (niet geïndexeerd) | € 615 |
| Kadastraal inkomen (geïndexeerd) | € 0 |
Berekening kosten
Je aankoopkosten? Die heb je snel berekend via de knop hieronder.
Bijkomende info
Gebouw
| Bouwjaar | 1979 |
|---|---|
| Staat | Zo goed als nieuw |
| Bouwcertificaat | Nee |
| Bewoonbaar (m²) | 64 |
| Verdieping | 2 |
| Gevelbreedte | 5 |
| Badkamers | 1 |
| Slaapkamers | 1 |
| Verdiepingen | 2 |
| Garages | 0 |
| Parkeerplaatsen | 0 |
| Doucheruimtes | 0 |
| Toiletten | 1 |
Faciliteiten
| Keuken uitrusting | Standaard |
|---|---|
| Materiaal ramenomlijstingen | PVC |
| Beglazing | Standaard dubbel |
| Brandstof primaire verwarming | Gas |
| Elektrisch keuringsattest | Ja |
Perceel
| Diepte (m) | 14 |
|---|---|
| Breedte (m) | 5 |
| Overstromingsgevoelig | Geen |
| P-score | B |
| G-score | B |
| Voorkeurrecht | Nee |
| Totale oppervlakte (m²) | 689 |
| Bebouwde oppervlakte (m²) | 74 |
| Tuin oppervlakte (m²) | 0 |
| Oppervlakte terras (m²) | 3 |
| Oriëntatie tuin | Oost |
Vergunning
| Verkavelingsvergunning | Geen beschikbaar |
|---|
Uitrusting
| Investeringspand | Nee |
|---|---|
| Geschikt voor praktijk | Nee |
| Parking | Nee |
| Garage | Nee |
| Thuiskantoor | Nee |
| Kelder | Ja |
| Zolder | Nee |
| Tuin | Nee |
| Terras | Ja |
| Lift | Nee |
| Rioolaansluiting | Nee |
| Gasaansluiting | Nee |
| Wateraansluiting | Nee |
| Elektriciteitsaansluiting | Nee |
| TV aansluiting | Nee |
| Internetaansluiting | Nee |
| Telefoonaansluiting | Nee |
Appartementsblok
| Aantal verdiepingen | 2 |
|---|---|
| Lift | Nee |
