Handelsgelijksvloers in casco staat
Een pand van Immo Vasta
Jouw zoektocht
Overzicht
- 81 m² bewoonbaar
- 96 m² grond
Overstromingsgevaar gebouw
Overstromingsgevaar perceel
Beschrijving
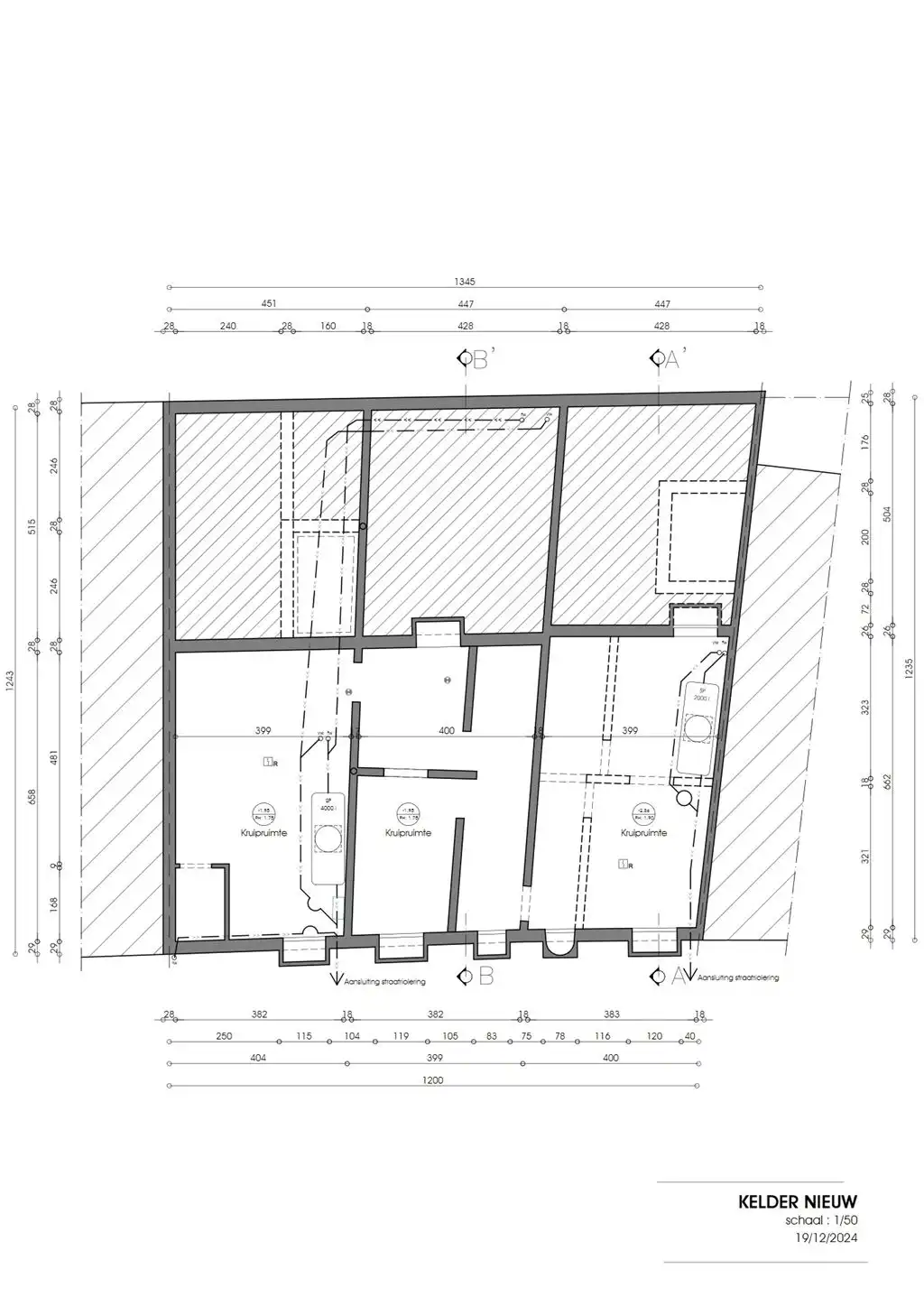
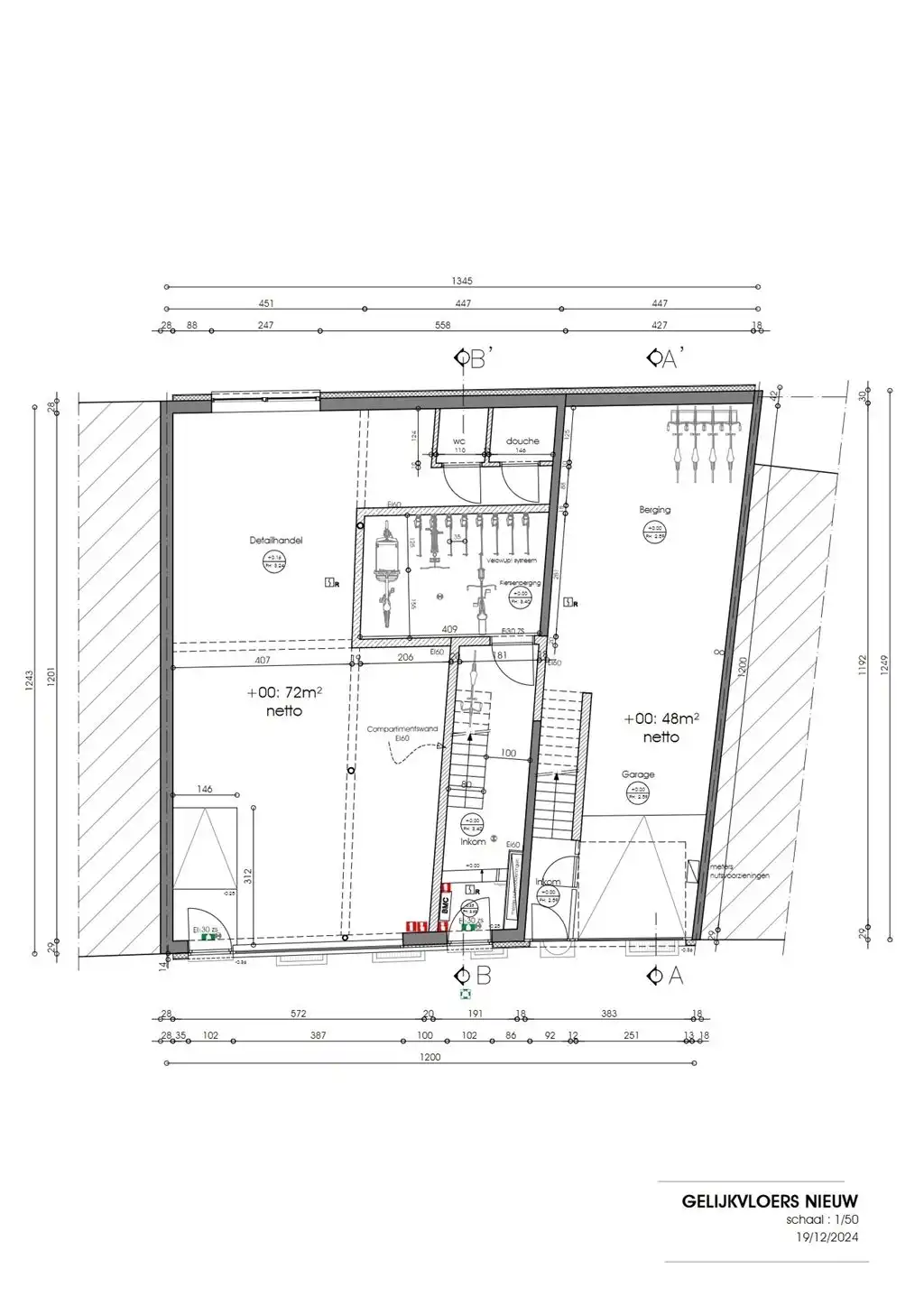
Ruim handels gelijkvloers van ca 81m² in opkomende buurt, ruime kelder van ca 52m², aparte wc en douche
Op zoek naar een plek voor je nieuwe zaak; kantoor, praktijk of atelier? In dit ruime handels gelijkvloers aan de Lange Slachterijstraat heb je een mooie oppervlakte van 81m² én de vrijheid om alles naar eigen smaak en noden in te richten. Met z'n casco-afwerking bepaal jij het concept, de look én de indeling. Inclusief aparte douche, wc en een extra kelderverdieping met diverse mogelijkheden.
Vrijheid, ruimte & bereikbaarheid
Dit gelijkvloers is ideaal voor wie een project op maat zoekt, op een locatie die toekomstpotentieel uitstraalt. De Lange Slachterijstraat ligt in een wijk in volle ontwikkeling, vlakbij Park Spoor Noord en met een vlotte verbinding richting centrum, Ring en invalswegen in elke windrichting. Om de hoek vind je alle grote supermarkten en horeca die je maar wenst.
Slachthuissite
Denk: pleinen en parken die verbonden worden met elkaar maar ook met de ruimere omgeving en de buurt een groen en publiek karakter geven. https://www.antwerpenmorgen.be/nl/projecten/slachthuissite-noordschippersdok-lobroekdok/over
Energie
- EPC Certificaat: 11002-G-OMV_2021186123/EP13566/A001/D01/SD001
- E-peil: E46
- Verwarming: Gas
- Beglazing: Standaard dubbel
Op de kaart

Financieel
| Prijs | |
|---|---|
| Kadastraal inkomen (niet geïndexeerd) | € 0 |
| Kadastraal inkomen (geïndexeerd) | € 0 |
Berekening kosten
Je aankoopkosten? Die heb je snel berekend via de knop hieronder.
Bijkomende info
Gebouw
| Bouwjaar | 1919 |
|---|---|
| Staat | Op te frissen |
| Bouwcertificaat | Nee |
| Bewoonbaar (m²) | 81 |
| Verdieping | 0 |
| Badkamers | 0 |
| Slaapkamers | 0 |
| Verdiepingen | 0 |
| Garages | 0 |
| Parkeerplaatsen | 0 |
| Doucheruimtes | 0 |
| Toiletten | 0 |
Faciliteiten
| Keuken uitrusting | Basis |
|---|---|
| Materiaal ramenomlijstingen | Aluminium |
| Beglazing | Standaard dubbel |
| Brandstof primaire verwarming | Gas |
| Elektrisch keuringsattest | Ja |
Perceel
| Overstromingsgevoelig | Geen |
|---|---|
| P-score | D |
| G-score | D |
| Voorkeurrecht | Ja |
| Totale oppervlakte (m²) | 96 |
| Bebouwde oppervlakte (m²) | 0 |
| Tuin oppervlakte (m²) | 0 |
| Oppervlakte terras (m²) | 0 |
| Oriëntatie tuin | West |
Uitrusting
| Investeringspand | Nee |
|---|---|
| Geschikt voor praktijk | Nee |
| Parking | Nee |
| Garage | Nee |
| Thuiskantoor | Nee |
| Kelder | Nee |
| Zolder | Nee |
| Tuin | Nee |
| Terras | Nee |
| Lift | Nee |
| Rioolaansluiting | Nee |
| Gasaansluiting | Nee |
| Wateraansluiting | Nee |
| Elektriciteitsaansluiting | Nee |
| TV aansluiting | Nee |
| Internetaansluiting | Nee |
| Telefoonaansluiting | Nee |
Appartementsblok
| Lift | Nee |
|---|