Ruime Handelsgelijkvloers met grote visibiliteit
Een pand van Immo Vasta
Jouw zoektocht
Overzicht
- 110 m² bewoonbaar
- 145 m² grond
- 1 Toilet(ten)
Beschrijving
Op zoek naar een ruime handelszaak met veel passage? Deze gelijkvloerse commerciële ruimte van ca. 110 m² combineert een grote open ruimte, hoge plafonds en een topligging vlakbij het Sint-Jansplein, het Centraal Station en de Rooseveltplaats. Ideaal voor een dagzaak die gezien mag worden!
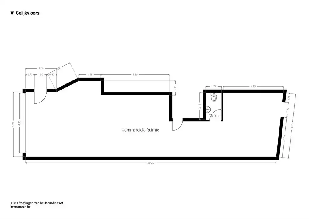
Ruimte & mogelijkheden
Deze handelsruimte bevindt zich op het gelijkvloers van een kleinschalig gebouw met een charmante art-deco gevel. Vooraan geniet je van een groot etalageraam, wat zorgt voor maximale visibiliteit en een sterke commerciële uitstraling. Dankzij de ligging in een levendige straat met veel passage springt jouw zaak hier meteen in het oog.
De ruimte zelf is bijzonder ruim en open, afgewerkt met een lichte laminaatvloer en hoge plafonds van maar liefst 3,3 meter. Dit geeft niet alleen een aangenaam ruimtelijk gevoel, maar biedt ook praktische voordelen voor inrichting, stockage of creatieve invulling. Achteraan is er voldoende plaats voorzien om eventueel een keuken of werkruimte te installeren, volledig naar eigen noden en concept.
Via aparte deuren heb je toegang tot zowel de algemene delen als een afzonderlijke toiletruimte. Deze laatste is volledig betegeld en uitgerust met een toilet en wastafel — praktisch en netjes afgewerkt.
Levendige buurt met alles binnen handbereik
Gelegen in een bruisende wijk in Antwerpen Noord, zit je hier op wandelafstand van het Sint-Jansplein, een hotspot met tal van eetgelegenheden en internationale handelszaken. Ook de Paardenmarkt en het hippe Eilandje liggen vlakbij.
Mobiliteit is hier een grote troef: met het Centraal Station en de Rooseveltplaats op korte afstand heb je toegang tot een uitgebreid netwerk van trams en bussen. Ideaal voor zowel klanten als medewerkers.
Energie
![]() |
- EPC Certificaat: 20260409-0003838203-KNR-1
- E-peil: E0
- Verwarming: Gas
- Beglazing: Standaard dubbel
Op de kaart

Financieel
| Prijs | |
|---|---|
| Kadastraal inkomen (niet geïndexeerd) | € 0 |
| Kadastraal inkomen (geïndexeerd) | € 0 |
Berekening kosten
Je aankoopkosten? Die heb je snel berekend via de knop hieronder.
Bijkomende info
Gebouw
| Staat | Goed onderhouden |
|---|---|
| Bouwcertificaat | Nee |
| Bewoonbaar (m²) | 110 |
| Verdieping | 0 |
| Badkamers | 0 |
| Slaapkamers | 0 |
| Verdiepingen | 4 |
| Garages | 0 |
| Parkeerplaatsen | 0 |
| Doucheruimtes | 0 |
| Toiletten | 1 |
Faciliteiten
| Beglazing | Standaard dubbel |
|---|---|
| Brandstof primaire verwarming | Gas |
| Elektrisch keuringsattest | Nee |
Perceel
| Overstromingsgevoelig | Geen |
|---|---|
| P-score | C |
| G-score | C |
| Voorkeurrecht | Ja |
| Totale oppervlakte (m²) | 145 |
| Bebouwde oppervlakte (m²) | 0 |
| Tuin oppervlakte (m²) | 0 |
| Oppervlakte terras (m²) | 0 |
| Oriëntatie tuin | Oost |
Uitrusting
| Investeringspand | Nee |
|---|---|
| Geschikt voor praktijk | Nee |
| Parking | Nee |
| Garage | Nee |
| Thuiskantoor | Ja |
| Kelder | Nee |
| Zolder | Nee |
| Tuin | Nee |
| Terras | Nee |
| Lift | Nee |
| Rioolaansluiting | Ja |
| Gasaansluiting | Ja |
| Wateraansluiting | Ja |
| Elektriciteitsaansluiting | Ja |
| TV aansluiting | Nee |
| Internetaansluiting | Nee |
| Telefoonaansluiting | Nee |
Appartementsblok
| Aantal verdiepingen | 4 |
|---|---|
| Lift | Nee |
