Unieke, energiezuinige woning met dakterras
Een pand van Immo Vasta
Overzicht
- 131 m² bewoonbaar
- 48 m² grond
- 3 Slaapkamer(s)
- 2 Badkamer(s)
- 2 Toilet(ten)
- 42 Garage(s)
Beschrijving
In deze her-opgewaardeerde buurt ontdek je deze kwaliteitsvolle woning die werd gerenoveerd volgens de regels van de kunst met oog voor detail en smaak. Alles is tot in de puntjes vernieuwd. Je woont hier bovendien op een toplocatie met winkels, openbaar vervoer en het bruisende stadsleven op wandelafstand.
Leefkeuken met terras with a view
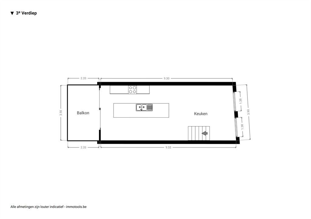
Bovenaan, op de derde verdieping, bevindt zich de volledig uitgeruste leefkeuken met kookeiland, nieuwe Siemens-toestellen (topkwaliteit gegarandeerd) en veel opbergruimte. Hier leef je letterlijk op het ritme van de zon: via het schuifraam stap je meteen op het zuidgerichte terras met lichte buitentegels. Een heerlijke plek om te ontbijten of ’s avonds de zon te zien ondergaan.
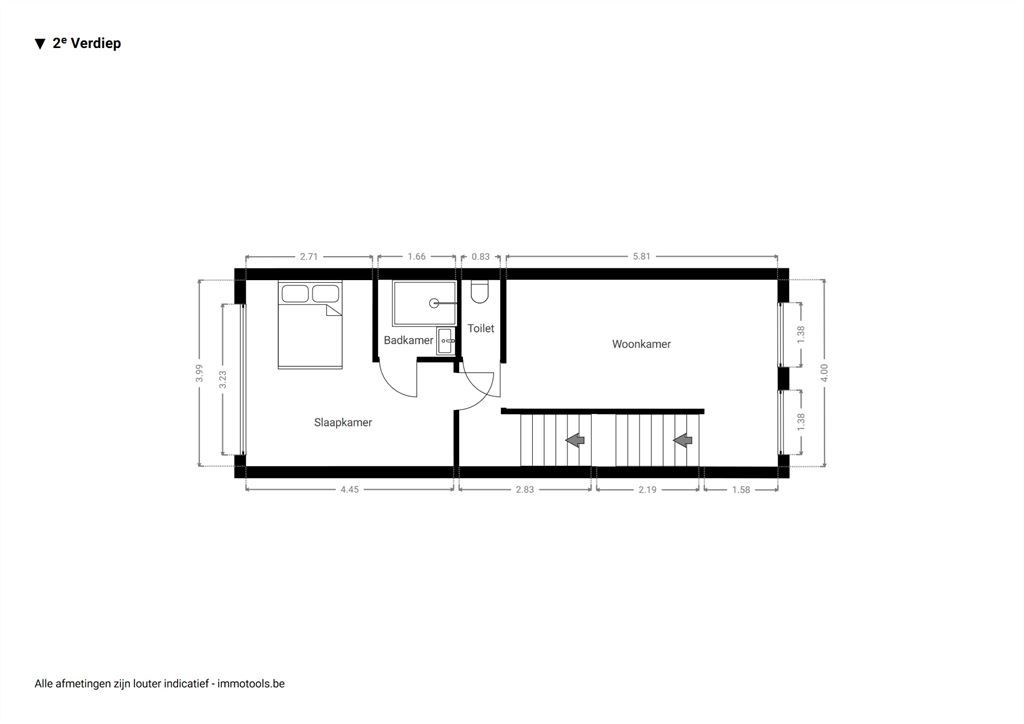
Masterbedroom én ensuite badkamer
Op de tweede verdieping ligt de ruime master bedroom (18 m²) en aansluitende badkamer met walk in regendouche en wastafel. Ook hier trekken de beige wandtegels en de donkere vloer de moderne lijn door. Daarnaast vind je op deze verdieping nog een gezellige, lichtrijke leefruimte aan de voorzijde van het huis.
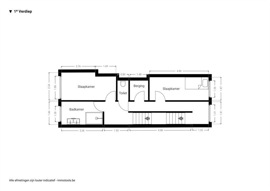
De eerste verdieping is praktisch ingedeeld met twee slaapkamers, een stijlvolle badkamer en technische ruimte. De badkamer is afgewerkt met XL wandtegels, een inloopdouche met regendouchekop en een groot, dubbel lavabomeubel. De slaapkamers hebben allebei een onderhoudsvriendelijke parkettegel en grote raampartijen. Verder is er nog een apart toilet met handenwasser en een technische ruimte met de recente Vaillant-ketel en het ventilatiesysteem.
Multifunctionele garage
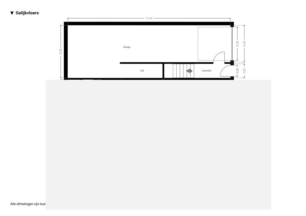
Op het gelijkvloers van de woning vind je een ruime inpandige garage van 42 m² met nieuwe automatische poort, betegelde vloer en extra bergruimte onder de trap. Je kan hier makkelijk je auto kwijt en dan nog heb je meer dan plaats genoeg voor fietsen, gereedschap of andere spullen. Evengoed geef je het een andere invulling als atelier, speelkamer of work out room.
Twee minuten van Park Spoor Noord
Met een Mobiscore van 9,3 kan je onmogelijk nog bereikbaarder wonen in Antwerpen. Trams, bussen, metro, fietspaden en Velo-stations, de Singel en de Ring: allemaal vlakbij. Je woont hier op twee minuten van Park Spoor Noord. Dé ideale plek om te gaan joggen, kinderen te laten ravotten in de fontein of een terrasje te doen. In de omliggende straten heb je supermarkten, buurtwinkels en gezellige, authentieke plekken om iets te eten of te drinken.
Slachthuissite
Denk: pleinen en parken die verbonden worden met elkaar maar ook met de ruimere omgeving en de buurt een groen en publiek karakter geven. https://www.antwerpenmorgen.be/nl/projecten/slachthuissite-noordschippersdok-lobroekdok/over
Energie
![]() |
- EPC Certificaat: 11002-G-OMV_2021186123/EP13566/A002/D01/SD001
- Energieverbruik: 48 kWh/m²/jaar
- E-peil: E52
- Verwarming: Gas
- Beglazing: Standaard dubbel
Op de kaart

Financieel
Prijs | |
---|---|
Kadastraal inkomen (niet geïndexeerd) | € 1.078 |
Kadastraal inkomen (geïndexeerd) | € 0 |
Berekening kosten
Je aankoopkosten? Die heb je snel berekent via de knop hieronder.
Bijkomende info
Gebouw
Bouwjaar | 1919 |
---|---|
Staat | Goed onderhouden |
Bouwcertificaat | Nee |
Bewoonbaar (m²) | 131 |
Verdieping | 0 |
Badkamers | 2 |
Slaapkamers | 3 |
Verdiepingen | 3 |
Garages | 42 |
Parkeerplaatsen | 0 |
Doucheruimtes | 0 |
Toiletten | 2 |
Faciliteiten
Keuken uitrusting | Luxueus uitgerust |
---|---|
Materiaal ramenomlijstingen | Aluminium |
Beglazing | Standaard dubbel |
Brandstof primaire verwarming | Gas |
Elektrisch keuringsattest | Ja |
Perceel
Overstromingsgevoelig | Geen |
---|---|
P-score | C |
G-score | C |
Voorkeurrecht | Ja |
Totale oppervlakte (m²) | 48 |
Bebouwde oppervlakte (m²) | 0 |
Tuin oppervlakte (m²) | 0 |
Oppervlakte terras (m²) | 11 |
Oriëntatie tuin | Zuid |
Uitrusting
Investeringspand | Nee |
---|---|
Geschikt voor praktijk | Nee |
Parking | Nee |
Garage | Ja |
Thuiskantoor | Nee |
Kelder | Nee |
Zolder | Nee |
Tuin | Nee |
Terras | Ja |
Lift | Nee |
Rioolaansluiting | Nee |
Gasaansluiting | Nee |
Wateraansluiting | Nee |
Elektriciteitsaansluiting | Nee |
TV aansluiting | Nee |
Internetaansluiting | Nee |
Telefoonaansluiting | Nee |