Te renoveren woning met authentieke elementen
€ 249.000
Een pand van Immo Vasta
Overzicht
- 153 m² bewoonbaar
- 63 m² grond
- 5 Slaapkamer(s)
- 1 Toilet(ten)
- 1 Tuin
Beschrijving
Op zoek naar een ruime stadswoning met potentieel? Deze charmante woning in de Touwstraat 44 te Antwerpen biedt enorm veel mogelijkheden voor wie houdt van karakter, hoge plafonds en originele details. De woning vraagt renovatie, maar vormt de perfecte basis om een prachtige gezinswoning te creëren op een toplocatie nabij Park Spoor Noord.
De inkomhal maakt meteen indruk met haar hoge plafonds, sierlijke moulures en originele tegelvloer in kleurrijk patroon. De houten lambrisering en dubbele deuren naar de leefruimte benadrukken het authentieke karakter van het huis en ademen de sfeer van weleer.
Authenticiteit, hoge plafonds en stadsterras
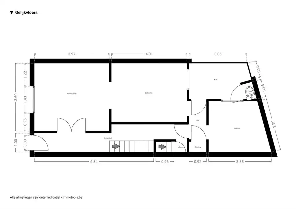
De gelijkvloerse verdieping bestaat uit een woonkamer en eetkamer met houten vloer en klassieke schouw. De hoge plafonds zorgen voor een ruimtelijk gevoel, en dankzij de dubbele deuren geniet je van een open indeling. Deze verdieping biedt ruimte voor een gezellige zithoek én een ruime eetplaats. De keuken bevindt zich achteraan de woning en kan volledig naar wens worden ingericht. Aansluitend ligt een kleine koer, die mits wat vernieuwing kan worden omgevormd tot een gezellig stadsterras. Dit biedt de mogelijkheid om binnen en buiten mooi met elkaar te verbinden.
Ruime slaapverdiepingen en badkamer met potentieel
Op de tussenverdieping bevindt zich de huidige badkamer met douche en lavabo. Er is voldoende ruimte om deze om te vormen tot een comfortabele, moderne badkamer met bad en extra bergruimte.
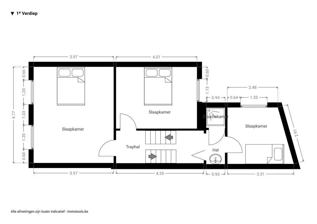
Op de eerste verdieping bevinden zich twee grote slaapkamers, elk met hoge plafonds, originele binnendeuren en authentieke klinken.
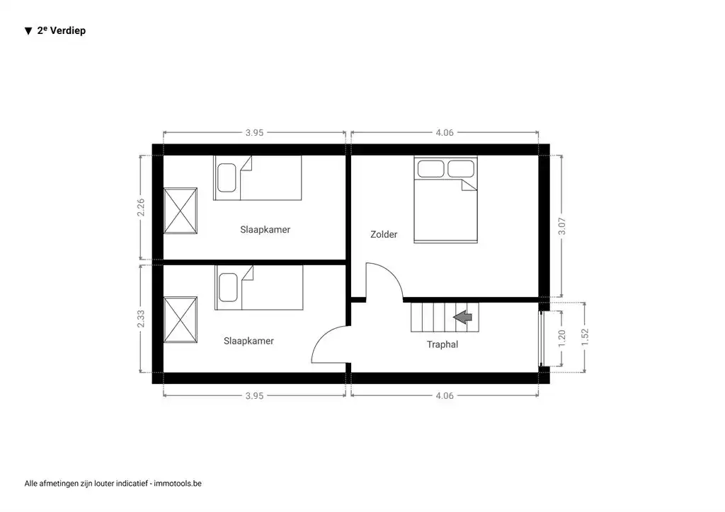
De tweede verdieping telt drie extra kamers — ideaal als kinderkamers, bureau of hobbyruimte. Eén van deze kamers kan eventueel worden omgevormd tot een tweede badkamer.
Goede ligging met alles binnen handbereik
De woning ligt in Antwerpen-Noord, in de nabijheid van Park Spoor Noord en het Rivierenhof. Openbaar vervoer, winkels, scholen en velo-stations bevinden zich op wandelafstand. Dankzij de vlotte verbinding met de Ring woon je hier centraal én rustig tegelijk.
Energie
![]() |
- EPC Certificaat: 0003758962-RES-1
- Energieverbruik: 525 kWh/m²/jaar
- E-peil: E0
- Verwarming: Gas
- Beglazing: Enkel
Extra budget nodig voor je renovatie?

Op de kaart

Financieel
| Prijs | |
|---|---|
| Kadastraal inkomen (niet geïndexeerd) | € 500 |
| Kadastraal inkomen (geïndexeerd) | € 0 |
Berekening kosten
Je aankoopkosten? Die heb je snel berekent via de knop hieronder.
Bijkomende info
Gebouw
| Staat | Op te frissen |
|---|---|
| Bouwcertificaat | Nee |
| Bewoonbaar (m²) | 153 |
| Verdieping | 0 |
| Badkamers | 0 |
| Slaapkamers | 5 |
| Verdiepingen | 2 |
| Garages | 0 |
| Parkeerplaatsen | 0 |
| Doucheruimtes | 0 |
| Toiletten | 1 |
Faciliteiten
| Materiaal ramenomlijstingen | Hout |
|---|---|
| Beglazing | Enkel |
| Brandstof primaire verwarming | Gas |
| Elektrisch keuringsattest | Nee |
Perceel
| Overstromingsgevoelig | Geen |
|---|---|
| P-score | C |
| G-score | C |
| Voorkeurrecht | Ja |
| Totale oppervlakte (m²) | 63 |
| Bebouwde oppervlakte (m²) | 0 |
| Tuin oppervlakte (m²) | 6 |
| Oppervlakte terras (m²) | 0 |
| Oriëntatie tuin | Zuidwest |
Uitrusting
| Investeringspand | Nee |
|---|---|
| Geschikt voor praktijk | Nee |
| Parking | Nee |
| Garage | Nee |
| Thuiskantoor | Nee |
| Kelder | Ja |
| Zolder | Nee |
| Tuin | Ja |
| Terras | Nee |
| Lift | Nee |
| Rioolaansluiting | Ja |
| Gasaansluiting | Ja |
| Wateraansluiting | Ja |
| Elektriciteitsaansluiting | Ja |
| TV aansluiting | Ja |
| Internetaansluiting | Ja |
| Telefoonaansluiting | Ja |



