Brede autostaanplaats op centrale locatie
€ 26.000
Een pand van Immo Vasta
Jouw zoektocht
Overzicht
Beschrijving
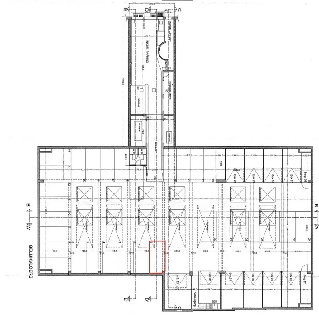
Deze bovengrondse parkeermogelijkheid biedt een veilige en handige oplossing voor het parkeren van uw voertuig. Deze bovengrondse autostaanplaats kent een breedte van 2,5 m en een diepte van 4.98 m. De totale oppervlakte van een autostaanplaats is 11,5 m², wat ruim is voor de meeste personenwagens.
De toegang tot de parkeergarage wordt geregeld door een automatische poort met een breedte van 4,60 m en een maximale hoogte van 2,90 m. Eenmaal binnen, is de doorgang van de garage dezelfde breedte, waardoor het eenvoudig manoeuvreren is om vervolgens uw auto veilig te parkeren.
Veiligheid is een belangrijk aspect van deze parkeergarage. Daarom zijn er verschillende camera's aanwezig en is het dak recentelijk vernieuwd. Brandveiligheid wordt ook gegarandeerd met brandhaspels en brandblusapparaten.
Vlakbij het Park Spoor Noord en toch zo de stad in
Deze garage bevindt zich in de Seefhoek-wijk én vlakbij het Park Spoor Noord. Tegelijkertijd ben je van hieruit toch zo de stad in, met de tram die om de vijf minuten passeert.
Energie
- E-peil: E0
- Beglazing: Onbekend
Op de kaart

Financieel
| Prijs | |
|---|---|
| Kadastraal inkomen (niet geïndexeerd) | € 0 |
| Kadastraal inkomen (geïndexeerd) | € 0 |
Berekening kosten
Je aankoopkosten? Die heb je snel berekend via de knop hieronder.
Bijkomende info
Gebouw
| Staat | Goed onderhouden |
|---|---|
| Bouwcertificaat | Nee |
| Verdieping | 0 |
Faciliteiten
| Keuken uitrusting | Basis |
|---|---|
| Elektrisch keuringsattest | Nee |
Perceel
| Overstromingsgevoelig | Geen |
|---|---|
| P-score | A |
| G-score | A |
| Voorkeurrecht | Nee |
| Bebouwde oppervlakte (m²) | 0 |
| Tuin oppervlakte (m²) | 0 |
| Oppervlakte terras (m²) | 0 |
Uitrusting
| Investeringspand | Nee |
|---|---|
| Geschikt voor praktijk | Nee |
| Parking | Nee |
| Garage | Nee |
| Thuiskantoor | Nee |
| Kelder | Nee |
| Zolder | Nee |
| Tuin | Nee |
| Terras | Nee |
| Lift | Nee |
| Rioolaansluiting | Nee |
| Gasaansluiting | Nee |
| Wateraansluiting | Nee |
| Elektriciteitsaansluiting | Ja |
| TV aansluiting | Nee |
| Internetaansluiting | Nee |
| Telefoonaansluiting | Nee |