Nieuw  Virtual tour 
Luxe appartement (2023) met terras & uitzicht op Schelde – EPC A+
 € 468.000  
Een pand van M3 makelaars Zwijndrecht
Overzicht
- 93 m² bewoonbaar
- 93 m² grond
- 2 Slaapkamer(s)
- 1 Badkamer(s)
- 1 Toilet(ten)
Beschrijving
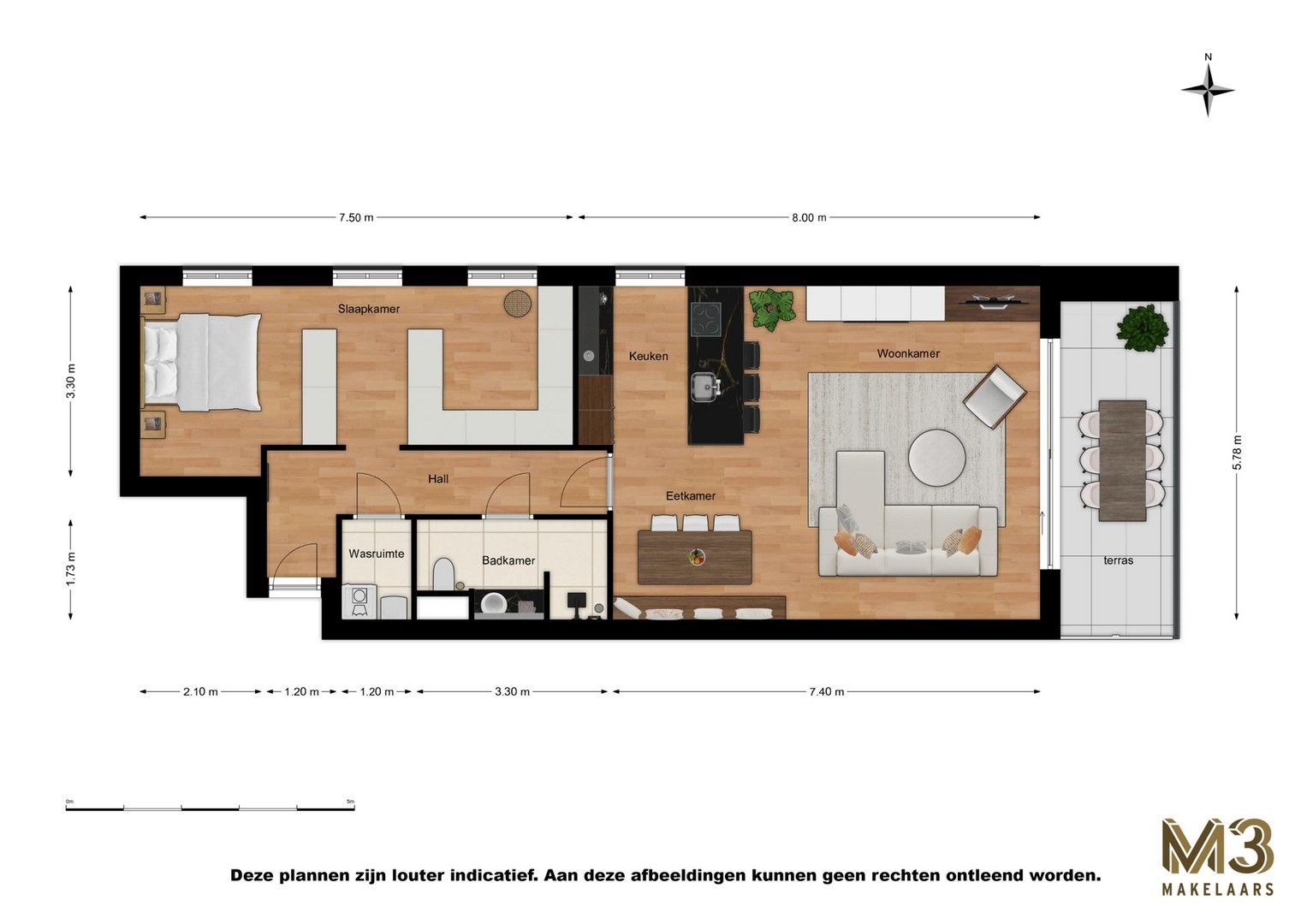
Welkom in dit luxueuze appartement op de eerste verdieping van een kleinschalig gebouw, bereikbaar met de lift. Binnenkomend valt meteen de ruime leefruimte (40 m²) op, met stijlvolle zithoek, bio-ethanol haard en maatwerk TV-meubel. Vanuit de woonkamer stap je zo het zuidgericht terras (12 m²) op, met uitzicht op de beiaard van Burcht en de Sint-Martinuskerk. De open keuken is een echte eyecatcher: uitgerust met Bora-inductie, Quooker met bruisfunctie, stoomoven, koelkast en diepvries – alles voor een "échte kok"! De master bedroom biedt uitzicht op de Schelde, terwijl de tweede slaapkamer voorzien is van maatkasten en een ingebouwd logeerbed. De badkamer ademt luxe uit met inloopdouche, maatwerk en verfijnd koper kraanwerk. Extra troeven: aparte berging, glasvezel, ventilatie C+, warmtepompboiler, 4 zonnepanelen, alarmsysteem en conforme elektriciteit. Ondergrondse autostaanplaats optioneel (€ 25.000). Technisch: Bouwjaar 2023 – EPC -5 kWh/m² (A+) – geen renovatieverplichting – G&P-score A&A – Vg, Wg, Gmo, Gvkr, Vv – verkoop onder registratierechten. Hier woon je niet, hier beleef je élke dag. Wacht niet langer en plan vandaag nog op 03 369 70 33 of 0465 00 38 27 een bezoek en ontdek dit unieke appartement!
Welkom in dit luxueuze appartement op Dorpstraat 32 b0102, 2070 Burcht. Gelegen op de eerste verdieping van Residentie "De Vrede", biedt dit appartement alles wat u zoekt: een perfecte combinatie van elegantie, duurzaamheid en comfort.
Kenmerken van het appartement:
Ruime woonkamer van 40 m² met elegante zithoek, op maat gemaakt TV-meubel en bio-ethanol open haard
Royaal terras van 12 m² met prachtig uitzicht op de beiaard van Burcht en Sint-Martinuskerk
Luxe open keuken met Bora-inductiefornuis, Quooker-kraan, ingebouwde stoomoven, magnetron, koelkast en diepvries
2 slaapkamers: master bedroom met uitzicht over de Schelde, en logeerkamer met op maat gemaakte kasten en bed
Badkamer met inloopdouche, lavabo, op maat gemaakte inbouwkasten en toilet in luxe afwerking
Dressing en praktische berging met aansluitingen voor glasvezelinternet
Duurzaamheid en energie-efficiëntie:
EPC A+, met een energiezuinig label en 4 zonnepanelen (1600 kWp)
Warmtepompboiler voor vloerverwarming en efficiënte energievoorziening
Conform elektriciteitsattest
Renovatieplicht niet van toepassing
Extra voordelen:
Ondergrondse autostaanplaats optioneel aan te kopen aan 25 000 €.
Lift in het gebouw
Geen renovatieverplichting
Wacht niet langer! Plan vandaag nog op 03 369 70 33 of 0465 00 38 27 een exclusief bezoek en ontdek dit unieke appartement!
Kenmerken van het appartement:
Ruime woonkamer van 40 m² met elegante zithoek, op maat gemaakt TV-meubel en bio-ethanol open haard
Royaal terras van 12 m² met prachtig uitzicht op de beiaard van Burcht en Sint-Martinuskerk
Luxe open keuken met Bora-inductiefornuis, Quooker-kraan, ingebouwde stoomoven, magnetron, koelkast en diepvries
2 slaapkamers: master bedroom met uitzicht over de Schelde, en logeerkamer met op maat gemaakte kasten en bed
Badkamer met inloopdouche, lavabo, op maat gemaakte inbouwkasten en toilet in luxe afwerking
Dressing en praktische berging met aansluitingen voor glasvezelinternet
Duurzaamheid en energie-efficiëntie:
EPC A+, met een energiezuinig label en 4 zonnepanelen (1600 kWp)
Warmtepompboiler voor vloerverwarming en efficiënte energievoorziening
Conform elektriciteitsattest
Renovatieplicht niet van toepassing
Extra voordelen:
Ondergrondse autostaanplaats optioneel aan te kopen aan 25 000 €.
Lift in het gebouw
Geen renovatieverplichting
Wacht niet langer! Plan vandaag nog op 03 369 70 33 of 0465 00 38 27 een exclusief bezoek en ontdek dit unieke appartement!
Energie
- EPC Certificaat: 11056-G-SV2017/0035/EP14854/A001/D01/SD005
- E-peil: E-3
- Beglazing: Standaard dubbel
Op de kaart

Financieel
| Prijs | |
|---|---|
| Kadastraal inkomen (niet geïndexeerd) | € 873 | 
Berekening kosten
Je aankoopkosten? Die heb je snel berekent via de knop hieronder.
Bijkomende info
Gebouw
| Bouwjaar | 2023 | 
|---|---|
| Staat | Zo goed als nieuw | 
| Bewoonbaar (m²) | 93 | 
| Verdieping | 1 | 
| Badkamers | 1 | 
| Slaapkamers | 2 | 
| Verdiepingen | 0 | 
| Garages | 0 | 
| Parkeerplaatsen | 1 | 
| Toiletten | 1 | 
Faciliteiten
| Keuken uitrusting | Luxueus uitgerust | 
|---|---|
| Beglazing | Standaard dubbel | 
| Septische tank | Ja | 
Perceel
| P-score | A | 
|---|---|
| G-score | A | 
| Totale oppervlakte (m²) | 93 | 
| Bebouwde oppervlakte (m²) | 0 | 
| Oppervlakte terras (m²) | 11 | 
Vergunning
| Verkavelingsvergunning | Geen beschikbaar | 
|---|
Uitrusting
| Investeringspand | Nee | 
|---|---|
| Parking | Ja | 
| Garage | Nee | 
| Opslagruimte | Ja | 
| Terras | Ja | 
| Lift | Ja | 
| Rioolaansluiting | Ja | 
| Gasaansluiting | Ja | 
| Wateraansluiting | Ja | 
| Elektriciteitsaansluiting | Ja | 
| Internetaansluiting | Ja | 
| Telefoonaansluiting | Ja | 
| Zonnepanelen | Ja | 
| Zonneboiler | Nee | 
| Alarm | Nee | 
| Videofoon | Ja | 
| Grondwaterput | Nee | 
Appartementsblok
| Lift | Ja | 
|---|---|
| Intercom | Ja | 
Een pand van
M3 makelaars Zwijndrecht
 Uw betrouwbare partner bij de verkoop van vastgoed  in en rond Antwerpen en het Waasland. 
 Als erkende vastgoedmakelaar met kantoren in en rond Antwerpen en het Waasland, zijn wij gespecialiseerd in het begeleiden van verkopers bij de verkoop van hun woning of appartement. Onze uitgebreide dienstverlening omvat alle aspecten van het verkoopproces, van het opstellen van het verkoopdossier tot het afsluiten van de verkoopovereenkomst. Wij zorgen voor een doeltreffende promotie van uw eigendom op diverse kanalen en staan garant voor persoonlijk advies en grondige marktkennis.
Bij ons kunt u rekenen op een sterke lokale verankering en een à la carte dienstverlening. Wij bieden u de keuze uit drie verschillende menu's die elk op maat worden samengesteld om aan uw specifieke behoeften te voldoen. Zo kunt u optimaal profiteren van onze expertise en ondersteuning bij de verkoop van uw eigendom.
Onze grootste troef is dat wij u alle zorgen uit handen nemen en u ontzorgen bij het volledige verkoopproces. Wij werken nauw met u samen en zorgen voor een transparante en open communicatie gedurende het gehele proces. 
Bij ons bent u verzekerd van een betrouwbare en professionele aanpak bij de verkoop van uw woning of appartement.
Neem snel contact met onze lokale makelaars. 
 2070 - Burcht Dorpstraat 32_bus0102_27/10 
Leer meer over vastgoed
 Nieuw 
 22 October 2025 
Hoeveel kan ik lenen om een huis te kopen?
 11 June 2025 
Huis kopen met bouwovertreding? Dit moet je weten
 11 May 2025 
Renoveren? Vraag je Mijn VerbouwPremie aan
 22 April 2025