Instapklaar appartement met loftallures
€ 274.000
Een pand van Immo Vasta
Overzicht
- 116 m² bewoonbaar
- 240 m² grond
- 2 Slaapkamer(s)
- 1 Badkamer(s)
- 1 Toilet(ten)
Beschrijving
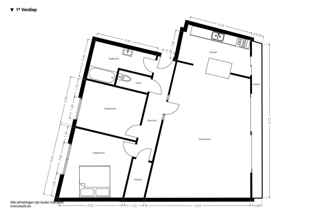
Fan van licht, ruimte en een tikkeltje industriële flair? Dit charmante hoekappartement combineert een stoer loftgevoel met industriële accenten en een overvloed aan licht, dankzij hoge plafonds en grote ramen. Je krijgt hier een royale leefruimte, 2 slaapkamers, een prachtig afgewerkte keuken en veel bergruimte, allemaal op een toplocatie in het hart van Burcht, vlak bij de Schelde, winkels en openbaar vervoer.
Licht, ruimte en industriële charme
Van zodra je binnenkomt in de inkomhal, valt het op: hier zit ruimte en stijl. Parketlaminaat, natuurstenen dorpels, en een slimme indeling leiden je vlot naar de leefruimte van maar liefst 49m². De eethoek en zithoek vloeien mooi in elkaar over, de grote raampartijen zorgen voor licht, en de zwarte industriële binnendeuren versterken het karakter. De lattenwand tegen de muur en het hangend meubel voegen een moderne toets toe.
De open keuken van is een droom voor wie graag kookt én gasten ontvangt. Je hebt hier niet enkel een 5-pitsgasvuur en meerdere ovens van het merk Cuisinemaster ter beschikking, maar ook een werkblad in Belgische blauwe steen, een dubbele wasbak met afneembare kraan, een glazen spatwand en zelfs een ingebouwd wijnrek. De houten afwerking maakt het geheel warm en uitnodigend. Dankzij het schuifraam met vliegenraam sta je zo op het terras aan de straatzijde.
Twee slaapkamers en verzorgde badkamer
De 2 ruime slaapkamers liggen aan de rustige achterzijde. Ze zijn beide voorzien van verluchtingsroosters, vliegenramen, elektronische rolluiken, parketlaminaat en HR-dubbelglas in aluminium profielen. De badkamer is strak afgewerkt met zwarte en kiezelmozaïek tegels, en is voorzien van een dubbel ligbad-douchecombinatie, wastafelmeubel en ingebouwde condensatieketel.
Wonen in het hart van Burcht
Je woont hier supercentraal, met alle winkels, horeca en openbaar vervoer op wandelafstand. Bovendien zit je vlak bij de Schelde voor een wandeling of fietstocht, én ben je in geen tijd in het centrum van Antwerpen.
Energie
![]() |
- EPC Certificaat: 20250905-0003679559-RES-1
- Energieverbruik: 189 kWh/m²/jaar
- E-peil: E0
- Verwarming: Gas
- Beglazing: Standaard dubbel
Op de kaart

Financieel
| Prijs | |
|---|---|
| Kadastraal inkomen (niet geïndexeerd) | € 0 |
| Kadastraal inkomen (geïndexeerd) | € 0 |
Berekening kosten
Je aankoopkosten? Die heb je snel berekent via de knop hieronder.
Bijkomende info
Gebouw
| Staat | Goed onderhouden |
|---|---|
| Bouwcertificaat | Nee |
| Bewoonbaar (m²) | 116 |
| Verdieping | 1 |
| Gevelbreedte | 10.5 |
| Badkamers | 1 |
| Slaapkamers | 2 |
| Verdiepingen | 2 |
| Garages | 0 |
| Parkeerplaatsen | 0 |
| Doucheruimtes | 0 |
| Toiletten | 1 |
Faciliteiten
| Keuken uitrusting | Luxueus uitgerust |
|---|---|
| Materiaal ramenomlijstingen | Aluminium |
| Beglazing | Standaard dubbel |
| Brandstof primaire verwarming | Gas |
| Elektrisch keuringsattest | Nee |
Perceel
| Overstromingsgevoelig | Geen |
|---|---|
| P-score | A |
| G-score | A |
| Voorkeurrecht | Nee |
| Totale oppervlakte (m²) | 240 |
| Bebouwde oppervlakte (m²) | 0 |
| Tuin oppervlakte (m²) | 0 |
| Oppervlakte terras (m²) | 5 |
| Oriëntatie tuin | Zuidwest |
Vergunning
| Vergunning | Aanvraag ingediend |
|---|
Uitrusting
| Investeringspand | Nee |
|---|---|
| Geschikt voor praktijk | Nee |
| Parking | Nee |
| Garage | Nee |
| Thuiskantoor | Nee |
| Kelder | Nee |
| Zolder | Nee |
| Tuin | Nee |
| Terras | Ja |
| Lift | Nee |
| Rioolaansluiting | Nee |
| Gasaansluiting | Ja |
| Wateraansluiting | Ja |
| Elektriciteitsaansluiting | Ja |
| TV aansluiting | Nee |
| Internetaansluiting | Nee |
| Telefoonaansluiting | Nee |
Appartementsblok
| Aantal verdiepingen | 2 |
|---|---|
| Lift | Nee |
