Nieuw
Op zoek naar een instapklaar appartement met karakter en moderne afwerking in Deurne? Welkom Home!
Overzicht
- 2 Slaapkamer(s)
- 1 Badkamer(s)
- 1 Toilet(ten)
Beschrijving
Op een centrale ligging in Deurne, op wandelafstand van het Boekenbergpark, vinden we dit charmante appartement terug. Gelegen in een karaktervolle residentie, combineert deze woonst het beste van twee werelden: hoge plafonds en hedendaags wooncomfort dankzij een recente renovatie.
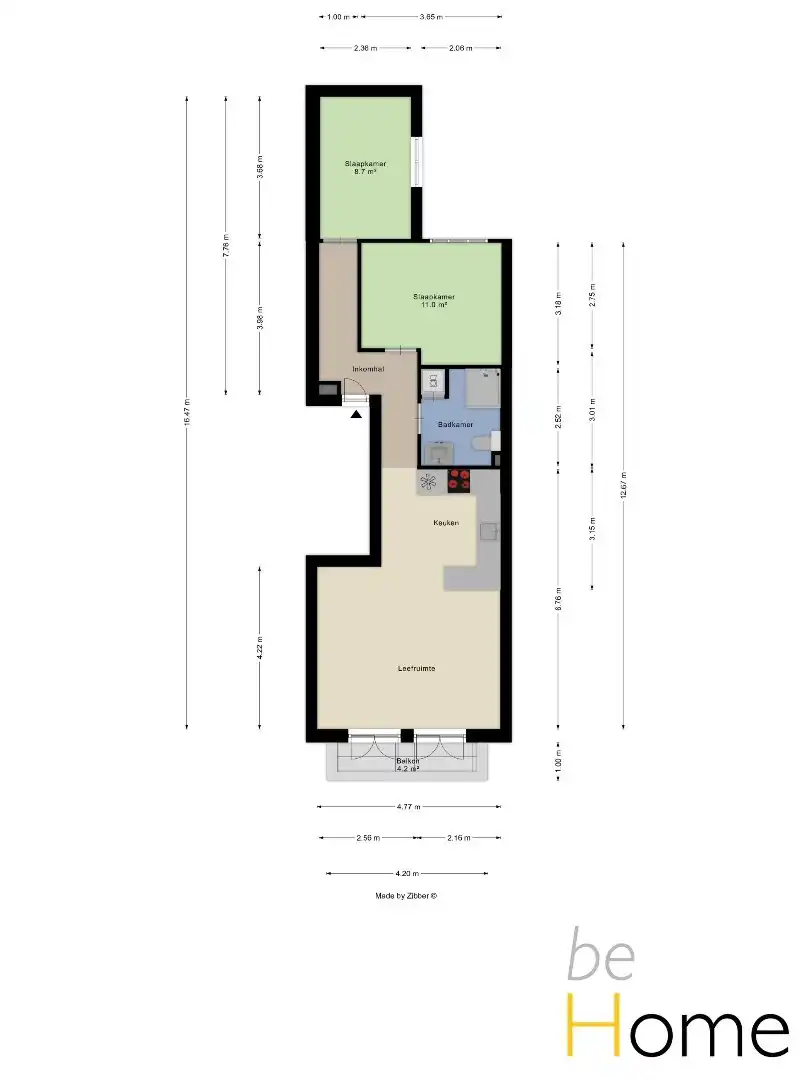
Het appartement beschikt over een aangename indeling met een inkomhal en vestiaire, een lichtrijke leefruimte met open keuken die uitgeeft op het balkon, 2 slaapkamers (11m² - 8,7m²), een moderne badkamer en een praktische kelderberging.
Ook op technisch en energetisch vlak scoort deze woning bijzonder goed:
- Vernieuwd dak (2023),
- EPC-label C, en dus geen renovatieverplichting,
- Asbestveilig,
- Elektrische installatie is conform,
- Verwarming op gas met een cv-ketel en een warmtepompunit,
- Lage gemeenschappelijke lasten: ca. 70 EUR/MAAND,
- Optie tot het huren van 2 garageboxen.
Dankzij de centrale ligging geniet je van een uitstekende bereikbaarheid, met winkels, openbaar vervoer en alle dagelijkse voorzieningen in de onmiddellijke omgeving.
Kortom: een instapklaar appartement met karakter, moderne technieken en een sterke ligging. Ideaal voor eigen bewoning of als rendabele investering!
📞 Interesse of wens je meer informatie?
Contacteer beHome via 0483 420 020 of kopen@immobehome.be, wij helpen je graag verder!
Het appartement beschikt over een aangename indeling met een inkomhal en vestiaire, een lichtrijke leefruimte met open keuken die uitgeeft op het balkon, 2 slaapkamers (11m² - 8,7m²), een moderne badkamer en een praktische kelderberging.
Ook op technisch en energetisch vlak scoort deze woning bijzonder goed:
- Vernieuwd dak (2023),
- EPC-label C, en dus geen renovatieverplichting,
- Asbestveilig,
- Elektrische installatie is conform,
- Verwarming op gas met een cv-ketel en een warmtepompunit,
- Lage gemeenschappelijke lasten: ca. 70 EUR/MAAND,
- Optie tot het huren van 2 garageboxen.
Dankzij de centrale ligging geniet je van een uitstekende bereikbaarheid, met winkels, openbaar vervoer en alle dagelijkse voorzieningen in de onmiddellijke omgeving.
Kortom: een instapklaar appartement met karakter, moderne technieken en een sterke ligging. Ideaal voor eigen bewoning of als rendabele investering!
📞 Interesse of wens je meer informatie?
Contacteer beHome via 0483 420 020 of kopen@immobehome.be, wij helpen je graag verder!
Energie
![]() |
- EPC Certificaat: 20260120-0003774645-RES-2
- Beglazing: Standaard dubbel
Op de kaart

Financieel
| Prijs | |
|---|---|
| Kadastraal inkomen (niet geïndexeerd) | € 473 |
Berekening kosten
Je aankoopkosten? Die heb je snel berekend via de knop hieronder.
Bijkomende info
Gebouw
| Bouwjaar | 1935 |
|---|---|
| Renovatie jaar | 2016 |
| Staat | Goed onderhouden |
| Is beschermd | Nee |
| Verdieping | 2 |
| Gevelbreedte | 5 |
| Kelder | 1 |
| Badkamers | 1 |
| Slaapkamers | 2 |
| Toiletten | 1 |
Ruimtes
| Kelder | 6.2 m² |
|---|---|
| Slaapkamer | 11 m² |
| Slaapkamer | 8.7 m² |
| Terras | 4.2 m² |
Faciliteiten
| Materiaal ramenomlijstingen | PVC |
|---|---|
| Beglazing | Standaard dubbel |
| Luiken | Nee |
| Primair verwarmingstype | Centrale verwarming |
| Primaire verwarmingsbron | Bodemwater warmtepomp (geothermisch) |
| Warm water type | Decentrale verwarming |
Perceel
| Overstromingsgevoelig | Geen |
|---|---|
| P-score | B |
| G-score | A |
| Voorkeurrecht | Nee |
| Oppervlakte terras (m²) | 4 |
| Oriëntatie tuin | West |
Vergunning
| Vergunning | Vergunning beschikbaar |
|---|---|
| Type gebied | Stedelijk |
Uitrusting
| Meerdere eigenaars | Nee |
|---|---|
| Geschikt als kangoeroewoning | Nee |
| Geschikt voor rolstoelgebruikers | Nee |
| Geschikt voor praktijk | Nee |
| Volledig onderkelderd | Nee |
| Parking | Nee |
| Garage | Nee |
| Thuiskantoor | Nee |
| Kelder | Ja |
| Zolder | Nee |
| Opslagruimte | Nee |
| Tuin | Nee |
| Terras | Ja |
| Lift | Nee |
| Rioolaansluiting | Nee |
| Gasaansluiting | Ja |
| Wateraansluiting | Ja |
| Elektriciteitsaansluiting | Ja |
| TV aansluiting | Nee |
| Internetaansluiting | Nee |
| Zonnepanelen | Nee |
| Zonneboiler | Nee |
| Alarm | Nee |
| Zwembad | Nee |
| Jacuzzi | Nee |
| Toonzaal | Nee |
| Ventilatie | Nee |
Appartementsblok
| Lift | Nee |
|---|---|
| Intercom | Nee |
Leer meer over vastgoed
01 March 2026
Wanneer heb ik een bouwvergunning of omgevingsvergunning nodig?
17 February 2026
Hoe breng ik een bod uit op een woning?
24 November 2025
Uitgezocht voor jouw gemeente: Hoeveel stijgt de waarde van je woning door een renovatie?
22 October 2025
