Gelijkvloers app met grote polyvalente ruimte
€ 379.000
Een pand van Immo Vasta
Overzicht
- 238 m² bewoonbaar
- 272 m² grond
- 3 Slaapkamer(s)
- 2 Badkamer(s)
- 2 Toilet(ten)
- 1 Tuin
Beschrijving
Op zoek naar een unieke woning met karakter én massa’s mogelijkheden? Dit gelijkvloers appartement met grote achterbouw, ruime garage en zonnige tuin in de gegeerde wijk Deurne-Zuid heeft het allemaal. Gelegen in een rustige straat met jonge gezinnen, vlak bij het Te Boelaerpark en tal van winkels, combineert het wonen hier rust met stedelijke flair.
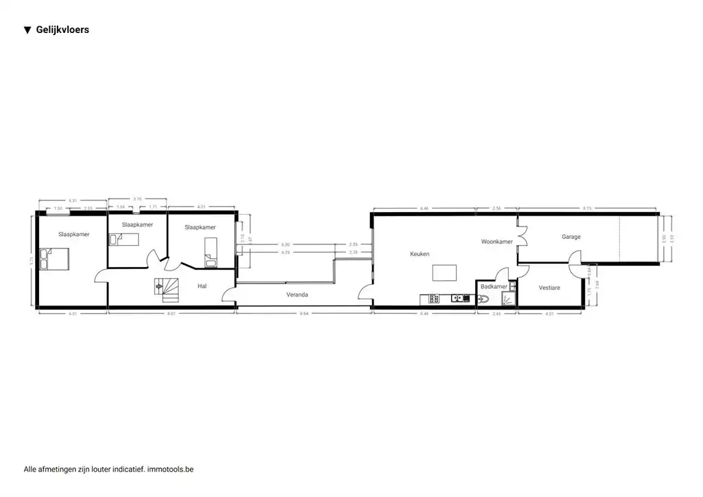
Je komt binnen in de ruime inkomhal met ingemaakte vestiairekast — praktisch én stijlvol. Van hieruit stap je de grote, lichtrijke leefruimte van maar liefst ca. 55 m² binnen, met hoge plafonds (3 meter) en grote ramen die uitkijken op de zuidgerichte tuin. De open keuken sluit er perfect bij aan en is uitgerust met een gasfornuis en oven van SMEG, dubbele inox spoelbak, AEG-vaatwasser en ruimte om een eilandje te zetten — gezelligheid verzekerd tijdens het koken. Verder vind je op het gelijkvloers ook een apart toilet met lavabomeubel, spiegel en douchecabine. Achteraan leidt een overdekte doorloopruimte naar de tuin én de multifunctionele achterbouw. Dankzij de grote openschuifbare ramen kan dit gedeelte zelfs als overdekt terras of veranda dienen — de perfecte mix tussen praktisch en gezellig.
Ruimte & mogelijkheden
De achterbouw is momenteel ingericht als aparte woongedeelte met slaapkamers, leefruimte, badkamer en wasplaats, maar kan eenvoudig aangepast worden naar wens. Ideaal voor wie extra woonruimte, een atelier, kantoor of hobbyruimte zoekt.
Beneden vind je drie ruime slaapkamers (ca. 15,5 m², 13 m² en 26,5 m²), een hal met wenteltrap en een grote leefruimte van 55 m² met authentieke schouw, lichtkoepel en blokjesparket. Daarnaast is er nog een wasruimte en een badkamer met ligbad, dubbele lavabo, raam en handdoekradiator. De polyvalentie van dit pand is ongezien — een droom voor creatievelingen, zelfstandigen of grote gezinnen.
Zuidgerichte tuin & inpandige garage
De tuin van ca. 65 m² is zuidgericht, deels verhard, deels groen en voorzien van een regenwaterton. Je geniet hier van veel privacy en zon van ’s morgens tot ’s avonds. De inpandige garage (ca. 25 m²) met poort van 3 m hoog en 2,8 m breed biedt plaats voor auto, fietsen of als extra werkruimte. Dak vernieuwd in 2023, ALU-ramen met driedubbel glas, en een structureel solide basis maken dit een zorgeloze investering.
Hip en rustig wonen in Deurne-Zuid
Met het Te Boelaerpark en Rieverenhof op wandelafstand, leef je hier midden in het groen. Om de hoek vind je buurtwinkels, supermarkten, scholen en leuke horecazaken. Trams, bussen en een velostation liggen op wandelafstand, en met de oprit van de Ring vlakbij zit je zo in het centrum of buiten de stad.
Energie
![]() |
- EPC Certificaat: 20240104-0003099084-RES-1
- Energieverbruik: 228 kWh/m²/jaar
- E-peil: E0
- Verwarming: Gas
- Beglazing: Hoog efficient driedubbel
Op de kaart

Financieel
| Prijs | |
|---|---|
| Kadastraal inkomen (niet geïndexeerd) | € 0 |
| Kadastraal inkomen (geïndexeerd) | € 0 |
Berekening kosten
Je aankoopkosten? Die heb je snel berekent via de knop hieronder.
Bijkomende info
Gebouw
| Staat | Zo goed als nieuw |
|---|---|
| Bouwcertificaat | Nee |
| Bewoonbaar (m²) | 238 |
| Verdieping | 0 |
| Gevelbreedte | 6 |
| Badkamers | 2 |
| Slaapkamers | 3 |
| Verdiepingen | 2 |
| Garages | 0 |
| Parkeerplaatsen | 0 |
| Doucheruimtes | 0 |
| Toiletten | 2 |
Faciliteiten
| Keuken uitrusting | Luxueus uitgerust |
|---|---|
| Materiaal ramenomlijstingen | Aluminium |
| Beglazing | Hoog efficient driedubbel |
| Brandstof primaire verwarming | Gas |
| Elektrisch keuringsattest | Nee |
Perceel
| Diepte (m) | 40 |
|---|---|
| Breedte (m) | 6 |
| Overstromingsgevoelig | Geen |
| P-score | B |
| G-score | B |
| Voorkeurrecht | Nee |
| Totale oppervlakte (m²) | 272 |
| Bebouwde oppervlakte (m²) | 0 |
| Tuin oppervlakte (m²) | 65 |
| Oppervlakte terras (m²) | 0 |
| Oriëntatie tuin | Zuid |
Uitrusting
| Investeringspand | Nee |
|---|---|
| Geschikt voor praktijk | Nee |
| Parking | Nee |
| Garage | Nee |
| Thuiskantoor | Nee |
| Kelder | Nee |
| Zolder | Nee |
| Tuin | Ja |
| Terras | Nee |
| Lift | Nee |
| Rioolaansluiting | Ja |
| Gasaansluiting | Ja |
| Wateraansluiting | Ja |
| Elektriciteitsaansluiting | Ja |
| TV aansluiting | Ja |
| Internetaansluiting | Ja |
| Telefoonaansluiting | Nee |
Appartementsblok
| Aantal verdiepingen | 2 |
|---|---|
| Lift | Nee |
