Ruim 3-slaapkamer appartement met luxe afwerking
€ 465.000
Een pand van Immo Vasta
Overzicht
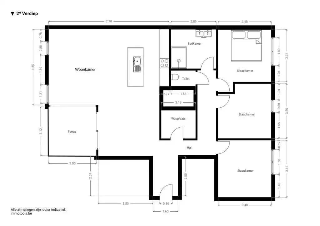
- 133 m² bewoonbaar
- 728 m² grond
- 3 Slaapkamer(s)
- 1 Badkamer(s)
- 1 Toilet(ten)
Beschrijving
Zoek je een appartement met ruimte, licht en groen in de stad? Dan is dit nieuwbouwappartement precies wat je nodig hebt. Met een bewoonbare oppervlakte van ca 133 m², drie slaapkamers, hoge plafonds, overvloedig natuurlijk licht en een terras van 9m² vind je hier alles wat doorgaans moeilijk te combineren is. Nóg troeven: mogelijkheid om aan te kopen onder 6% btw,- (mits voldaan aan voorwaarden).
Hoogwaardige afwerking
Reeds bij het binnenkomen merk je dat er veel aandacht is besteed aan afwerking en detail. De inkomhal leidt je naar het volledige appartement, waar een doorlopende houten parketvloer voor een warme en stijlvolle uitstraling zorgt. De open keuken is voorzien van kwalitatieve toestellen van Whirlpool, een inductiekookplaat en een elegant werkblad. Ze sluit aan op een lichtrijke woonkamer met grote ramen en moderne accenten, zoals zwarte inbouwspots. Het schuifraam opent naar het terras, waardoor binnen- en buitenleven moeiteloos in elkaar overvloeien.
Drie slaapkamers en luxueuze badkamer
Via de nachthal bereik je de drie slaapkamers, elk met dezelfde parketvloer, aluminium ramen met hoogrendementsglas en ingebouwde ventilatie. De badkamer straalt luxe uit met een inloopdouche voorzien van regenkop, dubbele wastafel, grote spiegel en terrazzo vloer- en wandtegels in steenlook. Daarnaast is er nog een aparte berging en een apart toilet aanwezig.
Energiezuinig en modern
Dit nieuwbouwappartement is volledig afgewerkt en onmiddellijk beschikbaar. Met 6 zonnepanelen (2640 Wp) en hoogrendementsglas woon je hier toekomstgericht én energiezuinig.
Ondergrondse autostaanplaats aan te kopen voor € 28.200,-
Rivierenhof om de hoek
Je woont hier ideaal, overal dichtbij en toch heerlijk rustig en groen. Het prachtige Rivierenhof, het grootste park van de stad, ligt op amper een paar minuten wandelen. Binnen een straal van nog geen 500 meter zijn liefst vier supermarkten. Ook heel wat buurtwinkels zijn vlakbij. Met de fiets, de bus of de tram sta je snel in de stad, met de auto sta je zo op de autostrade. Door de vernieuwing van de Wouter Haecklaan bevindt je je in het groen.
Energie
![]() |
- E-peil: E30
- Verwarming: Gas
- Beglazing: Standaard dubbel
Op de kaart

Downloads
Financieel
| Prijs | |
|---|---|
| Kadastraal inkomen (niet geïndexeerd) | € 0 |
| Kadastraal inkomen (geïndexeerd) | € 0 |
Berekening kosten
Je aankoopkosten? Die heb je snel berekent via de knop hieronder.
Bijkomende info
Gebouw
| Bouwjaar | 2025 |
|---|---|
| Staat | Nieuw |
| Bouwcertificaat | Nee |
| Bewoonbaar (m²) | 133 |
| Verdieping | 2 |
| Gevelbreedte | 8.5 |
| Badkamers | 1 |
| Slaapkamers | 3 |
| Verdiepingen | 4 |
| Garages | 0 |
| Parkeerplaatsen | 0 |
| Doucheruimtes | 0 |
| Toiletten | 1 |
Faciliteiten
| Keuken uitrusting | Luxueus uitgerust |
|---|---|
| Materiaal ramenomlijstingen | Aluminium |
| Beglazing | Standaard dubbel |
| Brandstof primaire verwarming | Gas |
| Elektrisch keuringsattest | Ja |
Perceel
| Diepte (m) | 28 |
|---|---|
| Breedte (m) | 26 |
| Overstromingsgevoelig | Geen |
| P-score | B |
| G-score | A |
| Voorkeurrecht | Nee |
| Totale oppervlakte (m²) | 728 |
| Bebouwde oppervlakte (m²) | 0 |
| Tuin oppervlakte (m²) | 0 |
| Oppervlakte terras (m²) | 9 |
| Oriëntatie tuin | Zuid |
Vergunning
| Vergunning | Vergunning beschikbaar |
|---|
Uitrusting
| Investeringspand | Nee |
|---|---|
| Geschikt voor praktijk | Nee |
| Parking | Nee |
| Garage | Nee |
| Thuiskantoor | Nee |
| Kelder | Nee |
| Zolder | Nee |
| Tuin | Nee |
| Terras | Ja |
| Lift | Ja |
| Rioolaansluiting | Nee |
| Gasaansluiting | Nee |
| Wateraansluiting | Nee |
| Elektriciteitsaansluiting | Nee |
| TV aansluiting | Nee |
| Internetaansluiting | Nee |
| Telefoonaansluiting | Nee |
Appartementsblok
| Aantal verdiepingen | 4 |
|---|---|
| Lift | Ja |
