Energiezuinig 2slpk appartement met zonneterras
Een pand van Immo Vasta
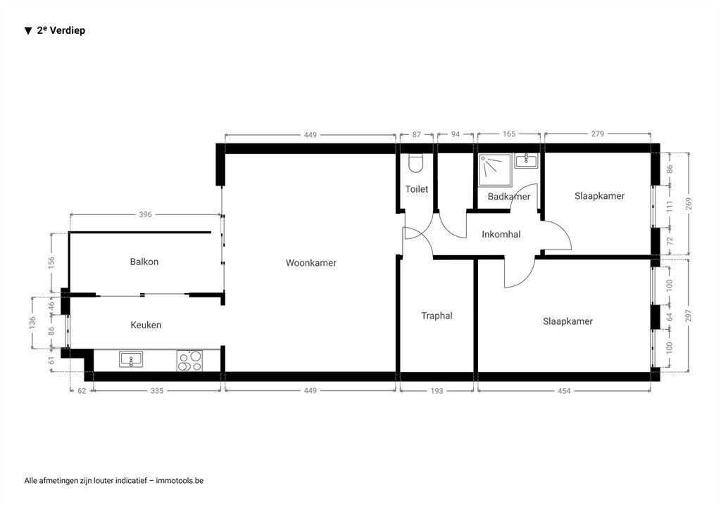
Overzicht
- 78.87 m² bewoonbaar
- 324 m² grond
- 2 Slaapkamer(s)
- 1 Badkamer(s)
- 1 Toilet(ten)
Overstromingsgevaar gebouw
Overstromingsgevaar perceel
Beschrijving
Wonen aan het bruisende hart van Deurne-Zuid, met het Rivierenhof en Te Boelaarpark op fietsafstand? Dit smaakvol gerenoveerde appartement met blokjesparket, zonneterras én een polyvalente ruimte op het gelijkvloers is er eentje om meteen verliefd op te worden. Perfect voor wie wonen en werken wil combineren, of gewoon graag wat extra ruimte heeft voor hobby of ontspanning.
Karaktervol wonen met een modern comfort
Bij het binnenkomen via de industriële inkomhal van Huis De Bie — een kleinschalig herenhuis— voel je meteen de charme. Op de tweede verdieping wacht het appartement je op met een lichtrijke leefruimte, afgewerkt met prachtig blokjesparket. De open keuken sluit er naadloos op aan en is uitgerust met Siemens-toestellen, waaronder een inductie kookplaat, dampkap, oven, vaatwasmachine, koelkast en diepvriezer. Donkere melamine kasten geven het geheel een moderne toets, terwijl de stijlvolle bar ideaal is voor een snelle hap of koffie met onderaan plaats voor een was-droogcombinatie.
Zowel de leefruimte als de keuken geven uit op het zuidwestgerichte terras (6,5 m²). Dankzij de houten terrasvloer en zwarte balustrade is dit een elegant verlengstuk van je leefruimte — ideaal om van de zon te genieten tot ’s avonds laat.
De twee slaapkamers zijn opnieuw afgewerkt met blokjesparket en stralen een warme sfeer uit. De badkamer is mooi betegeld met een retro tegel en voorzien van een inloopdouche, lavabo met spiegelkast, handdoekradiator en ventilatiesysteem. Er is ook een apart toilet en technische berging in de hal.
Een extra ruimte voor jouw plannen
Op het gelijkvloers beschik je over een extra kamer van 15 m². Deze privatieve ruimte ligt vooraan het gebouw en is ideaal als praktijkruimte, bureau, hobbyplek of work-out room. Achteraan is er nog een gemeenschappelijke fietsenstalling met laadmogelijkheid, gedeeld met slechts twee andere bewoners. Je krijgt er bovendien ook een kelderberging bij.
Duurzaam en zorgeloos wonen
Dit appartement is volledig gerenoveerd met oog voor energiezuinigheid: een efficiënte warmtepomp, driedubbele beglazing en doorgedreven isolatie zorgen voor een E-peil onder 60.. Geen syndicuskosten, geen logge mede-eigendom.
Wandelen, shoppen en ontspannen
Je woont aan de Herentalsebaan in Deurne-Zuid, met winkels, supermarkten, bruisende horeca in Deurne en Borgerhout en openbaar vervoer op wandelafstand. Het prachtige Rivierenhof en Te Boelaarpark ligt op nog geen vijf minuten fietsen. Ook de grote invalswegen en opritten naar de autostrade zijn vlakbij. Niet toevallig scoort dit adres een Mobiscore van 9,5 op 10!
Energie
![]() |
- EPC Certificaat: 11002-G-OMV_2022134507/EP20252/A001/D01/SD003
- Energieverbruik: 99 kWh/m²/jaar
- E-peil: E60
- Beglazing: Standaard dubbel
Op de kaart

Financieel
| Prijs | |
|---|---|
| Kadastraal inkomen (niet geïndexeerd) | € 0 |
| Kadastraal inkomen (geïndexeerd) | € 0 |
Berekening kosten
Je aankoopkosten? Die heb je snel berekent via de knop hieronder.
Bijkomende info
Gebouw
| Bouwjaar | 1923 |
|---|---|
| Staat | Goed onderhouden |
| Bouwcertificaat | Nee |
| Bewoonbaar (m²) | 78.87 |
| Verdieping | 2 |
| Badkamers | 1 |
| Slaapkamers | 2 |
| Verdiepingen | 3 |
| Garages | 0 |
| Parkeerplaatsen | 0 |
| Doucheruimtes | 0 |
| Toiletten | 1 |
Faciliteiten
| Keuken uitrusting | Luxueus uitgerust |
|---|---|
| Materiaal ramenomlijstingen | Aluminium |
| Beglazing | Standaard dubbel |
| Elektrisch keuringsattest | Ja |
Perceel
| Overstromingsgevoelig | Geen |
|---|---|
| P-score | D |
| G-score | D |
| Voorkeurrecht | Nee |
| Totale oppervlakte (m²) | 324 |
| Bebouwde oppervlakte (m²) | 0 |
| Tuin oppervlakte (m²) | 0 |
| Oppervlakte terras (m²) | 6 |
| Oriëntatie tuin | Zuid |
Vergunning
| Vergunning | Geen beschikbaar |
|---|
Uitrusting
| Investeringspand | Nee |
|---|---|
| Geschikt voor praktijk | Ja |
| Parking | Nee |
| Garage | Nee |
| Thuiskantoor | Ja |
| Kelder | Ja |
| Zolder | Nee |
| Tuin | Nee |
| Terras | Ja |
| Lift | Nee |
| Rioolaansluiting | Nee |
| Gasaansluiting | Nee |
| Wateraansluiting | Nee |
| Elektriciteitsaansluiting | Nee |
| TV aansluiting | Nee |
| Internetaansluiting | Nee |
| Telefoonaansluiting | Nee |
Appartementsblok
| Aantal verdiepingen | 3 |
|---|---|
| Lift | Nee |
