Volledig gerenoveerd appartement met terrasje
€ 285.000
Een pand van Immo Vasta
Overzicht
- 80 m² bewoonbaar
- 238 m² grond
- 2 Slaapkamer(s)
- 1 Badkamer(s)
- 1 Toilet(ten)
Beschrijving
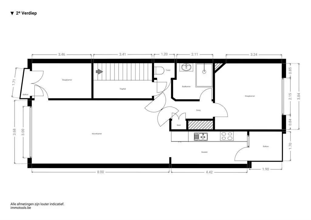
Wonen in een fijne, hechte buurt met het Rivierenhof als buur en vlakbij allerlei winkels en alle uitvalswegen? Dit instapklare appartement op de tweede verdieping werd van A tot Z gerenoveerd en combineert een warme parketvloer met stijlvolle terrazzo-accenten. Twee volwaardige slaapkamers, een tof terrasje én twee kelderbergingen krijg je er zomaar bij.
Warm, licht en helemaal vernieuwd
Je bereikt het appartement op de tweede verdieping via de trap. Op de overloop, vlak voor de inkomdeur, is er reeds een praktische ruimte voorzien om jassen en schoenen te stallen. Vervolgens betreed je het appartement via de inkomhal, afgewerkt met een charmante terrazzo tegelvloer die naadloos doorloopt in de keuken, badkamer en het aparte toilet. In de hal bevinden zich bovendien een praktische ingemaakte bergkast en de parlofoon. Rechts betreed je de lichtrijke woonkamer aan de voorzijde van het gebouw. De mooie doorlopende parketvloer, die eveneens werd doorgetrokken in beide slaapkamers, zorgt meteen voor warmte en een gevoel van eenheid. Dankzij de kamerbrede raampartijen geniet de leefruimte van een overvloed aan natuurlijk licht. Hier is er meer dan voldoende plaats voor zowel een gezellige zithoek als een ruime eettafel. Aansluitend bevindt zich de kleinere kamer aan de voorzijde, ideaal als bureau, kinderkamer of hobbyruimte. Ook hier werd dezelfde parketvloer doorgetrokken en zorgen de kamerhoge ramen voor een aangename lichtinval.
Volledig uitgeruste keuken met gezellig terras
De keuken, aan de achterkant van het gebouw bereik je via de leefruimte en is volledig uitgerust met een inductiekookplaat, dampkap (met rechtstreekse afvoer naar buiten), vaatwasser, koelkast met diepvries (twee vriesvakken) en voldoende kastruimte. De wanden zijn afgewerkt met stijlvolle witte metrotegels en ingebouwde spots zorgen voor extra sfeer en functionaliteit. De trendy terrazzo vloer maakt het geheel compleet. Vanuit de keuken heb je via de deur toegang tot het gezellige terras. Het terras biedt een mooi uitzicht op het groen van de omliggende tuinen, wat zorgt voor een rustige en aangename sfeer. Hier is het ideaal genieten van de ochtendzon met een kop koffie.
Rustige slaapkamers & strak sanitair
Terug in de inkomhal bevindt zich links de badkamer, die eveneens volledig werd vernieuwd en afgewerkt is met dezelfde terrazzo tegelvloer als in de hal en keuken, wat zorgt voor een mooi harmonieus geheel. De badkamer is uitgerust met een inloopdouche met identieke betegeling als in de keuken, een enkelvoudige lavabo met twee onderkasten en een dubbele spiegelkast. Verder zijn er ingebouwde spots, een handdoekradiator én aansluitingen voor een was- en droogmachine voorzien. Achteraan bevindt zich de master bedroom, een mooie en ruime kamer afgewerkt met een parketvloer en genietend van een rustgevend uitzicht op de groene omliggende tuinen.
Residentieel wonen vlakbij groen en stad
Je woont hier in een rustige, residentiële buurt in Deurne, met het Rivierenhof op wandelafstand – ideaal om te sporten, wandelen of gewoon even uit te waaien. Winkels, scholen, apothekers en sportfaciliteiten bevinden zich vlakbij, net als supermarkt Jumbo en het Wijnegem Shopping Center. Ook qua mobiliteit zit je hier goed: tram en bus zijn in de buurt, net als een Velo-station. Met de Singel, Ring en E313 vlakbij ben je zo in en uit de stad.
Energie
![]() |
- EPC Certificaat: 20260114-003772737-RES-1
- Energieverbruik: 121 kWh/m²/jaar
- E-peil: E0
- Verwarming: Gas
- Beglazing: Standaard dubbel
Op de kaart

Financieel
| Prijs | |
|---|---|
| Kadastraal inkomen (niet geïndexeerd) | € 676 |
| Kadastraal inkomen (geïndexeerd) | € 0 |
Berekening kosten
Je aankoopkosten? Die heb je snel berekend via de knop hieronder.
Bijkomende info
Gebouw
| Bouwjaar | 1966 |
|---|---|
| Staat | Goed onderhouden |
| Bouwcertificaat | Nee |
| Bewoonbaar (m²) | 80 |
| Verdieping | 2 |
| Badkamers | 1 |
| Slaapkamers | 2 |
| Verdiepingen | 2 |
| Garages | 0 |
| Parkeerplaatsen | 0 |
| Doucheruimtes | 0 |
| Toiletten | 1 |
Faciliteiten
| Keuken uitrusting | Luxueus uitgerust |
|---|---|
| Materiaal ramenomlijstingen | PVC |
| Beglazing | Standaard dubbel |
| Brandstof primaire verwarming | Gas |
| Elektrisch keuringsattest | Ja |
Perceel
| Overstromingsgevoelig | Geen |
|---|---|
| P-score | A |
| G-score | A |
| Voorkeurrecht | Nee |
| Totale oppervlakte (m²) | 238 |
| Bebouwde oppervlakte (m²) | 0 |
| Tuin oppervlakte (m²) | 0 |
| Oppervlakte terras (m²) | 3 |
| Oriëntatie tuin | Noordoost |
Vergunning
| Vergunning | Vergunning beschikbaar |
|---|
Uitrusting
| Investeringspand | Nee |
|---|---|
| Geschikt voor praktijk | Nee |
| Parking | Nee |
| Garage | Nee |
| Thuiskantoor | Nee |
| Kelder | Ja |
| Zolder | Nee |
| Tuin | Nee |
| Terras | Ja |
| Lift | Nee |
| Rioolaansluiting | Ja |
| Gasaansluiting | Nee |
| Wateraansluiting | Ja |
| Elektriciteitsaansluiting | Ja |
| TV aansluiting | Ja |
| Internetaansluiting | Ja |
| Telefoonaansluiting | Nee |
Appartementsblok
| Aantal verdiepingen | 2 |
|---|---|
| Lift | Nee |
