Appartement op toplocatie nabij Boelaarpark
€ 229.000
Een pand van Immo Vasta
Overzicht
- 104 m² bewoonbaar
- 377 m² grond
- 2 Slaapkamer(s)
- 1 Badkamer(s)
- 1 Toilet(ten)
- 1 Garage(s)
Beschrijving
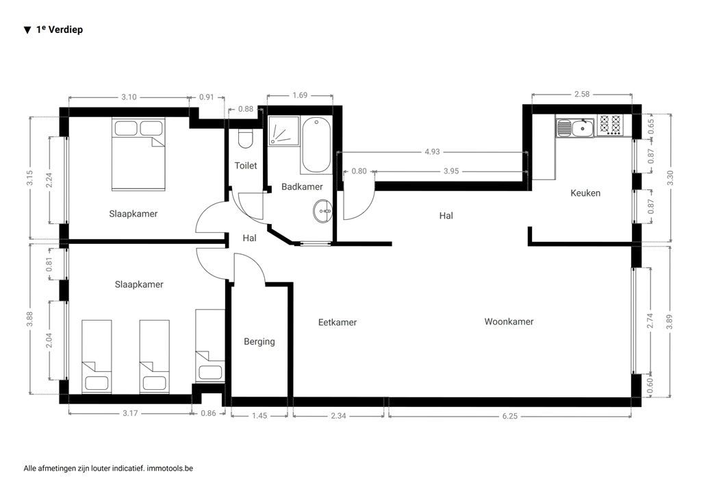
Op zoek naar een ruim appartement met een stoere look en een topindeling? Dan zit je goed op de eerste verdieping van dit verzorgde gebouw aan de Jozef Verbovenlei. Je krijgt hier een mooie parketvloer, een woonkamer met industriële details, twee grote slaapkamers, een aparte berging én een autostaanplaats inbegrepen. Achter het gebouw ligt nog een extra garagebox voor die je optioneel aankoopt voor €25.000.
Ruimtelijk wonen met industriële look
Via de inkomhal van met parlofoon en kapstokhoek, stap je de leefruimte binnen van maar liefst ca 34 m². Hier zorgen grote ramen voor veel natuurlijk licht. De parketvloer geeft het geheel warmte, terwijl de zichtbare poutrellen en steunpilaren zorgen voor een industriële toets. Aansluitend vind je de open keuken met ontbijttafel, gasfornuis, oven, ijskast, dampkap en veel kastruimte. De keuken is netjes onderhouden, maar kan je op termijn volledig upgraden tot een moderne leefkeuken.
Twee rustige slaapkamers achteraan
Licht, rust en ruimte komen hier mooi samen. Achteraan liggen de twee grote slaapkamers van 13 m² en 16 m², allebei met een mooi uitzicht op de rustige binnenkant van het perceel. Terug in de centrale hal vind je een grote berging en een apart toilet. Ook de badkamer van 5 m² is praktisch ingedeeld met ligbad, aparte douche, lavabomeubel, tegelvloer en afzuigsysteem.
Park, stad en bereikbaarheid binnen handbereik
Je woont hier in een rustige, residentiële straat op een steenworp van het Te Boelaerpark. Ook het Boekenbergpark en Rivierenhof liggen vlakbij. Je vindt alle nodige winkels, scholen en openbaar vervoer in de directe omgeving, net als tram en bus richting centrum of station. De Ring bereik je in enkele minuten.
Energie
![]() |
- EPC Certificaat: 0003726516-RES-1
- Energieverbruik: 134 kWh/m²/jaar
- E-peil: E0
- Verwarming: Gas
- Beglazing: Standaard dubbel
Op de kaart

Downloads
Financieel
| Prijs | |
|---|---|
| Kadastraal inkomen (niet geïndexeerd) | € 542 |
| Kadastraal inkomen (geïndexeerd) | € 0 |
Berekening kosten
Je aankoopkosten? Die heb je snel berekent via de knop hieronder.
Bijkomende info
Gebouw
| Bouwjaar | 1953 |
|---|---|
| Staat | Goed onderhouden |
| Bouwcertificaat | Nee |
| Bewoonbaar (m²) | 104 |
| Verdieping | 1 |
| Badkamers | 1 |
| Slaapkamers | 2 |
| Verdiepingen | 2 |
| Garages | 1 |
| Parkeerplaatsen | 0 |
| Doucheruimtes | 0 |
| Toiletten | 1 |
Faciliteiten
| Keuken uitrusting | Luxueus uitgerust |
|---|---|
| Materiaal ramenomlijstingen | PVC |
| Beglazing | Standaard dubbel |
| Brandstof primaire verwarming | Gas |
| Elektrisch keuringsattest | Nee |
Perceel
| Overstromingsgevoelig | Geen |
|---|---|
| P-score | A |
| G-score | A |
| Voorkeurrecht | Nee |
| Totale oppervlakte (m²) | 377 |
| Bebouwde oppervlakte (m²) | 0 |
| Tuin oppervlakte (m²) | 0 |
| Oppervlakte terras (m²) | 0 |
| Oriëntatie tuin | Noordoost |
Uitrusting
| Investeringspand | Nee |
|---|---|
| Geschikt voor praktijk | Nee |
| Parking | Nee |
| Garage | Ja |
| Thuiskantoor | Nee |
| Kelder | Ja |
| Zolder | Nee |
| Tuin | Nee |
| Terras | Nee |
| Lift | Nee |
| Rioolaansluiting | Ja |
| Gasaansluiting | Ja |
| Wateraansluiting | Ja |
| Elektriciteitsaansluiting | Ja |
| TV aansluiting | Ja |
| Internetaansluiting | Ja |
| Telefoonaansluiting | Ja |
Appartementsblok
| Aantal verdiepingen | 2 |
|---|---|
| Lift | Nee |
