Energiezuinig lichtrijk appartement met 2 slpks
€ 209.000
Een pand van Immo Vasta
Overzicht
- 93 m² bewoonbaar
- 2 Slaapkamer(s)
- 1 Badkamer(s)
- 1 Toilet(ten)
- 1 Garage(s)
Beschrijving
Op zoek naar een ruim appartement (93m²) op een toplocatie tussen het Rivierenhof en het Boekenbergpark? Dan is dit appartement op de derde verdieping misschien wel jouw nieuwe thuis. Extra troef, er is een ruime garagebox optioneel aan te kopen (€35.000), handig toch!
Ruimtelijk en licht
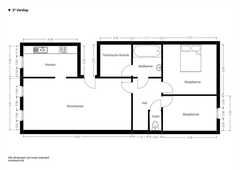
Zodra je het appartement binnenkomt in de leefruimte merk je het gevoel van ruimte. Je hebt meer dan voldoende plaats voor een gezellige zithoek én een grote eettafel, met twee grote raampartijen die zorgen voor een heerlijke lichtinval en een open uitzicht. Met een kleine ingreep heb je zo een hout-look wat voor meer warmte zorgt. De naastgelegen keuken is uitgerust met een traditioneel gasvuur, dampkap met afvoer, afzonderlijke koelkast met vriezer, dubbele spoelbak en veel kastruimte. De doorlopende neutrale tegelvloer maakt het een mooi geheel.
Functioneel & comfortabel
Via de centrale nachthal bereik je het slaapgedeelte. Deze heeft overigens extra vestiaire ruimte en een afzonderlijk toilet. De aansluitende badkamer is functioneel ingericht en volledig betegeld, voorzien van een ligbad met douchegordijn, lavabo met spiegelkastje en geeft toegang tot een zeer ruime technische berging met de recente CV condensatie-ketel (2019), aansluiting voor was/droogcombinatie én vaatwasser.
Aan de rustige achterzijde liggen twee volwaardige slaapkamers: een master bedroom van 16m² en een tweede kamer van 11m², beiden op laminaatparket en met een groen, open zicht.
Tussen twee groene longen van de stad
Gelegen in een residentiële straat tussen het prachtige Rivierenhof en het Boekenbergpark (bekend om z’n zwemvijver!), zit je hier als sportieveling en rustzoeker helemaal goed. Joggen, fietsen, zwemmen: het kan allemaal op enkele minuten van je deur. Deurne-Centrum, met z’n winkels, scholen en supermarkten, is vlakbij, net als tramhaltes en bushaltes richting Antwerpen. Ook leuke plekjes zoals brasserie De Ekster, liggen op wandelafstand. Je woont hier net buiten het stadscentrum, met alle voordelen van de stad binnen handbereik.
Kortom: ben je op zoek naar ruimte, rust, een reeds zeer energiezuinig instapklaar appartement met de mogelijkheid om je eigen stempel volledig te drukken, dan is dit iets voor jou!
Energie
![]() |
- EPC Certificaat: 20250112-0003503039-RES-1
- Energieverbruik: 104 kWh/m²/jaar
- E-peil: E0
- Verwarming: Gas
- Beglazing: Standaard dubbel
Op de kaart

Downloads
Financieel
| Prijs | |
|---|---|
| Kadastraal inkomen (niet geïndexeerd) | € 0 |
| Kadastraal inkomen (geïndexeerd) | € 0 |
Berekening kosten
Je aankoopkosten? Die heb je snel berekent via de knop hieronder.
Bijkomende info
Gebouw
| Staat | Goed onderhouden |
|---|---|
| Bouwcertificaat | Nee |
| Bewoonbaar (m²) | 93 |
| Verdieping | 3 |
| Badkamers | 1 |
| Slaapkamers | 2 |
| Verdiepingen | 3 |
| Garages | 1 |
| Parkeerplaatsen | 0 |
| Doucheruimtes | 0 |
| Toiletten | 1 |
Faciliteiten
| Keuken uitrusting | Luxueus uitgerust |
|---|---|
| Materiaal ramenomlijstingen | Aluminium |
| Beglazing | Standaard dubbel |
| Brandstof primaire verwarming | Gas |
| Elektrisch keuringsattest | Ja |
Perceel
| Overstromingsgevoelig | Geen |
|---|---|
| P-score | A |
| G-score | A |
| Voorkeurrecht | Nee |
| Bebouwde oppervlakte (m²) | 0 |
| Tuin oppervlakte (m²) | 0 |
| Oppervlakte terras (m²) | 0 |
| Oriëntatie tuin | Oost |
Vergunning
| Vergunning | Vergunning beschikbaar |
|---|
Uitrusting
| Investeringspand | Nee |
|---|---|
| Geschikt voor praktijk | Nee |
| Parking | Nee |
| Garage | Ja |
| Thuiskantoor | Nee |
| Kelder | Ja |
| Zolder | Nee |
| Tuin | Nee |
| Terras | Nee |
| Lift | Nee |
| Rioolaansluiting | Ja |
| Gasaansluiting | Ja |
| Wateraansluiting | Ja |
| Elektriciteitsaansluiting | Ja |
| TV aansluiting | Ja |
| Internetaansluiting | Ja |
| Telefoonaansluiting | Nee |
Appartementsblok
| Aantal verdiepingen | 3 |
|---|---|
| Lift | Nee |
