Appartement
Een pand van Immo Vasta
Jouw zoektocht
Overzicht
- 89 m² bewoonbaar
- 469 m² grond
- 2 Slaapkamer(s)
- 1 Badkamer(s)
- 1 Toilet(ten)
Beschrijving
Op zoek naar een appartement met een aangenaam ruimtegevoel en veel licht. Dit verzorgde appartement op de tweede verdieping biedt je een comfortabele thuisbasis in een rustige buurt, vlakbij winkels en vlotte verbindingen.
Licht, ruimte en comfort in harmonie
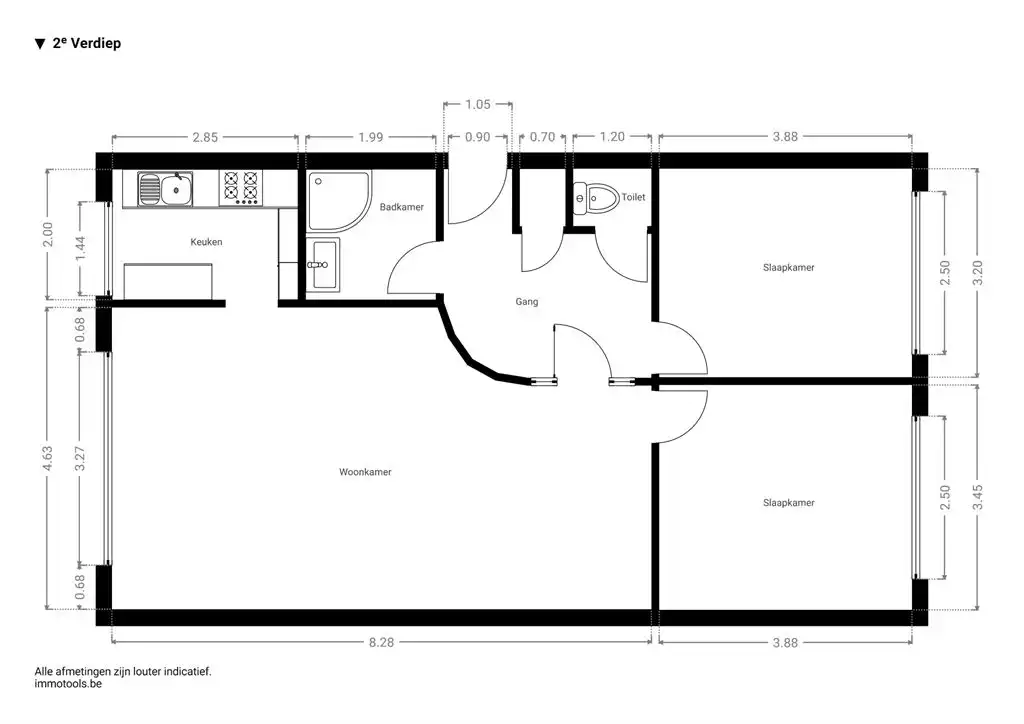
Je komt binnen in de inkomhal, die meteen een verzorgd en overzichtelijk gevoel geeft en fungeert als centrale spil van het appartement. Van hieruit heb je toegang tot alle ruimtes, inclusief een handige berging met technische installatie. Via een glazen deur stap je de leefruimte binnen, waar licht en ruimte meteen de hoofdrol spelen. De brede raampartijen zorgen voor een open, luchtige sfeer en maken dit een bijzonder aangename plek om thuis te komen. De sierhaard voegt een subtiel karaktervol accent toe, terwijl er voldoende plaats is voor zowel een gezellige zithoek als een ruime eettafel. Aansluitend bevindt zich de keuken, praktisch ingericht, goed onderhouden maar aan vernieuwing toe. Deze is uitgerust met een oven, dubbele spoelbak, vaatwasser, ijskast, diepvries en voldoende kastruimte. Ook hier geniet je van natuurlijk licht, met bovendien de mogelijkheid om de keuken verder naar eigen smaak te moderniseren.
Rustige nachten en praktisch comfort
Vanuit de inkomhal bereik je de badkamer, uitgerust met een douchecabine, lavabo met opbergruimte en aansluitingen voor wasmachine en droogkast. Daarnaast is er een apart toilet, wat zorgt voor extra comfort. Verder doorlopend bevinden zich achteraan het appartement twee volwaardige slaapkamers. Deze liggen rustig weg van de straat en bieden een aangename, stille omgeving. Beide kamers zijn lichtrijk en flexibel in te richten als slaapkamer, bureau of hobbyruimte.
Groen wonen met alles dichtbij
Je woont hier in een aangename, residentiële en kindvriendelijke buurt in Deurne, grenzend aan het Bisschoppenhofpark en vlakbij Bremweide en het Rivierenhof. Ideaal voor wie houdt van groen, wandelen en ontspannen. Tegelijk geniet je van een uitstekende bereikbaarheid, met openbaar vervoer op wandelafstand en een vlotte verbinding naar de Ring en het centrum van Antwerpen. Winkels, supermarkten en horeca bevinden zich allemaal in de directe omgeving.
Energie
![]() |
- EPC Certificaat: 20250507-0003591979-RES-1
- E-peil: E0
- Verwarming: Gas
- Beglazing: Standaard dubbel
Extra budget nodig voor je renovatie?

Op de kaart

Financieel
| Prijs | |
|---|---|
| Kadastraal inkomen (niet geïndexeerd) | € 671 |
| Kadastraal inkomen (geïndexeerd) | € 0 |
Berekening kosten
Je aankoopkosten? Die heb je snel berekend via de knop hieronder.
Bijkomende info
Gebouw
| Bouwjaar | 1964 |
|---|---|
| Staat | Op te frissen |
| Bouwcertificaat | Nee |
| Bewoonbaar (m²) | 89 |
| Verdieping | 2 |
| Badkamers | 1 |
| Slaapkamers | 2 |
| Verdiepingen | 2 |
| Garages | 0 |
| Parkeerplaatsen | 0 |
| Doucheruimtes | 0 |
| Toiletten | 1 |
Faciliteiten
| Keuken uitrusting | Standaard |
|---|---|
| Materiaal ramenomlijstingen | PVC |
| Beglazing | Standaard dubbel |
| Brandstof primaire verwarming | Gas |
| Elektrisch keuringsattest | Ja |
Perceel
| Overstromingsgevoelig | Geen |
|---|---|
| P-score | C |
| G-score | A |
| Voorkeurrecht | Nee |
| Totale oppervlakte (m²) | 469 |
| Bebouwde oppervlakte (m²) | 0 |
| Tuin oppervlakte (m²) | 0 |
| Oppervlakte terras (m²) | 0 |
| Oriëntatie tuin | Zuidwest |
Vergunning
| Vergunning | Vergunning beschikbaar |
|---|
Uitrusting
| Investeringspand | Nee |
|---|---|
| Geschikt voor praktijk | Nee |
| Parking | Nee |
| Garage | Nee |
| Thuiskantoor | Nee |
| Kelder | Ja |
| Zolder | Nee |
| Tuin | Nee |
| Terras | Nee |
| Lift | Nee |
| Rioolaansluiting | Ja |
| Gasaansluiting | Ja |
| Wateraansluiting | Ja |
| Elektriciteitsaansluiting | Ja |
| TV aansluiting | Ja |
| Internetaansluiting | Ja |
| Telefoonaansluiting | Ja |
Appartementsblok
| Aantal verdiepingen | 2 |
|---|---|
| Lift | Nee |


