gelijkvloers appartement met optionele garagebox
€ 209.000
Een pand van Immo Vasta
Overzicht
- 82 m² bewoonbaar
- 315 m² grond
- 2 Slaapkamer(s)
- 1 Badkamer(s)
- 1 Toilet(ten)
- 1 Garage(s)
Beschrijving
Wonen in alle rust op een toplocatie in Deurne-Zuid, pal tussen twee parken? Dit charmante appartement met twee slaapkamers vind je op het gelijkvloers van een kleinschalig hoekpand. Het dak en de ramen zijn recent vernieuwd, de garagebox koop (€23.500,00) je er optioneel nog bij als je wil.
Het appartement ligt in een gebouw met slechts drie appartementen. Dat wil zeggen: veel rust en beperkte gemeenschappelijke kosten. Het appartement is lichtrijk en helemaal instapklaar.
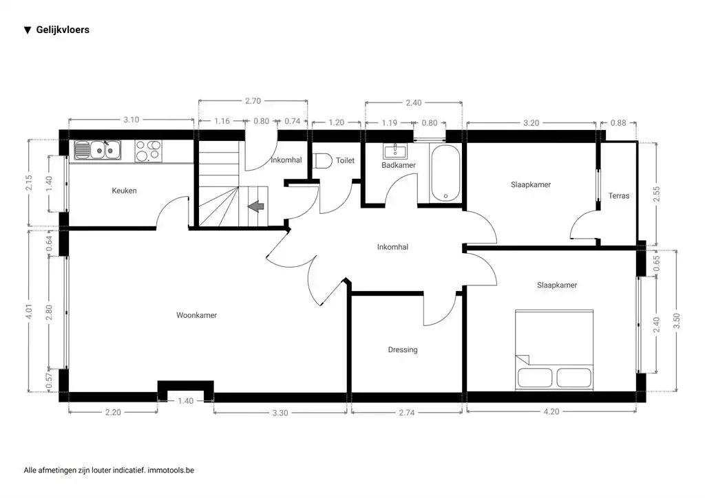
Als je binnenstapt, valt meteen de aangename laminaatparket op die over het hele appartement doorloopt. In de ruime inkomhal heb je een vestiairekast, via de dubbele deur ga je naar de leefruimte. Die heeft grote ramen en veel lichtinval. De sierlijsten en de sierschouw geven de leefruimte een charmante uitstraling.
De aparte keuken is handig ingericht met een inductiekookplaat, oven, plek voor koelkast en diepvries en inox spoelbak spoelbak. De keuken heeft functionele tegel en mozaïek spatwand. De badkamer heeft dan weer een gezellige patroontegel. Daar vind je een bad met douche en een lavabomeubel met spiegel. Het raam zorgt voor licht en verluchting alsook het wasmachine kan hier geplaatst worden. Het toilet is apart.
Meer dan ruimte genoeg
De twee slaapkamers zijn zuidgericht en hebben weer die mooie parketvloer. De rolluiken houden ’s ochtends het licht en in de zomer de zon buiten. De kleinste slaapkamer geeft uit op het terras en is ideaal als bureau of tweede slaapkamer. Het terras is overdekt, zo zit je ook wanneer het druppelt gezellig buiten, zonder inkijk.
Nog extra ruimte nodig? Je hebt nog een berging die je kan inrichten als dressing. In de kelder heb je ook nog eens een eigen bergruimte. Onderdak nodig voor je auto? Je kan optioneel één van de garagebox achter je appartementsgebouw mee kopen.
Tussen twee parken
Dit appartement is geweldig gelegen. Je woont in een rustige straat in Deurne-Zuid, pal tussen twee parken: het Boekenbergpark met de zwemvijver en het Te Boelaerpark met de majestueuze hoge bomen. Kies maar in welk park je gaat genieten. Tram 9 en 11 stoppen om de hoek, ook de Ring en de Singel zijn vlakbij. In je buurt vind je zowel supermarkten als kleinere buurtwinkels. De cafeetjes, koffiebars en restaurants schieten hier de laatste jaren als paddenstoelen uit de grond.
Dit pand is onderworpen aan de renovatieverplichting.
Energie
![]() |
- EPC Certificaat: 20230228-0002824004-RES-1
- Energieverbruik: 420 kWh/m²/jaar
- E-peil: E0
- Verwarming: Gas
- Beglazing: Standaard dubbel
Extra budget nodig voor je renovatie?

Op de kaart

Financieel
| Prijs | |
|---|---|
| Kadastraal inkomen (niet geïndexeerd) | € 2.521 |
| Kadastraal inkomen (geïndexeerd) | € 0 |
Berekening kosten
Je aankoopkosten? Die heb je snel berekent via de knop hieronder.
Bijkomende info
Gebouw
| Bouwjaar | 1970 |
|---|---|
| Staat | Goed onderhouden |
| Bouwcertificaat | Nee |
| Bewoonbaar (m²) | 82 |
| Verdieping | 0 |
| Gevelbreedte | 7 |
| Badkamers | 1 |
| Slaapkamers | 2 |
| Verdiepingen | 2 |
| Garages | 1 |
| Parkeerplaatsen | 0 |
| Doucheruimtes | 0 |
| Toiletten | 1 |
Faciliteiten
| Keuken uitrusting | Luxueus uitgerust |
|---|---|
| Materiaal ramenomlijstingen | PVC |
| Beglazing | Standaard dubbel |
| Brandstof primaire verwarming | Gas |
| Elektrisch keuringsattest | Nee |
Perceel
| Diepte (m) | 33 |
|---|---|
| Breedte (m) | 9 |
| Overstromingsgevoelig | Geen |
| P-score | B |
| G-score | A |
| Voorkeurrecht | Nee |
| Totale oppervlakte (m²) | 315 |
| Bebouwde oppervlakte (m²) | 154 |
| Tuin oppervlakte (m²) | 0 |
| Oppervlakte terras (m²) | 3 |
| Oriëntatie tuin | Zuid |
Vergunning
| Vergunning | Vergunning beschikbaar |
|---|---|
| Verkavelingsvergunning | Aanvraag ingediend |
Uitrusting
| Investeringspand | Nee |
|---|---|
| Geschikt voor praktijk | Nee |
| Parking | Nee |
| Garage | Ja |
| Thuiskantoor | Nee |
| Kelder | Ja |
| Zolder | Nee |
| Tuin | Nee |
| Terras | Ja |
| Lift | Nee |
| Rioolaansluiting | Nee |
| Gasaansluiting | Ja |
| Wateraansluiting | Ja |
| Elektriciteitsaansluiting | Ja |
| TV aansluiting | Ja |
| Internetaansluiting | Ja |
| Telefoonaansluiting | Ja |
Appartementsblok
| Aantal verdiepingen | 2 |
|---|---|
| Lift | Nee |



