Appartement met terras en panoramisch zicht op park
€ 185.000
Een pand van Immo Vasta
Overzicht
- 94 m² bewoonbaar
- 2695 m² grond
- 2 Slaapkamer(s)
- 1 Badkamer(s)
- 1 Toilet(ten)
Beschrijving
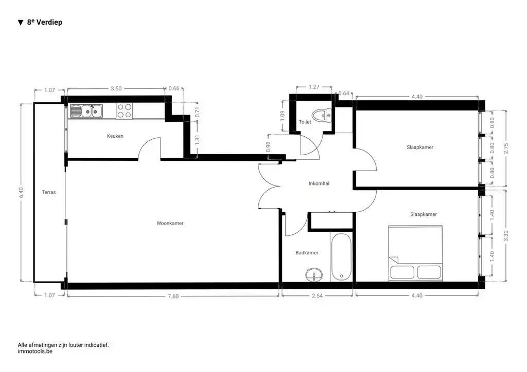
Wonen met een uitzicht dat nooit verveelt? In dit ruime tweeslaapkamerappartement op de achtste verdieping geniet je elke dag van een prachtig panoramisch zicht over het Rivierenhof. Dankzij de grote raampartijen, de royale leefruimte en het aangename terras voelt dit appartement heerlijk open en licht aan. Bovendien woon je hier in een rustige buurt met winkels, openbaar vervoer en de Ring vlakbij.
Licht, ruimte en uitzicht
Je bereikt het appartement met de lift en komt binnen in de centrale inkomhal, die alle ruimtes met elkaar verbindt. Hier vind je ook een handige vestiairekast en een apart gastentoilet.
Vooraan ligt de ruime leefruimte van maar liefst ca. 35 m². Dankzij de grote ramen en het schuifraam naar het terras baadt deze ruimte in natuurlijk licht. De visgraatlook vloer geeft het geheel een warme uitstraling. Vanuit de woonkamer stap je zo het terras op, waar je geniet van een open zicht over het groen van het Rivierenhof — een uitzicht dat elke dag opnieuw indruk maakt.
Aansluitend aan de leefruimte ligt de keuken. Die is praktisch ingericht met een elektrische kookplaat, oven, dubbele inox spoelbak, ingebouwde koelkast en heel wat kastruimte. Ook hier kook je met een mooi uitzicht over het park.
Twee ruime slaapkamers
Via de hal bereik je de twee slaapkamers aan de rustige achterkant van het appartement. Beide kamers zijn ruim en lichtrijk en hebben een aangename zuidoriëntatie. De grootste kamer is perfect als master bedroom, terwijl de tweede kamer ideaal is als kinderkamer, logeerkamer of bureau.
De badkamer is volledig betegeld en uitgerust met een ligbad met douche, een lavabo met spiegelmeubel en een aansluiting voor een wasmachine.
Terras met panoramisch zicht
Het terras van ongeveer 8 m² vormt een heerlijke extra buitenruimte. Dankzij de hoogte en de open ligging heb je hier weinig inkijk en een weids zicht over het Rivierenhof en de omgeving — ideaal om rustig te genieten van een koffie of een aperitiefje.
Groen wonen met de stad vlakbij
Je woont hier in Deurne, in een rustige wijk waar veel jonge gezinnen wonen en waar alles binnen handbereik ligt. Het prachtige Rivierenhof ligt vlakbij voor wandelingen, sporten of gewoon ontspannen in het groen. Supermarkten en buurtwinkels bevinden zich op wandelafstand en ook tram- en bushaltes liggen dichtbij. Bovendien zit je in een mum van tijd op de Ring, wat deze locatie extra praktisch maakt. De Wouter Haecklaan wordt bovendien volledig opnieuw aangelegd, wat de buurt nog aantrekkelijker zal maken.
Troeven
panoramisch zicht; terras; gunstig EPC; asbestvrij; droge kelderberging; rustige buurt vlakbij Rivierenhof; straat wordt volledig heraangelegd
Energie
![]() |
- EPC Certificaat: 20230708-0002927758-RES-1
- Energieverbruik: 145 kWh/m²/jaar
- E-peil: E0
- Verwarming: Gas
- Beglazing: Standaard dubbel
Op de kaart

Financieel
| Prijs | |
|---|---|
| Kadastraal inkomen (niet geïndexeerd) | € 917 |
| Kadastraal inkomen (geïndexeerd) | € 0 |
Berekening kosten
Je aankoopkosten? Die heb je snel berekend via de knop hieronder.
Bijkomende info
Gebouw
| Bouwjaar | 1970 |
|---|---|
| Staat | Goed onderhouden |
| Bouwcertificaat | Nee |
| Bewoonbaar (m²) | 94 |
| Verdieping | 8 |
| Gevelbreedte | 10 |
| Badkamers | 1 |
| Slaapkamers | 2 |
| Verdiepingen | 9 |
| Garages | 0 |
| Parkeerplaatsen | 0 |
| Doucheruimtes | 0 |
| Toiletten | 1 |
Faciliteiten
| Keuken uitrusting | Standaard |
|---|---|
| Materiaal ramenomlijstingen | Aluminium |
| Beglazing | Standaard dubbel |
| Brandstof primaire verwarming | Gas |
| Elektrisch keuringsattest | Nee |
Perceel
| Diepte (m) | 46 |
|---|---|
| Breedte (m) | 55 |
| Overstromingsgevoelig | Geen |
| P-score | A |
| G-score | A |
| Voorkeurrecht | Nee |
| Totale oppervlakte (m²) | 2695 |
| Bebouwde oppervlakte (m²) | 0 |
| Tuin oppervlakte (m²) | 0 |
| Oppervlakte terras (m²) | 8 |
| Oriëntatie tuin | Zuid |
Vergunning
| Vergunning | Vergunning beschikbaar |
|---|
Uitrusting
| Investeringspand | Nee |
|---|---|
| Geschikt voor praktijk | Nee |
| Parking | Nee |
| Garage | Nee |
| Thuiskantoor | Nee |
| Kelder | Ja |
| Zolder | Nee |
| Tuin | Nee |
| Terras | Ja |
| Lift | Ja |
| Rioolaansluiting | Nee |
| Gasaansluiting | Nee |
| Wateraansluiting | Nee |
| Elektriciteitsaansluiting | Nee |
| TV aansluiting | Nee |
| Internetaansluiting | Nee |
| Telefoonaansluiting | Nee |
Appartementsblok
| Naam residentie | Malpertuus |
|---|---|
| Aantal verdiepingen | 9 |
| Lift | Ja |
