Magazijn met woning
€ 655.000
Een pand van Immo Vasta
Jouw zoektocht
Overzicht
- 780 m² bewoonbaar
- 520 m² grond
- 5 Slaapkamer(s)
- 4 Badkamer(s)
- 1 Garage(s)
Beschrijving
Op zoek naar een pand met massa’s ruimte én mogelijkheden? Dit veelzijdige gebouw combineert een gigantisch magazijn met meerdere woonentiteiten op een sterke locatie vlakbij het Rivierenhof. Ideaal voor wie wonen en werken wil combineren, of voor investeerders die mikken op rendement.
Wonen, werken of investeren
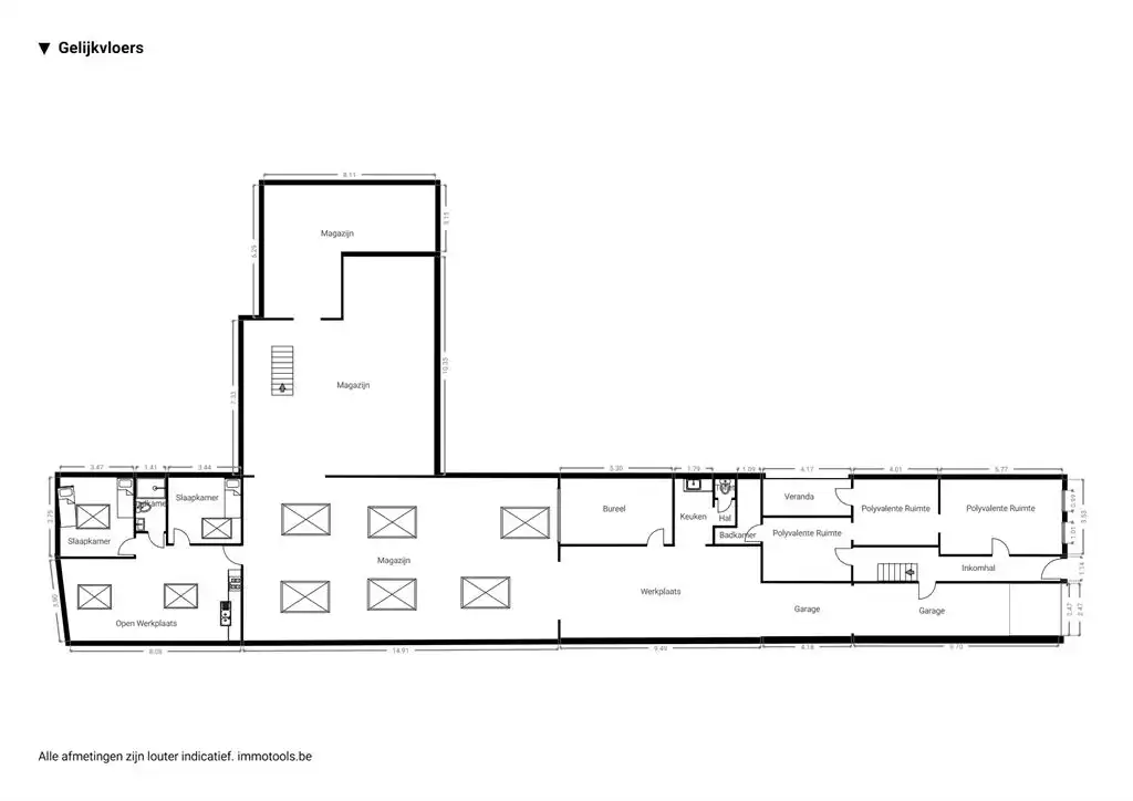
Volgens de laatst vergunde plannen gaat het om twee appartementen, een winkelruimte en een magazijn. Vandaag wordt het gelijkvloers deels gebruikt als appartement (verhuurd aan €1000/maand) en is er een ruim magazijn aanwezig, bereikbaar via een grote garagepoort.
Het gebouw ademt geschiedenis – ooit deed het dienst als vleeswarenfabriek – en dat voel je aan de indrukwekkende volumes en robuuste structuur. Het magazijn strekt zich uit over een enorme oppervlakte, met verschillende werkplaatsen, open ruimtes en opslagzones. Perfect voor zelfstandigen, opslag, ateliers of herontwikkeling.
Naast het magazijn vind je op het gelijkvloers onder meer een bureel, keuken, sanitaire voorzieningen en meerdere polyvalente ruimtes.
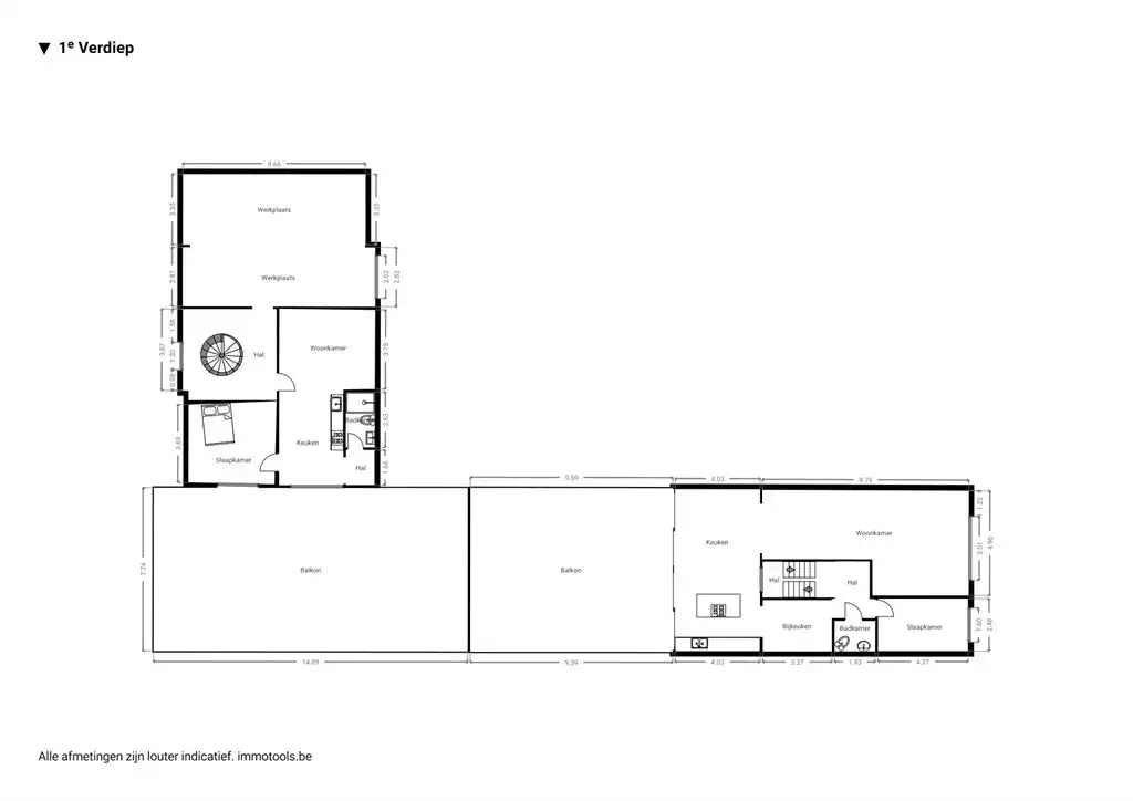
Appartementen met potentieel
Op de eerste verdieping zijn er twee aparte entiteiten:
Aan de achterzijde bevindt zich een atelier met aansluitend een appartement, momenteel verhuurd aan €500/maand.
Aan de voorzijde ligt een ruim appartement van ca. 100 m² met groot terras. Deze unit staat leeg en dient nog verder afgewerkt te worden – een mooie opportuniteit om naar eigen smaak te finaliseren.
Op de tweede verdieping bevindt zich een instapklaar appartement van ca. 70 m², met leefruimte, keuken, slaapkamer en badkamer. Ideaal als extra verhuureenheid of voor eigen bewoning.
Groots magazijn met eindeloze mogelijkheden
Het absolute paradepaardje is zonder twijfel het enorme magazijn op het gelijkvloers. De hoge plafonds, brede overspanningen en grote garagepoort maken laden en lossen bijzonder eenvoudig. Dit volume leent zich perfect voor stockage, productie, creatieve invulling of een combinatie van wonen en werken onder één dak.
Dankzij de solide structuur en de oppervlakte biedt dit pand tal van herontwikkelingsmogelijkheden, steeds binnen de geldende stedenbouwkundige voorschriften.
Groen en centraal in Deurne-Zuid
Je zit hier op een goede locatie in Deurne-Zuid, vlakbij het Rivierenhof. Winkels, openbaar vervoer en invalswegen bevinden zich op korte afstand. Een strategische ligging voor zowel residentieel als professioneel gebruik.
De combinatie van bereikbaarheid, ruimte en indeling maakt dit pand bijzonder interessant voor investeerders, ondernemers of grote gezinnen die veel plaats zoeken.
Energie
![]() |
- EPC Certificaat: 20200930-0002321716-RES-1
- Energieverbruik: 232 kWh/m²/jaar
- E-peil: E0
- Verwarming: Gas
- Beglazing: Standaard dubbel
Op de kaart

Downloads
Financieel
| Prijs | |
|---|---|
| Kadastraal inkomen (niet geïndexeerd) | € 3.236 |
| Kadastraal inkomen (geïndexeerd) | € 0 |
Berekening kosten
Je aankoopkosten? Die heb je snel berekend via de knop hieronder.
Bijkomende info
Gebouw
| Bouwjaar | 1947 |
|---|---|
| Staat | Goed onderhouden |
| Bouwcertificaat | Nee |
| Bewoonbaar (m²) | 780 |
| Verdieping | 0 |
| Badkamers | 4 |
| Slaapkamers | 5 |
| Verdiepingen | 2 |
| Garages | 1 |
| Parkeerplaatsen | 4 |
| Doucheruimtes | 0 |
| Toiletten | 0 |
Faciliteiten
| Keuken uitrusting | Luxueus uitgerust |
|---|---|
| Materiaal ramenomlijstingen | PVC |
| Beglazing | Standaard dubbel |
| Brandstof primaire verwarming | Gas |
| Elektrisch keuringsattest | Nee |
Perceel
| Overstromingsgevoelig | Geen |
|---|---|
| P-score | B |
| G-score | B |
| Voorkeurrecht | Nee |
| Totale oppervlakte (m²) | 520 |
| Bebouwde oppervlakte (m²) | 0 |
| Tuin oppervlakte (m²) | 0 |
| Oppervlakte terras (m²) | 75 |
Uitrusting
| Investeringspand | Nee |
|---|---|
| Geschikt voor praktijk | Nee |
| Parking | Ja |
| Garage | Ja |
| Thuiskantoor | Nee |
| Kelder | Ja |
| Zolder | Nee |
| Tuin | Nee |
| Terras | Ja |
| Lift | Nee |
| Rioolaansluiting | Ja |
| Gasaansluiting | Ja |
| Wateraansluiting | Ja |
| Elektriciteitsaansluiting | Ja |
| TV aansluiting | Ja |
| Internetaansluiting | Ja |
| Telefoonaansluiting | Ja |
Appartementsblok
| Aantal verdiepingen | 2 |
|---|---|
| Lift | Nee |
