Polyvalente ruimte ingedeeld als appartement
€ 379.000
Een pand van Immo Vasta
Overzicht
- 238 m² bewoonbaar
- 272 m² grond
- 3 Slaapkamer(s)
- 2 Badkamer(s)
- 2 Toilet(ten)
- 1 Tuin
Beschrijving
Ruim gebouw met polyvalent gebruik, tuin en garage in hip Deurne-Zuid
Op zoek naar een uniek pand met karakter én uitzonderlijke mogelijkheden? Dit gebouw met polyvalent gebruik, ruime garage en zonnige tuin in het gegeerde Deurne-Zuid is een echte buitenkans. Gelegen in een rustige straat met jonge gezinnen, vlak bij het Te Boelaerpark en tal van winkels, combineert dit pand rust, ruimte en stedelijke dynamiek.
Open ruimtes met karakter
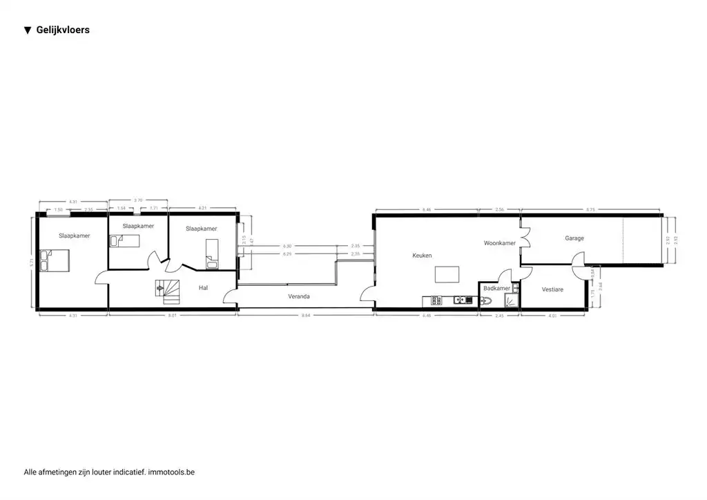
Je betreedt het pand via een ruime inkomhal met ingemaakte vestiairekast — praktisch en overzichtelijk. Van hieruit kom je in een bijzonder grote, lichtrijke open ruimte van ca. 55 m², met hoge plafonds van maar liefst 3 meter en grote ramen die uitkijken op de zuidgerichte tuin.
Aansluitend bevindt zich een open keuken, ingericht met een gasfornuis en oven van SMEG, dubbele inox spoelbak, AEG-vaatwasser en een houten kookeiland. Deze ruimte leent zich perfect voor gebruik als bureau, atelier, ontvangstruimte of creatieve werkplek. Verder is er op dit niveau ook een sanitaire ruimte met toilet, lavabomeubel, spiegel en douchecabine.
Achteraan zorgt een overdekte doorloopruimte voor een vlotte verbinding met de tuin én de achterliggende volumes. Dankzij de grote openschuifbare ramen kan dit gedeelte eveneens functioneren als overdekte buitenruimte of veranda.
Polyvalente achterbouw
De achterbouw is vandaag ingedeeld in meerdere afzonderlijke ruimtes, momenteel gebruikt als slaapkamers en leefruimtes, maar deze indeling is niet residentieel vergund en biedt net daardoor heel wat flexibiliteit.
Je vindt hier verschillende grote ruimtes (ca. 15,5 m², 13 m² en 26,5 m²), een centrale hal met wenteltrap, bijkomende open ruimte met authentieke schouw, lichtkoepel en blokjesparket, een badkamer met ligbad, dubbele lavabo, raam en handdoekenradiator, én een aparte was-/bergruimte.
Dit geheel leent zich uitstekend voor bureaugebruik, praktijkruimte, atelier, opslag, hobbyruimte of combinatie wonen/werken, afhankelijk van de noden en eventuele vergunningsaanvragen van de koper.
Zuidgerichte tuin & inpandige garage
De zuidgerichte tuin van ca. 65 m² is deels verhard, deels groen en uitgerust met een regenwaterton. Hier geniet je de hele dag van zon en privacy — ideaal als buitenruimte bij professioneel of creatief gebruik.
De inpandige garage van ca. 25 m² beschikt over een poort van ca. 3 m hoog en 2,8 m breed, en is geschikt voor wagen, fietsen, stockage of extra werkruimte. Het dak werd vernieuwd in 2023, en samen met de ALU-ramen met HR-glas biedt dit pand een structureel solide basis.
Rustig én centraal in Deurne-Zuid
Met het Te Boelaerpark en het Rivierenhof op wandelafstand zit je hier midden in het groen. Winkels, supermarkten, scholen en horeca liggen om de hoek, net als tram, bus en velostation. Dankzij de nabijheid van de Ring ben je bovendien vlot verbonden met de rest van de stad en daarbuiten.
Energie
![]() |
- EPC Certificaat: 20240104-0003099084-RES-1
- Energieverbruik: 228 kWh/m²/jaar
- E-peil: E0
- Verwarming: Gas
- Beglazing: Hoog efficient driedubbel
Op de kaart

Financieel
| Prijs | |
|---|---|
| Kadastraal inkomen (niet geïndexeerd) | € 0 |
| Kadastraal inkomen (geïndexeerd) | € 0 |
Berekening kosten
Je aankoopkosten? Die heb je snel berekent via de knop hieronder.
Bijkomende info
Gebouw
| Staat | Zo goed als nieuw |
|---|---|
| Bouwcertificaat | Nee |
| Bewoonbaar (m²) | 238 |
| Verdieping | 0 |
| Gevelbreedte | 6 |
| Badkamers | 2 |
| Slaapkamers | 3 |
| Verdiepingen | 2 |
| Garages | 0 |
| Parkeerplaatsen | 0 |
| Doucheruimtes | 0 |
| Toiletten | 2 |
Faciliteiten
| Keuken uitrusting | Luxueus uitgerust |
|---|---|
| Materiaal ramenomlijstingen | Aluminium |
| Beglazing | Hoog efficient driedubbel |
| Brandstof primaire verwarming | Gas |
| Elektrisch keuringsattest | Nee |
Perceel
| Diepte (m) | 40 |
|---|---|
| Breedte (m) | 6 |
| Overstromingsgevoelig | Geen |
| P-score | B |
| G-score | B |
| Voorkeurrecht | Nee |
| Totale oppervlakte (m²) | 272 |
| Bebouwde oppervlakte (m²) | 0 |
| Tuin oppervlakte (m²) | 65 |
| Oppervlakte terras (m²) | 0 |
| Oriëntatie tuin | Zuid |
Uitrusting
| Investeringspand | Nee |
|---|---|
| Geschikt voor praktijk | Nee |
| Parking | Nee |
| Garage | Nee |
| Thuiskantoor | Nee |
| Kelder | Nee |
| Zolder | Nee |
| Tuin | Ja |
| Terras | Nee |
| Lift | Nee |
| Rioolaansluiting | Ja |
| Gasaansluiting | Ja |
| Wateraansluiting | Ja |
| Elektriciteitsaansluiting | Ja |
| TV aansluiting | Ja |
| Internetaansluiting | Ja |
| Telefoonaansluiting | Nee |
