Toffe bel-etage met veel potentieel
€ 240.000
Een pand van Immo Vasta
Overzicht
- 142 m² bewoonbaar
- 76 m² grond
- 2 Slaapkamer(s)
- 1 Badkamer(s)
- 2 Toilet(ten)
- 1 Garage(s)
Beschrijving
Op zoek naar een fijne starterswoning in een rustige buurt met veel potentieel? Deze bel-etage in de Isidoor Opsomerstraat is er eentje met veel troeven: een grote garage, lichte leefruimtes, twee slaapkamers én gelegen vlak bij het Rivierenhof. Ideaal voor wie z’n eigen stempel wil drukken op een woning met een goede basisstructuur.
Je komt binnen in de ruime inpandige garage (45 m²), waar je vlot je auto kwijt kan, én waar je ook nog aansluitingen vindt voor wasmachine en droogkast. Perfect als hobbyruimte, stockage of atelier.
Woonverdieping met veel licht
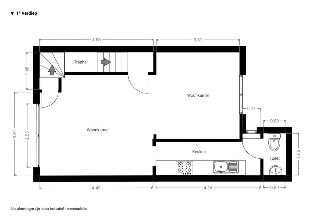
Op de eerste verdieping vind je een lichtrijke woonkamer van 31 m² met sierschouw en hoge plafonds. Er ligt een novilonvloer en dankzij de grote ramen stroomt het daglicht rijkelijk binnen. De gesloten keuken van 6 m² is volledig uitgerust met een koelkast, vriezer, oven, microgolf en gasfornuis. Ze grenst aan de leefruimte en kan makkelijk open getrokken worden mits het weghalen van een valse muur, waardoor je een grote leefkeuken kan creëren. Op deze verdieping is ook een apart toilet aanwezig.
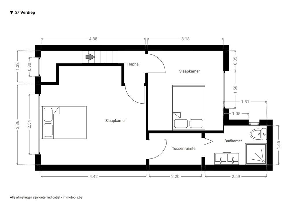
Op de bovenste verdieping liggen twee slaapkamers: eentje van 18 m² aan de voorzijde, en een kleinere van 11 m² aan de rustige achterzijde. Allebei met laminaatvloer. De grootste kamer is verbonden met een tussenruimte van 4 m² die doorgang geeft naar de badkamer van 4,5 m². Daar heb je een dubbele lavabo, douche, wc en laminaatvloer.
Groen wonen met alles in de buurt
Deze woning ligt in een aangename, opwaarderende buurt vlak bij het vernieuwde Arenaplein. Je hebt hier nieuwe sportpleintjes, gezellige ontmoetingsruimtes en heel wat groen rondom. Het uitgestrekte Rivierenhof ligt op een paar minuten wandelen – ideaal voor joggen, wandelen of gewoon ontspannen. Supermarkten, lokale winkels, openbaar vervoer en scholen liggen allemaal op korte afstand, waardoor je hier alles bij de hand hebt in een rustige setting.
Energie
![]() |
- EPC Certificaat: 20251120-0003738772-RES-1
- Energieverbruik: 242 kWh/m²/jaar
- E-peil: E0
- Verwarming: Gas
- Beglazing: Standaard dubbel
Op de kaart

Financieel
| Prijs | |
|---|---|
| Kadastraal inkomen (niet geïndexeerd) | € 813 |
| Kadastraal inkomen (geïndexeerd) | € 0 |
Berekening kosten
Je aankoopkosten? Die heb je snel berekent via de knop hieronder.
Bijkomende info
Gebouw
| Bouwjaar | 1956 |
|---|---|
| Staat | Op te frissen |
| Bouwcertificaat | Nee |
| Bewoonbaar (m²) | 142 |
| Verdieping | 0 |
| Badkamers | 1 |
| Slaapkamers | 2 |
| Verdiepingen | 2 |
| Garages | 1 |
| Parkeerplaatsen | 2 |
| Doucheruimtes | 0 |
| Toiletten | 2 |
Faciliteiten
| Keuken uitrusting | Luxueus uitgerust |
|---|---|
| Materiaal ramenomlijstingen | PVC |
| Beglazing | Standaard dubbel |
| Brandstof primaire verwarming | Gas |
| Elektrisch keuringsattest | Nee |
Perceel
| Overstromingsgevoelig | Geen |
|---|---|
| P-score | A |
| G-score | A |
| Voorkeurrecht | Nee |
| Totale oppervlakte (m²) | 76 |
| Bebouwde oppervlakte (m²) | 0 |
| Tuin oppervlakte (m²) | 0 |
| Oppervlakte terras (m²) | 0 |
| Oriëntatie tuin | West |
Vergunning
| Vergunning | Aanvraag ingediend |
|---|
Uitrusting
| Investeringspand | Nee |
|---|---|
| Geschikt voor praktijk | Nee |
| Parking | Ja |
| Garage | Ja |
| Thuiskantoor | Nee |
| Kelder | Nee |
| Zolder | Nee |
| Tuin | Nee |
| Terras | Nee |
| Lift | Nee |
| Rioolaansluiting | Ja |
| Gasaansluiting | Ja |
| Wateraansluiting | Ja |
| Elektriciteitsaansluiting | Ja |
| TV aansluiting | Ja |
| Internetaansluiting | Ja |
| Telefoonaansluiting | Nee |
