Gezellige woning met ruime garage en stadskoer
€ 364.000
Een pand van Immo Vasta
Overzicht
- 116 m² bewoonbaar
- 103 m² grond
- 3 Slaapkamer(s)
- 1 Badkamer(s)
- 2 Toilet(ten)
- 1 Garage(s)
Beschrijving
Heerlijk wonen in een rustige, groene buurt vlak bij het park? Dat doe je hier, in een brede, kindvriendelijke straat vol jonge gezinnen. Deze woning combineert gezelligheid met een doordacht, praktisch ingerichte indeling. Denk : leefruimte, keuken en stadskoer op het gelijkvloers, drie slaapkamers en badkamer boven, én als extra troef een inpandige garage die perfect kan dienen als multifunctionele ruimte.
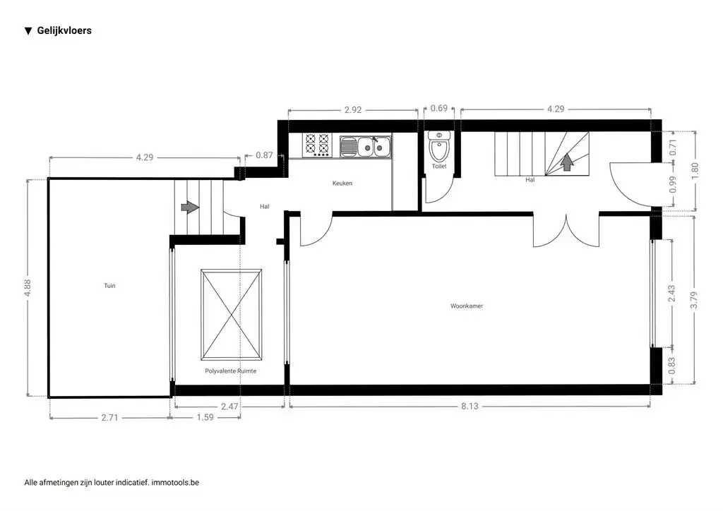
Woonkamer met veel licht, keuken en aangrenzende stadskoer
Je betreedt de woning via de inkomhal op retrotegel, met directe toegang tot het gastentoilet en links de ruime leefruimte. De kamerbrede ramen zorgen voor een overvloed aan natuurlijk licht in deze aangename woonkamer met salon en eetruimte. Aansluitend vind je de aparte keuken, voorzien van veel kastruimte, dubbele spoelbak, gasvuur, dampkap en betegelde wanden. Vanuit de keuken bereik je de zonnige, onderhoudsvriendelijke stadskoer. Achter de leefruimte bevindt zich de veranda — een ideale plek om te ontbijten of te gebruiken als tweede zithoek.
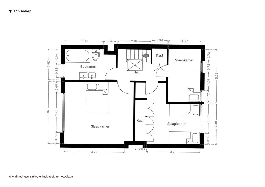
Drie slaapkamers en een badkamer met alles erop en eraan
Op de bovenverdieping bevinden zich drie slaapkamers op laminaatvloer: een ruime master van 18 m² aan de achterzijde en twee lichtrijke kamers aan de straatkant, beide voorzien van rolluiken. De volledig betegelde badkamer is uitgerust met een ligbad, dubbele lavabo, ventilatie, een extra toilet en een badkamermeubel met boven- en zijkasten.
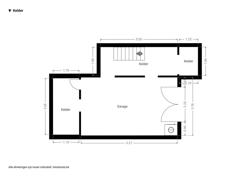
Ruime inpandige garage
Ondergronds bevindt zich de inpandige garage, toegankelijk via de oprit of via de trap vanuit de inkomhal. Dankzij de oprit kan de garage perfect gebruikt worden als multifunctionele ruimte — bijvoorbeeld als atelier of hobbyruimte — en niet louter voor het parkeren van een wagen. Handig is ook dat de aansluiting voor was- en droogtoestellen hier voorzien is, netjes uit het zicht.
Groen, gezellig en goed bereikbaar
Je woont hier in een gezellige buurt aan de rand van de stad, omgeven door groen. Te Boelaerpark en Boekenbergpark liggen op een steenworp, net als leuke cafés en buurtwinkels. Supermarkten als Colruyt en Delhaize zijn vlakbij, net als openbaar vervoer (tram, bus én Velo). Met de Ring en de Singel om de hoek zit je zo in of uit de stad.
Energie
![]() |
- EPC Certificaat: 20251208-0003747069-RES-2
- Energieverbruik: 327 kWh/m²/jaar
- E-peil: E0
- Verwarming: Gas
- Beglazing: Standaard dubbel
Extra budget nodig voor je renovatie?

Op de kaart

Financieel
| Prijs | |
|---|---|
| Kadastraal inkomen (niet geïndexeerd) | € 929 |
| Kadastraal inkomen (geïndexeerd) | € 0 |
Berekening kosten
Je aankoopkosten? Die heb je snel berekend via de knop hieronder.
Bijkomende info
Gebouw
| Bouwjaar | 1949 |
|---|---|
| Staat | Op te frissen |
| Bouwcertificaat | Nee |
| Bewoonbaar (m²) | 116 |
| Verdieping | 0 |
| Badkamers | 1 |
| Slaapkamers | 3 |
| Verdiepingen | 2 |
| Garages | 1 |
| Parkeerplaatsen | 0 |
| Doucheruimtes | 0 |
| Toiletten | 2 |
Faciliteiten
| Keuken uitrusting | Standaard |
|---|---|
| Materiaal ramenomlijstingen | Hout |
| Beglazing | Standaard dubbel |
| Brandstof primaire verwarming | Gas |
| Elektrisch keuringsattest | Ja |
Perceel
| Overstromingsgevoelig | Geen |
|---|---|
| P-score | A |
| G-score | A |
| Voorkeurrecht | Nee |
| Totale oppervlakte (m²) | 103 |
| Bebouwde oppervlakte (m²) | 0 |
| Tuin oppervlakte (m²) | 0 |
| Oppervlakte terras (m²) | 16 |
| Oriëntatie tuin | Noordwest |
Uitrusting
| Investeringspand | Nee |
|---|---|
| Geschikt voor praktijk | Nee |
| Parking | Nee |
| Garage | Ja |
| Thuiskantoor | Nee |
| Kelder | Ja |
| Zolder | Nee |
| Tuin | Nee |
| Terras | Ja |
| Lift | Nee |
| Rioolaansluiting | Ja |
| Gasaansluiting | Ja |
| Wateraansluiting | Ja |
| Elektriciteitsaansluiting | Ja |
| TV aansluiting | Ja |
| Internetaansluiting | Ja |
| Telefoonaansluiting | Nee |


