Te renoveren woning nabij Boelaarpark
€ 315.000
Een pand van Immo Vasta
Overzicht
- 142 m² bewoonbaar
- 4 Slaapkamer(s)
- 1 Badkamer(s)
- 3 Toilet(ten)
Beschrijving
Op zoek naar een woning met potentieel, in een rustige buurt met veel groen én parkeergelegenheid? Deze ruime woning aan de Van Haverelei 19 in Deurne combineert een doordachte indeling met veel lichtinval, een charmante erker, een kelder met stahoogte en een stadskoer. Met haar 142 m² bewoonbare oppervlakte, drie verdiepingen biedt ze de perfecte basis voor wie op zoek is naar een renovatieproject op toplocatie.
Ruimte & licht op het gelijkvloers
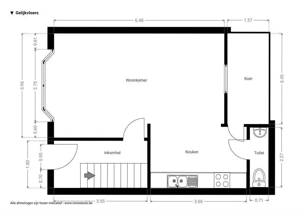
Je komt binnen via een inkomhal op tegel met toegang tot de woonkamer. De lichte leefruimte van 35 m² heeft een mooie erker aan de straatzijde en kijkt uit op de stadskoer achteraan. De open keuken (9,5 m²) sluit aan op de leefruimte en biedt toegang tot de onderhoudsvriendelijke koer op Bancirai (5 m²). Achter de keuken bevindt zich nog een apart toilet met handenwasser. Via een luik in de inkomhal bereik je de ruime kelder (48,6 m²) met stahoogte — ideaal voor extra opslag, een hobbyruimte of zelfs een wijnkelder.
Eerste verdieping met royale kamer en badkamer
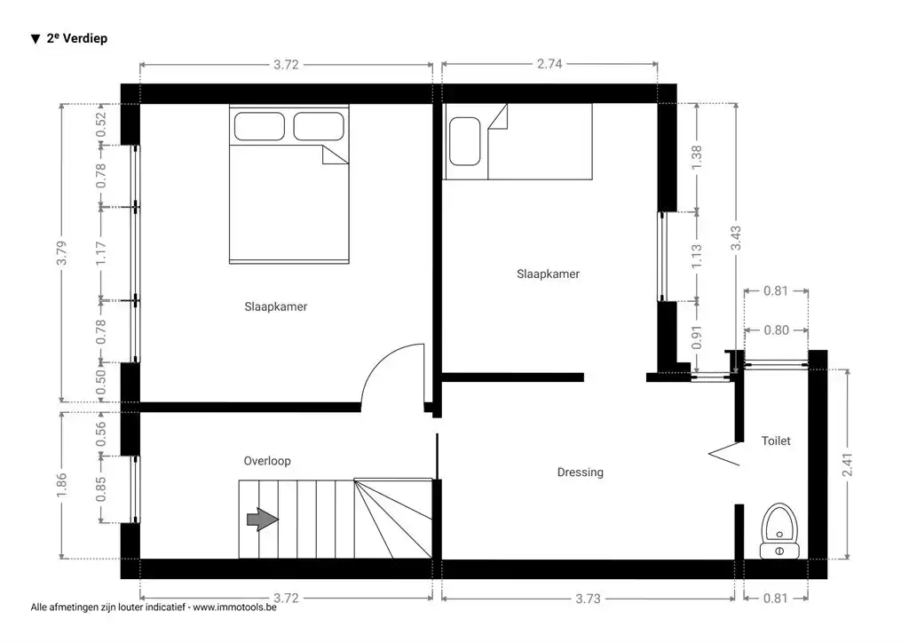
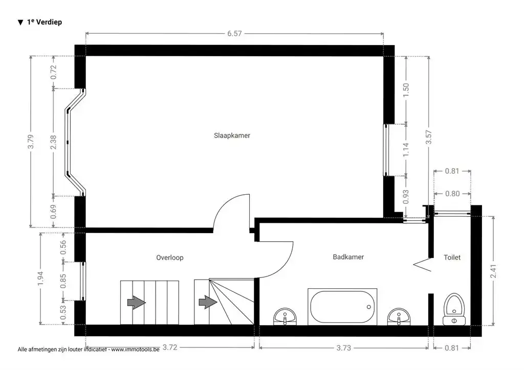
Op de eerste verdieping vind je een grote slaapkamer , die eenvoudig op te delen is in twee aparte kamers. De badkamer (10 m²), uitgerust met ligbad en douchecabine. Achter de badkamer bevindt zich nog een apart toilet.De tweede verdieping biedt drie ruimtes: twee slaapkamers (16 m² en 10 m²), een doorloopkamer van 10 m² die perfect kan dienen als dressing of bureauruimte, en een derde toilet. De voorste kamer heeft bovendien toegang tot een balkon.
Buurt vol groen en leven
Je woont hier in een brede, rustige straat met veel jonge gezinnen en voldoende parkeergelegenheid. Op wandelafstand liggen Te Boelaerpark en Boekenbergpark (met zwemvijver), ideaal voor een wandeling, picknick of sportmoment. Ook aan winkels geen gebrek, met Colruyt, Delhaize en lokale speciaalzaken in de buurt. Leuke horecaplekken zoals Bar Bruul en Deli Barrio liggen om de hoek. Dankzij de nabijheid van tram, bus en Velo-stations ben je snel in het centrum, en met de Ring en Singel vlakbij geraak je vlot de stad in en uit.
Energie
![]() |
- EPC Certificaat: 20250523-0003609229-RES-1
- Energieverbruik: 662 kWh/m²/jaar
- E-peil: E0
- Verwarming: Elektriciteit
- Beglazing: Enkel
Extra budget nodig voor je renovatie?

Op de kaart

Downloads
Financieel
| Prijs | |
|---|---|
| Kadastraal inkomen (niet geïndexeerd) | € 619 |
| Kadastraal inkomen (geïndexeerd) | € 0 |
Berekening kosten
Je aankoopkosten? Die heb je snel berekent via de knop hieronder.
Bijkomende info
Gebouw
| Staat | Op te frissen |
|---|---|
| Bouwcertificaat | Nee |
| Bewoonbaar (m²) | 142 |
| Verdieping | 0 |
| Badkamers | 1 |
| Slaapkamers | 4 |
| Verdiepingen | 2 |
| Garages | 0 |
| Parkeerplaatsen | 1 |
| Doucheruimtes | 0 |
| Toiletten | 3 |
Faciliteiten
| Keuken uitrusting | Standaard |
|---|---|
| Materiaal ramenomlijstingen | Hout |
| Beglazing | Enkel |
| Brandstof primaire verwarming | Elektriciteit |
| Elektrisch keuringsattest | Ja |
Perceel
| Overstromingsgevoelig | Geen |
|---|---|
| P-score | A |
| G-score | A |
| Voorkeurrecht | Nee |
| Bebouwde oppervlakte (m²) | 0 |
| Tuin oppervlakte (m²) | 0 |
| Oppervlakte terras (m²) | 5 |
| Oriëntatie tuin | Zuid |
Uitrusting
| Investeringspand | Nee |
|---|---|
| Geschikt voor praktijk | Nee |
| Parking | Ja |
| Garage | Nee |
| Thuiskantoor | Nee |
| Kelder | Ja |
| Zolder | Nee |
| Tuin | Nee |
| Terras | Ja |
| Lift | Nee |
| Rioolaansluiting | Ja |
| Gasaansluiting | Nee |
| Wateraansluiting | Ja |
| Elektriciteitsaansluiting | Ja |
| TV aansluiting | Nee |
| Internetaansluiting | Nee |
| Telefoonaansluiting | Nee |



