Handelsruimte met magazijn van 330 m2
€ 499.000
Een pand van Reant
Overzicht
- 437 m² bewoonbaar
- 353 m² grond
- 4 Toilet(ten)
- 1 Tuin
Beschrijving
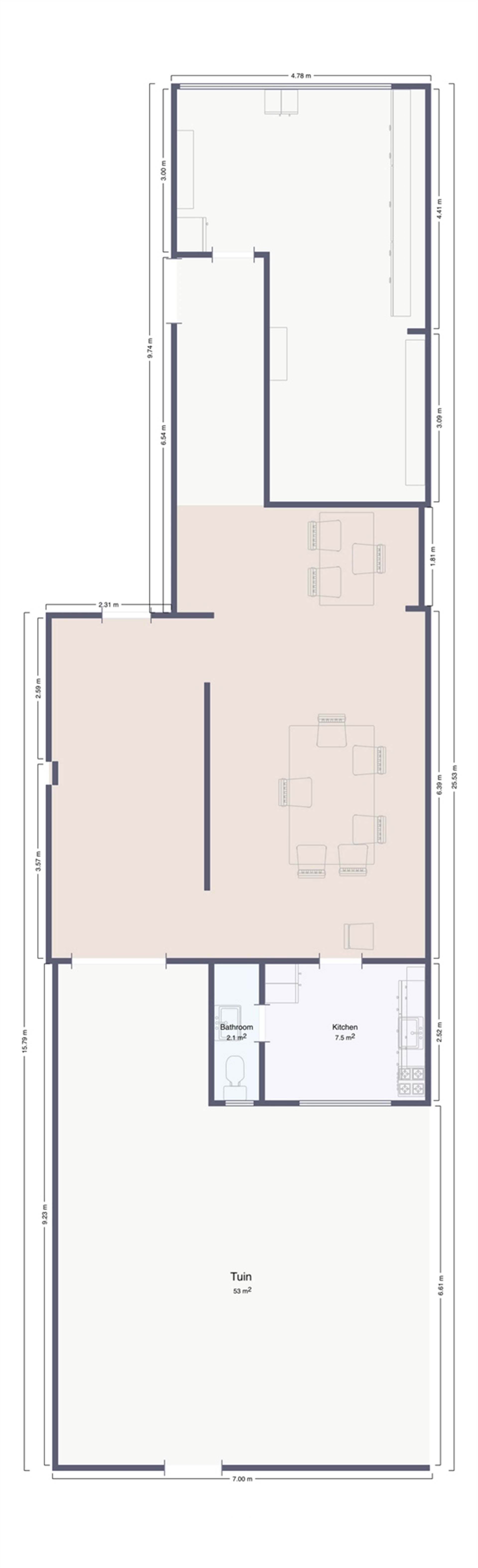
HANDELSRUIMTE – 105 m²
Handelsruimte met brede vitrine, bestaande uit een winkelgedeelte van ca. 95 m², een eenvoudig ingerichte kitchenette achteraan en een apart toilet.
Achteraan is er een dubbele deur die toegang biedt tot het magazijn.
MAGAZIJN – 2 × 165 m²
Achter de handelsruimte bevindt zich een ruim magazijn, gescheiden door een stadstuintje van ca. 28 m².
Het magazijn omvat een gelijkvloerse verdieping en een bovenverdieping.
Op het gelijkvloers is er vooraan een inkomsas (afgescheiden met een valse wand) waar zich ook de houten trap naar boven bevindt. Verder is er een aparte kamer of bureelruimte.
De bovenverdieping bestaat uit één grote open ruimte met lichtkoepels en betonnen vloer, aangevuld met een aparte kamer.
Momenteel verhuurd.
Energie
![]() |
- EPC Certificaat: 3720746
- E-peil: E0
- Verwarming: Gas
- Beglazing: Standaard dubbel
Op de kaart

Financieel
| Prijs | |
|---|---|
| Kadastraal inkomen (niet geïndexeerd) | € 2.362 |
| Kadastraal inkomen (geïndexeerd) | € 0 |
Berekening kosten
Je aankoopkosten? Die heb je snel berekent via de knop hieronder.
Bijkomende info
Gebouw
| Bouwjaar | 1918 |
|---|---|
| Staat | Op te frissen |
| Bouwcertificaat | Nee |
| Bewoonbaar (m²) | 437 |
| Verdieping | 0 |
| Badkamers | 0 |
| Slaapkamers | 0 |
| Verdiepingen | 0 |
| Garages | 0 |
| Parkeerplaatsen | 0 |
| Doucheruimtes | 0 |
| Toiletten | 4 |
Faciliteiten
| Materiaal ramenomlijstingen | Aluminium |
|---|---|
| Beglazing | Standaard dubbel |
| Brandstof primaire verwarming | Gas |
| Elektrisch keuringsattest | Nee |
Perceel
| Overstromingsgevoelig | Geen |
|---|---|
| P-score | A |
| G-score | A |
| Voorkeurrecht | Nee |
| Totale oppervlakte (m²) | 353 |
| Bebouwde oppervlakte (m²) | 0 |
| Tuin oppervlakte (m²) | 50 |
| Oppervlakte terras (m²) | 0 |
| Oriëntatie tuin | Zuid |
Vergunning
| Vergunning | Vergunning beschikbaar |
|---|---|
| Verkavelingsvergunning | Geen beschikbaar |
Uitrusting
| Investeringspand | Nee |
|---|---|
| Geschikt voor praktijk | Ja |
| Parking | Nee |
| Garage | Nee |
| Thuiskantoor | Ja |
| Kelder | Nee |
| Zolder | Nee |
| Tuin | Ja |
| Terras | Nee |
| Lift | Nee |
| Rioolaansluiting | Ja |
| Gasaansluiting | Nee |
| Wateraansluiting | Ja |
| Elektriciteitsaansluiting | Ja |
| TV aansluiting | Ja |
| Internetaansluiting | Ja |
| Telefoonaansluiting | Nee |
Appartementsblok
| Lift | Nee |
|---|
