Instapklaar 2 slpk appartement nabij Te Boelaarpark
€ 239.000
Een pand van Immo Vasta
Jouw zoektocht
Overzicht
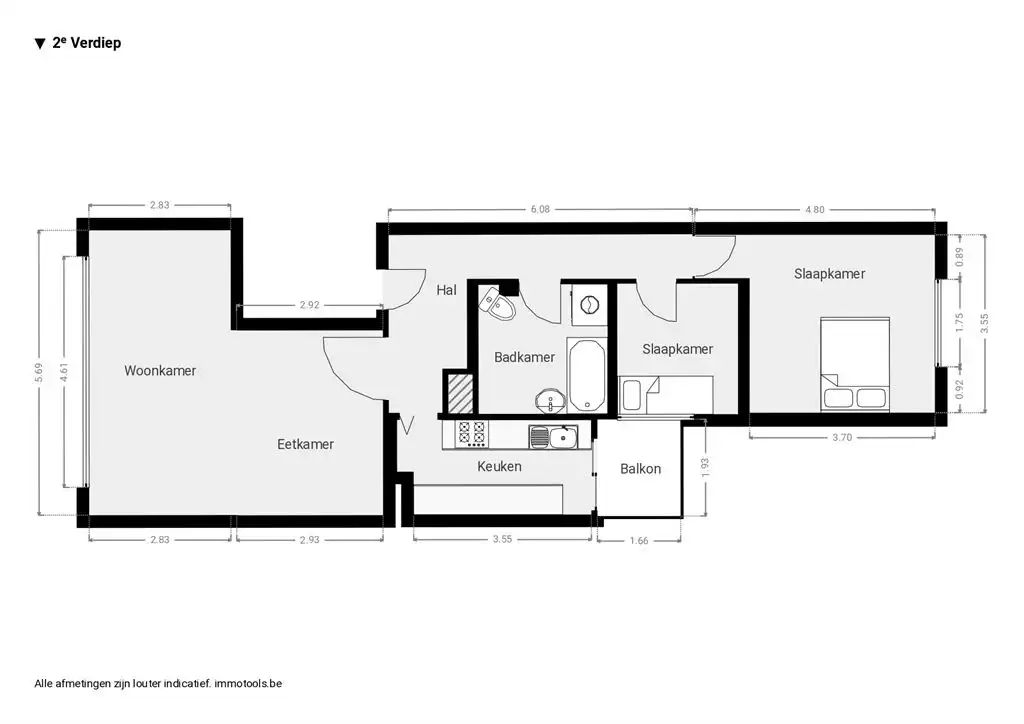
- 80 m² bewoonbaar
- 161 m² grond
- 2 Slaapkamer(s)
- 1 Badkamer(s)
- 1 Toilet(ten)
Beschrijving
Rustig wonen in bruisend Borgerhout? Check. Dit verzorgde appartement op de tweede (bovenste) verdieping van een kleinschalig gebouw combineert licht, comfort en een topligging vlakbij het Te Boelaerpark en Boekenbergpark. Met een ruime leefruimte, vernieuwde keuken (2023) en een zonnig terras is dit een plek waar je meteen thuiskomt.
Leven in het licht
Via de inkomhal met vestiairemogelijkheid kom je binnen in de ruime leefruimte. Dankzij de kamerbrede ramen baadt deze ruimte in het daglicht en voelt alles meteen open en aangenaam aan. De laminaatvloer, sierlijsten en logische vorm zorgen voor een warme, huiselijke sfeer. Hier geniet je van gezellige avonden en lange diners met vrienden of familie.
Koken & genieten van de zon
De keuken is strak en tijdloos, met witte greeploze kasten en een donker werkblad. Je beschikt over alle comfort: gasfornuis, oven, dampkap, plek voor een vaatwasser en inox spoelbak. Extra werkruimte maakt het geheel praktisch én aangenaam.
Via de schuifdeur stap je zo het zuidgerichte terras van ca. 5 m² op. Een rustige buitenplek met zicht op de tuinen, waar je in alle privacy geniet van de zon — perfect voor je ochtendkoffie of een aperitief na het werk.
Rust achteraan
De badkamer is functioneel ingericht met een ligbad en douchescherm, een lavabomeubel met grote spiegel, toilet en aansluiting voor wasmachine. De lichtkoepel zorgt hier voor een aangename, natuurlijke lichtinval.
Achteraan liggen de twee slaapkamers, beide op laminaatvloer en heerlijk rustig. De ruime master bedroom kijkt uit op het groen en biedt plaats voor een groot bed en kasten. De tweede kamer is ideaal als kinderkamer, bureau of dressing — flexibel in te richten volgens jouw noden.
Groen, rustig en toch centraal
Je woont hier in een van de meest gegeerde wijken van Borgerhout, net buiten de Singel en op wandelafstand van het Te Boelaerpark en het Boekenbergpark. Supermarkten, scholen, gezellige cafés en openbaar vervoer liggen allemaal vlakbij. Met een velo-station om de hoek en de Ring op enkele minuten, ben je bovendien snel onderweg, waar je ook heen moet.
Energie
![]() |
- EPC Certificaat: 20260330-0003836099-RES-2
- Energieverbruik: 259 kWh/m²/jaar
- E-peil: E0
- Verwarming: Gas
- Beglazing: Standaard dubbel
Op de kaart

Financieel
| Prijs | |
|---|---|
| Kadastraal inkomen (niet geïndexeerd) | € 528 |
| Kadastraal inkomen (geïndexeerd) | € 0 |
Berekening kosten
Je aankoopkosten? Die heb je snel berekend via de knop hieronder.
Bijkomende info
Gebouw
| Staat | Goed onderhouden |
|---|---|
| Bouwcertificaat | Nee |
| Bewoonbaar (m²) | 80 |
| Verdieping | 2 |
| Gevelbreedte | 6 |
| Badkamers | 1 |
| Slaapkamers | 2 |
| Verdiepingen | 2 |
| Garages | 0 |
| Parkeerplaatsen | 0 |
| Doucheruimtes | 0 |
| Toiletten | 1 |
Faciliteiten
| Keuken uitrusting | Luxueus uitgerust |
|---|---|
| Materiaal ramenomlijstingen | PVC |
| Beglazing | Standaard dubbel |
| Brandstof primaire verwarming | Gas |
| Elektrisch keuringsattest | Ja |
Perceel
| Diepte (m) | 26 |
|---|---|
| Breedte (m) | 6 |
| Overstromingsgevoelig | Geen |
| P-score | A |
| G-score | A |
| Voorkeurrecht | Nee |
| Totale oppervlakte (m²) | 161 |
| Bebouwde oppervlakte (m²) | 0 |
| Tuin oppervlakte (m²) | 0 |
| Oppervlakte terras (m²) | 5 |
| Oriëntatie tuin | Zuid |
Uitrusting
| Investeringspand | Nee |
|---|---|
| Geschikt voor praktijk | Nee |
| Parking | Nee |
| Garage | Nee |
| Thuiskantoor | Nee |
| Kelder | Ja |
| Zolder | Nee |
| Tuin | Nee |
| Terras | Ja |
| Lift | Nee |
| Rioolaansluiting | Nee |
| Gasaansluiting | Nee |
| Wateraansluiting | Nee |
| Elektriciteitsaansluiting | Nee |
| TV aansluiting | Nee |
| Internetaansluiting | Nee |
| Telefoonaansluiting | Nee |
Appartementsblok
| Aantal verdiepingen | 2 |
|---|---|
| Lift | Nee |
