Instapklaar appartement op prachtige visgraatparket
Een pand van Immo Vasta
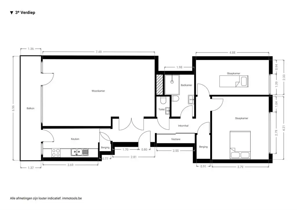
Overzicht
- 100 m² bewoonbaar
- 2 Slaapkamer(s)
- 1 Badkamer(s)
- 1 Toilet(ten)
Beschrijving
Licht, ruimte én een centrale locatie, dat krijg je hier in dit goed onderhouden appartement net buiten de Singel in Borgerhout. Met zijn grote leefruimte, vernieuwde keuken en badkamer, twee ruime slaapkamers en heerlijk zuidgericht terras, is dit een instapklare topper op de rand van het Stad.
Strak, licht en afgewerkt
De inkomhal van 10m² is meer dan een doorgang: met z’n stijlvolle visgraatparket, handige ingemaakte kasten en dubbele glazen deur naar de leefruimte, is dit een volwaardige ruimte die meteen rust en orde brengt. Vanuit hier bereik je alle andere kamers én krijg je al een eerste blik op het licht dat verderop door de grote ramen naar binnen stroomt.
De leefruimte is voorzien van dezelfde visgraatparket. Grote ramen zorgen voor een prachtige lichtinval, terwijl de airco voor extra comfort zorgt op warme dagen. De authentieke schouw voegt net dat tikkeltje charme toe.
Aansluitend ligt de moderne keuken van Miele met een betegelde spatwand en kwalitatieve Miele toestellen zoals een elek vuur, dampkap, heteluchtoven en koelkast. Extra troef: de aparte berging en toegang tot het zuidgerichte terras van 10m² – een ideale plek voor een tafeltje, stoeltje en wat groen.
De badkamer is strak en hedendaags: met een ruime inloopdouche, breed lavabomeubel, spiegel met verlichting én aansluiting voor een wasmachine. Het toilet is apart, met lavabo, en in dezelfde tegel afgewerkt als keuken en badkamer.
Slaapkamers met zicht en rust
Achteraan liggen twee ruime slaapkamers, op visgraatparket. De kamers liggen heerlijk rustig aan de achterkant van het gebouw. Dankzij hun noord oriëntatie blijven ze heerlijk koel en je hebt zelfs zicht tot aan het Sportpaleis.
Ondergronds is er nog een ruime, droge kelderberging van 5m² voorzien.
Sporten, wandelen en winkelen
Je zit hier op een toplocatie net buiten de Singel, op wandelafstand van het Te Boelaerpark en het Rivierenhof. Buurtwinkels, supermarkten, openbaar vervoer én de Ring zijn vlakbij. Ideaal voor wie in de stad werkt maar ook vlot de stad in en uit wil.
Energie
![]() |
- EPC Certificaat: 20250815-0003665348-RES-1
- Energieverbruik: 156 kWh/m²/jaar
- E-peil: E0
- Verwarming: Gas
- Beglazing: Standaard dubbel
Op de kaart

Financieel
| Prijs | |
|---|---|
| Kadastraal inkomen (niet geïndexeerd) | € 882 |
| Kadastraal inkomen (geïndexeerd) | € 0 |
Berekening kosten
Je aankoopkosten? Die heb je snel berekent via de knop hieronder.
Bijkomende info
Gebouw
| Bouwjaar | 1970 |
|---|---|
| Staat | Goed onderhouden |
| Bouwcertificaat | Nee |
| Bewoonbaar (m²) | 100 |
| Verdieping | 3 |
| Gevelbreedte | 7 |
| Badkamers | 1 |
| Slaapkamers | 2 |
| Verdiepingen | 6 |
| Garages | 0 |
| Parkeerplaatsen | 0 |
| Doucheruimtes | 0 |
| Toiletten | 1 |
Faciliteiten
| Keuken uitrusting | Luxueus uitgerust |
|---|---|
| Materiaal ramenomlijstingen | PVC |
| Beglazing | Standaard dubbel |
| Brandstof primaire verwarming | Gas |
| Elektrisch keuringsattest | Nee |
Perceel
| Diepte (m) | 22 |
|---|---|
| Breedte (m) | 15 |
| Overstromingsgevoelig | Geen |
| P-score | A |
| G-score | A |
| Voorkeurrecht | Nee |
| Bebouwde oppervlakte (m²) | 245 |
| Tuin oppervlakte (m²) | 0 |
| Oppervlakte terras (m²) | 10 |
| Oriëntatie tuin | Noord |
Vergunning
| Vergunning | Aanvraag ingediend |
|---|
Uitrusting
| Investeringspand | Nee |
|---|---|
| Geschikt voor praktijk | Nee |
| Parking | Nee |
| Garage | Nee |
| Thuiskantoor | Nee |
| Kelder | Ja |
| Zolder | Nee |
| Tuin | Nee |
| Terras | Ja |
| Lift | Ja |
| Rioolaansluiting | Nee |
| Gasaansluiting | Nee |
| Wateraansluiting | Nee |
| Elektriciteitsaansluiting | Nee |
| TV aansluiting | Nee |
| Internetaansluiting | Nee |
| Telefoonaansluiting | Nee |
Appartementsblok
| Aantal verdiepingen | 6 |
|---|---|
| Lift | Ja |
